Version: 8.24.0Navigation überspringen
Martens & Kühl GmbH
639.000 €
4 Zimmer  •  165,5 m²  •  1.491 m² Grundstück

Einfamilienhaus zum Kauf
639000 €
3.860 €/m²
4 Zimmer  •  165,5 m²  •  1.491 m² Grundstück

Wohnen im Grünen: Großzügiger Bungalow mit Terrasse, Garten & Pavillon

Dieses geräumige Einfamilienhaus präsentiert sich mit einer äußerst gelungenen Raumaufteilung und zahlreichen Ausstattungsdetails, die sowohl funktional als auch komfortabel sind.

Bereits der Windfang empfängt Sie mit einem praktischen Eingangsbereich, der einen angenehmen Übergang in die Wohnräume schafft. Das großzügige Wohnzimmer mit separatem Essbereich bietet eine einladende Atmosphäre und ermöglicht den Zugang zur überdachten Terrasse - ideal für gesellige Stunden im Freien.

Die große Einbauküche mit integrierter Essecke ist ebenfalls mit einem direkten Zugang zur Terrasse ausgestattet und überzeugt durch ihre durchdachte Planung und ausreichend Stauraum.

Das Hauptschlafzimmer verfügt über einen begehbaren Kleiderschrank und bietet somit ein hohes Maß an Komfort. Zwei weitere Zimmer eignen sich ideal als Kinder-, Gäste- oder Arbeitszimmer.

Das Objekt umfasst ein modernes Duschbad mit bodengleicher Dusche sowie ein Vollbad mit separater Dusche - jeweils geschmackvoll gestaltet und funktional ausgestattet.

Ein geräumiger Hauswirtschaftsraum mit angrenzender Speisekammer sorgt für zusätzlichen Stauraum und ermöglicht eine klare Trennung der Arbeitsbereiche im Haus.

Die Bodenbeläge bestehen aus einer Kombination aus Fliesen, Vinyl und Teppich, passend zur jeweiligen Raumnutzung. Für wohlige Wärme sorgt eine moderne Gastherme mit einem 1.000-Liter-Warmwasserspeicher. Zusätzlich wurde ein wasserführender Kamin installiert, der zur Heizungsunterstützung beiträgt und zugleich für eine behagliche Wohnatmosphäre sorgt.

Elektrische Außenrollläden gewährleisten zusätzlichen Komfort sowie effektiven Sicht- und Sonnenschutz. Das großzügige Gartengrundstück besticht durch einen stilvoll gestalteten Holzpavillon sowie praktische Unterstände zur vielseitigen Nutzung.

Abgerundet wird dieses attraktive Angebot durch eine großflächige Auffahrt, einen Doppelcarport sowie einen zusätzlichen Schuppen, der als Lager- oder Abstellfläche dient.

Merkmale

  • Bezug: nach Absprache
  • 1.491 m² Grundstück
  • Kein Keller
  • Carport
  • Terrasse
- Windfang
- Schönes Wohnzimmer mit separatem Essebereich und Austritt zur überdachten Terrasse
- Schlafzimmer mit begehbarem Kleiderschrank
- Zwei Kinderzimmer
- Große Einbauküche mit Essecke und Austritt zur Terrasse mit elektrischer Unterglasmarkise
- Duschbad mit bodentiefer Dusche
- Vollbad mit separater Dusche
- Geräumiger Hauswirtschaftsraum mit angrenzender Speisekammer
- Bodenbeläge: Fliesen, Vinyl, Teppich
- Gastherme mit 1000 Liter Warmwasserspeicher, zusätzlich ein wasserführender Kamin
- Solarthermie-Anlage mit 5 Modulen
- Elektrische Außenrollläden
- Glasfaseranschluss von wilhelm.tel
- LAN-Anschlussdosen im Wohnzimmer, Schlafzimmer und Kinderzimmer
- Insektenschutz an Fenster und Terrassentüren
- Großer Garten mit stilvollem Holzpavillon und Unterständen
- Großflächige Auffahrt mit Doppelcarport und Schuppen

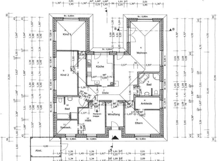
Grundrisse

Grundrisse
1 / 1

Realisiere Dein Projekt

Bausubstanz und Energie

Energieausweis

B
  • Baujahr2009
  • Zustand der ImmobilieMassivhaus
  • EnergieträgerGas
MediumRectangleTop

Preisdetails

Kaufpreis
639000 €
3.860,09 €/m²
Provision für Käufer
3% des Kaufpreises inkl. MwSt.
Weitere Preisinformationen
1 Carportplatz
Geschätzte Gesamtkosten
712.485 €1
Kaufpreis
639.000 €
Notarkosten (1,5%)
9.585 €
Grunderwerbsteuer (6,5%)
41.535 €
Provision für Käufer (3%)
19.170 €
Grundbucheintrag (0,5%)
3.195 €
1Der angezeigte Wert ist eine automatisch berechnete Schätzung von immowelt.
2Bei den Angaben handelt es sich um ortsübliche Werte. Individuelle Kosten können abweichen.

Lage

address-icon
Heidgraben (25436)
Der Anbieter hat die genaue Adresse nicht freigegeben
Die Gemeinde Heidgraben, ursprünglich eine baumlose Moor- und Heidefläche, liegt ca. 18 km nordwestlich von Hamburg am Rande der Marschgebiete. Mit seinen rund 2.800 Einwohnern grenzt es an die Nachbarstädte Uetersen und Tornesch sowie an die Gemeinden Groß- und Klein Nordende. Das Ortszentrum findet sich im Bereich der Grundschule während das gesamte Gemeindegebiet eher zerstreut besiedelt ist. Für den täglichen Bedarf findet man im hurtig markt Heidgraben, das Einkaufs- und Veranstaltungszentrum der Gemeinde, einen Lebensmittelmarkt, einen Friseur, einen Backshop sowie einen Post Shop.

Gute Voraussetzungen für ein weiteres Wachstum Heidgrabens, ist die zentrale Verkehrsanbindung. Mit dem öffentlichen Nahverkehr, durch die Busverbindungen der KViP und dem HVV, erreicht man bequem die umliegenden Gemeinden sowie die Nachbarstädte und die Bahnhöfe Tornesch und Elmshorn mit ihren Bahnlinien Hamburg, Kiel, Westerland (Sylt) und Flensburg. Die Nähe zur A23 über die Anschlussstelle Tornesch, die man in rund 10 Minuten mit dem PKW erreicht, bietet gute Anbindungen an das Autobahnnetz.

Die Gemeinde Heidgraben verfügt über einen Kindergarten, eine Grundschule sowie ein großzügiges Gemeindezentrum für Jung und Alt. Die weiterführenden Schulen, wie Gymnasien und Gemeinschaftsschulen, befinden sich in Uetersen, Tornesch und Elmshorn.

Weitere Informationen

Sonstiges Weitere interessante Angebote finden Sie unter www.martens-kuehl.de Stichworte Nutzfläche: 31,56 m², Anzahl Terrassen: 1, Distanz zur Grundschule: 1.60, Distanz zum Gymnasium: 5.80, Distanz zum Flughafen: 33.30, Distanz zum Hauptbahnhof: 4.30, Distanz zur Autobahn: 8.00, Distanz zu U-/S-Bahn: 12.30, Distanz zum Bus: 0.45, Distanz vom Zentrum: 1.70

Weitere Services

Lust auf eine Besichtigung?
Eine Frage zur Immobilie?
Nachricht hinzufügen
Mit der Nutzung der oben angegebenen Telefonnummer oder durch Klicken auf „Kontaktieren“ akzeptierst Du die Allgemeinen Nutzungsbedingungen, denen Du jederzeit widersprechen kannst. Weitere Informationen zum Datenschutz

Über den Anbieter

Großer Wulfhagen 25, 25436 Uetersen
partner badge
Partnerschaft
Herr Jannek Kühl
Herr Jannek KühlDein Kontakt
Online-ID: 2mglj5m
Referenznummer: 7334
Martens & Kühl GmbH
title
Martens & Kühl GmbH
Nachricht hinzufügen
Mit der Nutzung der oben angegebenen Telefonnummer oder durch Klicken auf „Kontaktieren“ akzeptierst Du die Allgemeinen Nutzungsbedingungen, denen Du jederzeit widersprechen kannst. Weitere Informationen zum Datenschutz
MediumRectangleTop
MediumRectangleBottom
MediumRectangleTop
Wie zufrieden bist du mit dieser Seite (nicht mit der Immobilie selbst)?