ERSTBEZUG! LETZES HAUS! Schön geschnittene Wohnung im 3.OG mit 2 Bädern und Loggia
Bitte beachten Sie, dass die Wohnung derzeit noch im Ausbau ist, daher sind nur zu bestimmten Zeiten Besichtigungstermine möglich.
Merkmale
frei ab sofort
3. Geschoss
Personenaufzug
Gäste-WC
Keller
Balkon
Parkhaus
-Raumhöhe mit ca. 2,60 m -Hochwertige Eichenparkettböden -Ein modern ausgestattetes Bad mit Dusche und Waschmaschinenanschluss -Abstellkammer -Fußbodenheizung mit raumweiser Regulierung -Kontrollierte Be- und Entlüftung mit Wärmerückgewinnung -Dreifach verglaste Holzfenster mit Sonnen- und Sichtschutz -Energieeffizient mit KfW-Effizienzhaus 40 Standard -Zusätzlichem Abstellkeller im Untergeschoss -Zwei Fahrradstellplätze im Keller bzw. vor dem Gebäude. -Aufzug zum straßenseitigen Hauseingang und zum Garten im Innenhof -KFZ-Stellplatz (optional) Mitbenutzung des gemeinschaftlichen Innenhofes
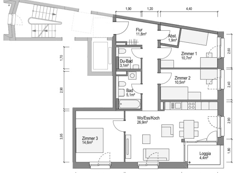
Grundrisse
Grundrisse
1 / 1
Realisiere Dein Projekt
Bausubstanz und Energie
Möchtest du Details zum Energieverbrauch?
Baujahr2025
Zustand der ImmobilieErstbezug
HeizungsartFußbodenheizung
Mietkosten
Warmmiete
1.524,28 €
Kaltmiete
13,96 €/m²
1.211,80 €
Nebenkosten
156,24 €
Zusätzliche Kosten
Heizkosten
156,24 €
Miete pro Stellplatz
85 €
Kaution
3635.4 €3.635,40 €
Weitere Preisinformationen
1 Parkhausstellplatz, Miete: 85,00 EUR
Lage
Ellen-Ammann-Straße 6, Bamberg (96052)
Lagarde Höfe Bamberg Die neu entstehenden Wohnungen sind energetisch hocheffizient (KfW-40) mit familienfreundlich geschnittenen Grundrissen und sind mit großzügigem Wohn- und Essbereich, Abstellraum und ab 4 Zimmern mit zwei Bädern ausgestattet. Auch Wohnungen für studentische Wohngemeinschaften sowie Sonderwohnformen sind geplant.
Zur gemeinschaftlichen Nutzung stehen unterschiedlichste Flächen und Räume zur Verfügung. Eine Besonderheit und zentrales Element wird ein 200 m² großer Gemeinschaftsraum am Quartiersplatz sein. Der Raum mit integrierter Küche ist teilbar und ermöglicht so Veranstaltungen verschiedener Größenordnung. Ergänzt wird das Angebot durch zwei Gästeappartements.
Der Campus verfügt über ein Parkhaus, sowie Tiefgarage mit Auto- und Fahrradabstellplätzen (mindestens 2 Fahrradstellplätze pro Wohnung) sowie individuellen Kellerräumen. Sämtliche Wohnungen und Gemeinschaftsflächen sind barrierefrei erreichbar.
Die Erdgeschoss-Wohnungen verfügen über einen kleinen privaten Gartenbereich mit Terrasse, die Wohnungen in den Obergeschossen über großzügige Balkone.
Das gesamte Quartier wird im Energiestandard KfW-Effizienzhaus 40 errichtet. Auf dem Dach sind Photovoltaikanlagen in Zusammenarbeit mit Naturstrom geplant. Die Mieter beziehen ihren Haushaltsstrom so teilweise vom eigenen Dach im Mieterstrom-Modell.
Weitere Informationen
Sonstiges
Alle Wohnungen haben eine Staffelmietvereinbarung von 3% jährlich für die ersten 5 Jahre. Alle weiteren Mieterhöhungen lt. §558 bis §5559b BGB sind hiermit ausgeschlossen.
Energiepass
Energieausweis wird bei Besichtigung vorgelegt.
Stichworte
Parkhaus vorhanden, Anzahl der Schlafzimmer: 3, Anzahl der Badezimmer: 2, Anzahl Balkone: 1, 4 Etagen