Version: 8.24.0Navigation ĂĽberspringen
476.480 €
4 Zimmer  â€˘  133 m²  â€˘  874 m² GrundstĂĽck
Immowelt logo

Einfamilienhaus zum Kauf • provisionsfrei
476480 €
3.583 €/m²
4 Zimmer  â€˘  133 m²  â€˘  874 m² GrundstĂĽck

GemĂĽtliches Wohnen im neuen Familienhaus mit groĂźem Garten!

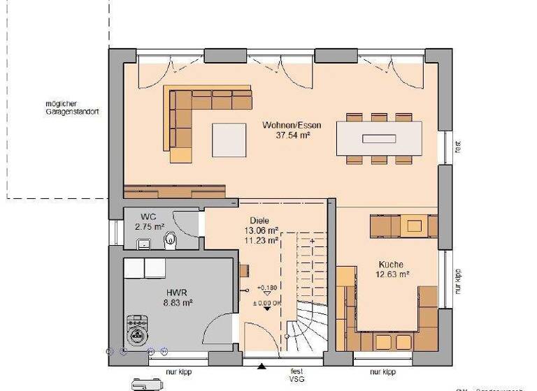
Das Massivhaus Trend ist modern und zeitlos zugleich. Die Architektursprache des Familienhauses ist klassisch, kombiniert mit der modernen Grundrissgestaltung im Innenraum. Das Erdgeschoss folgt dem Trend der Offenheit. Es gleicht mit der Kombination aus Wohnen, Essen und Küche einem Loftcharakter. Im Erdgeschoss befinden sich außerdem der Hauswirtschaftsraum und ein Gäste-WC. Alle Räume sind von der Diele aus erreichbar.

Das Dachgeschoss bietet viel Platz fĂĽr die ganze Familie. Neben zwei Kinderzimmern, dem Elternschlafzimmer mit Ankleide und dem Flur befindet sich hier das groĂźzĂĽgige Familienbad.

Dieses Haus wird nach Ihren individuellen WĂĽnschen geplant und ausgestattet!

Merkmale

  • 874 m² GrundstĂĽck
  • Gäste-WC
  • Badewanne
4 Zimmer, offene KĂĽche, Diele, Flur, Bad, WC, Ankleide, Hauswirtschaftsraum

Das gezeigte Traumhaus im Ăśberblick:

+ SchlĂĽsselfertiges Massivhaus im Sinne der Ausstattungsbeschreibung "Easy"
+ Inklusive Bodenplatte

Beste Markenausstattung in jedem Kern-Haus:

+ Zimmermannsmäßiger Dachstuhl aus Konstruktionsvollholz
+ Dacheindeckung mit Betondachsteinen von Braas
+ Hochwertiger Kunstharz-AuĂźenputz fĂĽr eine langlebige Fassade
+ Vollständige Badausstattung von Villeroy & Boch mit Badewanne und flacher Duschwanne
+ Fliesen von Villeroy & Boch in Bad und WC
+ HaustĂĽr mit 3-fach-Sicherheitsverriegelung
+ Erstklassige InnentĂĽren der Marke Herholz
+ Fenster mit 3-Scheiben-Wärmeschutzverglasung und Rollläden
+ Stahl-Holz-Treppe mit individueller Farbgestaltungsmöglichkeit
+ Elektroausstattung inklusive Klingelanlage
+ Rauchmelder fĂĽr Ihre Sicherheit
+ Alle Leistungen aus einer Hand
+ Alle Planungs- und Architektenleistungen
+ Einsatz regionaler Handwerksbetriebe
+ Individuelle Anpassung auf Ihre BedĂĽrfnisse
+ Auf Wunsch mit Keller erhältlich
+ Auf Wunsch mit weiteren Energietechniken erhältlich

Grundrisse

Grundrisse
1 / 2

Realisiere Dein Projekt

Bausubstanz und Energie

Energieausweis

A
  • Baujahr2025
  • Zustand der ImmobilieNeubau, Projektiert
  • HeizungsartZentralheizung: FuĂźbodenheizung
Immowelt logo

Preisdetails

Kaufpreis
476480 €
3.582,56 €/m²
Provision für Käufer
provisionsfrei
Geschätzte Gesamtkosten
512.215 €1
Kaufpreis
476.480 €
Notarkosten (1,5%)
7.147 €
Grunderwerbsteuer (5,5%)
26.206 €
Grundbucheintrag (0,5%)
2.382 €
1Der angezeigte Wert ist eine automatisch berechnete Schätzung von immowelt.
2Bei den Angaben handelt es sich um ortsübliche Werte. Individuelle Kosten können abweichen.

Lage

address-icon
Euba, Chemnitz (09128)
Der Anbieter hat die genaue Adresse nicht freigegeben
Das schöne Grundstück befindet sich im chemnitzer Stadtteil Euba in zweiter Baureihe.

Wir planen jedes Kern-Haus frei nach Ihren WĂĽnschen und passen es in das GrundstĂĽck ein.

Weitere Informationen

Sonstiges Kern-Haus

Kern-Haus baut individuelle und massive Architektenhäuser zu einem attraktiven Preis-Leistungs-Verhältnis - und das bereits mit einer Erfahrung seit 1980.

Maximale Sicherheit bei Kern-Haus:
+ 10 Jahre Gewährleistung auf die wesentlichen Bauleistungen
+ Bis zu 24 Monate Festpreisbindung
+ 50 Jahre Gewährleistung auf das DuoTherm-Mauerwerk
+ Verbindliche Bauzeit
+ Zahlung nach Baufortschritt

Preise und Auszeichnungen von Kern-Haus:
- German Brand Award in den Jahren 2018 und 2021
- Hausbau Design Award: Sieger in den Jahren 2017, 2018, 2019, 2020, 2021, 2022 und 2023
- Deutscher Traumhauspreis: Sieger in den Jahren 2014, 2015, 2016 und 2018 und Silber 2017, 2020 und 2021
- Mittelstandspreis "Top 100" in den Jahren 2014, 2016, 2018, 2020 und 2022
- German Design Award im Jahr 2018
Weitere Informationen

Der gezeigte Preis versteht sich inklusive GrundstĂĽck und exklusive der Baunebenkosten.

Das Kern-Haus-Team in Chemnitz freut sich darauf Ihre Fragen zu beantworten. Jetzt anrufen: 03722 / 71850

Kern-Haus in Chemnitz - https://www.kern-haus.de/chemnitz/

Weitere Architektenhäuser - https://www.kern-haus.de/haeuser Stichworte Stellplatz vorhanden, Anzahl der Schlafzimmer: 3, Anzahl der separaten WCs: 1

Weitere Services

Lust auf eine Besichtigung?
Eine Frage zur Immobilie?
Nachricht hinzufĂĽgen
Mit der Nutzung der oben angegebenen Telefonnummer oder durch Klicken auf „Kontaktieren“ akzeptierst Du die Allgemeinen Nutzungsbedingungen, denen Du jederzeit widersprechen kannst. Weitere Informationen zum Datenschutz

Ăśber den Anbieter

Albert Einstein Str. 4, 09212 Limbach-Oberfrohna
Frau Janet Schrepel
Frau Janet SchrepelDein Kontakt
Online-ID: 2n7fh58
Referenznummer: KH 07_11
KHC Bauträger GmbH
title
KHC Bauträger GmbH
Bewertung: 5 von 5 Sternen
Nachricht hinzufĂĽgen
Mit der Nutzung der oben angegebenen Telefonnummer oder durch Klicken auf „Kontaktieren“ akzeptierst Du die Allgemeinen Nutzungsbedingungen, denen Du jederzeit widersprechen kannst. Weitere Informationen zum Datenschutz
Wie zufrieden bist du mit dieser Seite (nicht mit der Immobilie selbst)?