Ihr Eigenheim in der Stadt : geräumige Doppelhaushälften mit Garten in Prüfening zur Auswahl - individuelle Innenaufteilung und Ausstattung möglich
Objektbeschreibung
Auf einem Areal von knapp 1.000 qm sind zwei Doppelhäuser mit jeweils identischen Haushälften geplant. Jede Haushälfte verfügt über einen eigenen Grundstücksanteil (Realteilung). Alle Häuser sind in einem modernen Stil und abgestimmt aufeinander in zeitlosen anthrazit und weißen Farbtönen geplant, so dass die gesamte Häuserreihe als eine harmonische Einheit erscheint. Die Einzelheiten zu den einzelnen Haushälften sind im beiliegenden Exposé im Detail beschrieben.
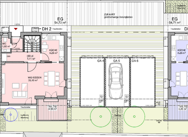
Auf dem Grundstück, das sich von der Straße weg in die Tiefe erstreckt, sind vier identische Doppelhaushälften DH 1 bis DH 4 und sechs Garagen geplant. Das Gesamtgrundstück wird so geteilt, dass zu jeder Haushälfte ein eigenes Grundstück mit eigener Flurnummer gehört. Die Zufahrt und die Hausanschlüsse werden über Dienstbarkeiten geregelt, so dass es kein Gemeinschaftseigentum zu pflegen und zu verwalten gibt. Jeder Eigentümer ist nur für seinen eigenen Haus- und Grundstücksanteil verantwortlich.
Jede Doppelhaushälfte hat einen eigenen Hauseingang und einen eigenen Zugang zum zugehörigen Garten. Die Gärten werden mit Hecken und Zäunen voneinander abgetrennt, so dass die Privatsphäre eines jeden Bewohners gewahrt bleibt.
Das Konzept für die Gestaltung des gesamten Grundstücks ist durch den Bauplan und die dazugehörige Baugenehmigung vorgegeben.
Insgesamt stehen sechs Garagen auf dem Grundstück zur Verfügung, die den jeweiligen Häusern zugeteilt werden. Der jeweilige Grundstücksanteil wird nach Zuteilung der Garagen festgelegt.
Die Häuser sind mit 131 qm (bei ausgebautem Hobbyraum z.B. als Büro oder Gästezimmer mit etwa 150 qm) sehr geräumig und können durch geringfügige Umplanungen im Innenbereich individuell an die unterschiedlichsten Bedürfnisse angepasst werden.
Der Nutzungsbereich spannt sich über eine breite Palette. Von den vielen Möglichkeiten, die denkbar sind, seien hier nur drei Vorschläge vorgestellt:
•für eine mehrköpfige Familie: Eltern-Schlafzimmer und vier separate Kinderzimmer sowie Büro / Gast im Untergeschoss
•für Mehrgenerationenwohnen: separater Wohn-Schlafbereich mit Bad im Dachgeschoss
•für einen 2-Personen-Haushalt: großzügige Räumlichkeiten (im EG offenes Wohnen mit Kochbereich knapp 50 qm) und Schlafen mit Ankleide (im OG mit etwa 36 qm) sowie großes Büro (im DG mit etwa 24 qm)
Die Grundstücke sind optimal nach Süd-Westen ausgerichtet, so dass alle Gärten den ganzen Tag hell und sonnig sind. Der Durchgang zum eigenen Garten zwischen Haus und Garage kann mit einem Gartentörchen verschlossen werden.
Eine große Terrasse mit fast 9 qm ermöglicht Platz für eine große Tischgarnitur, im Garten kann man die Liege aufstellen oder auch noch bei Bedarf einen kleinen Sandkasten für Kinder. Die Grundstücke zum jeweiligen Nachbarn sind durch einen Zaun oder Hecke abgetrennt.
Die Fenster im Wohnbereich zum Garten sind bodentief und groß, machen den Raum hell und freundlich und lassen nebenbei noch optimale solare Energiegewinne zu. Im Untergeschoss ist ein gut belichteter Hobbyraum möglich, der auch als Büro oder für Gäste genutzt werden kann.
Die vier Doppelhaushälften sollen alle gemeinsam jedoch individuell auf jeden zukünftigen Bewohner abgestimmt gebaut werden. Insofern ist es möglich im Vorfeld die vorgesehene Innenaufteilung entsprechend der persönlichen Bedürfnisse anzupassen. Das Gleiche gilt für die Innenausstattung hinsichtlich z.B. der Sanitärobjekte, Fliesen- und Bodenbeläge oder den Innentüren.
Prinzipiell ist für alle Häuser eine hochwertige und innovative Ausstattung nach dem Energiestandard Effizienz 55 vorgesehen.
Raumaufteilung
Über den repräsentativ breiten Weg vor der Häuserreihe gelangt man zu den jeweiligen Hauseingängen. Die Beschreibung bezieht sich auf das Doppelhaus 1.
Flur und Treppenhaus sind vom Wohnbereich abgetrennt, können jedoch auf Wunsch auch weitestgehend offen gestaltet werden. Die leicht versetzten Ebenen zwischen Eingang und Wohnbereich geben dem Hauseingang eine besondere Note.
Der Kochbereich ist offen zum Wohn-Essbereich und kann modern mit einer wohnlichen Küche mit Theke oder Kochinsel gestaltet werden. Auf Wunsch kann die Küche auch als eigener Raum gestaltet werden.
Der Wohnbereich besticht besonders durch die großzügige Fensterfront, die einen leichten Erker-Charakter hat und den geräumigen Wohn-Essbereich auflockert. Ein weiteres Highlight ist der Kaminzug, der auf Wunsch für den Einbau eines gemütlichen Kaminofens vorgesehen werden kann. Vom Essbereich tritt man auf die große Terrasse, von der man direkt in den Garten gehen kann.
Vom Erdgeschoss gelangt man über die mit Holzbelag wohnlich gestaltete Betontreppe ins Obergeschoss, wo je nach persönlichen Anforderungen bis zu drei Räume und ein Bad ausgebaut werden.
Eine alternative Raumaufteilung z.B. mit nur einem geräumigen Schlafzimmer und einer Ankleide, die mit einer Schiebetüre vom Schlafzimmer aus begehbar ist, wäre ebenso denkbar. Auch das Bad kann noch individuell gestaltet und an die jeweiligen Wünsche angepasst werden.
Vom Obergeschoss gelangt man ebenfalls über die Treppe ins Dachgeschoss wo sich nochmals zwei getrennte Räume und ein kleines Duschbad ausbauen lassen.
Auch hier gilt, dass die beiden Räume verbunden oder komplett offen zum Treppenhaus (in Form eines Dachstudios) gestaltet werden können. Die gemütlichen Räume im Dachgeschoss sind mit insgesamt vier großen Dachflächenfenstern sehr gut belichtet.
Die Tatsache, dass man im Eingangsbereich zwei Stufen nach oben tritt, ermöglicht es, dass sich die Oberkante des Untergeschosses etwa 50cm ober-halb des Erdreiches befindet. Somit ist ein über eine begrünte Böschung hell belichteter Hobbyraum mit einem waagerecht liegenden, großen Fenster möglich. Der Hobbyraum kann – sofern er wohnlich ausgebaut wird – als weiterer Raum für Gäste oder als Arbeitszimmer genutzt werden.
Dabei ist auch die Wand zwischen Hobbyraum und dem benachbarten Kellerraum in gewissem Rahmen variabel, so dass dieser auf Wunsch noch weiter vergrößert werden könnte. Nachdem die Räume im Untergeschoss eine Höhe von etwa 2,40 m haben, ist auch hier ein angenehmes Raumgefühl vorzufinden.
Außerdem befindet sich im Untergeschoss der Heizungs- und Hausanschlussraum. Hier befindet sich neben der Technik (Luftwärmepumpe, Elektroanschlüsse etc.) auch noch der Waschmaschinen- und Wäschetrockneranschluss.