Version: 8.25.1Navigation überspringen
10,50 €
1.062,4 m² Bürofläche  •  teilbar ab 1.062,4 m²
Immowelt logo

Büro zur Miete • provisionsfrei
10,50 €
/m²
1.062,4 m² Bürofläche  •  teilbar ab 1.062,4 m²

Gut ausgestatte und klimatisierte Flächen in Großenbaum!

Das Gebäude bietet flexibel gestaltbare und klimatisierte Flächen im Großenbaum. Zahlreiche Stellplätze stehen direkt am Gebäude zur Verfügung.


Derzeit stehen folgende Flächen zur Verfügung:

Erdgeschoss: 657 m²
1. Obergeschoss: 1.062 m²
2. Obergeschoss: 1.062 m²

Gesamtfläche ca.: 2.781 m²

Merkmale

  • Bezug: nach Vereinbarung
  • 100 Stellplätze: Außen-Stellplatz
Bodenbelag: Teppichboden
EDV-Verkabelung: CAT 7 (vom Vormieter)
Kabelführung: Bodentanks
Kühlung: Klima-Split-Geräte
Sonnenschutz: Raffstoren außen (manuell)
Küche: Einbauküche
Beleuchtung: Rasterdecken-Einbauleuchten
Aufzug: Personenaufzug
Heizung: Gaszentralheizung
Barrierearm: Ja
Deckenhöhe: 3,00 m abgehangen, 3,50 m bis zur Rohdecke
Parkplätze: Außenstellplätze

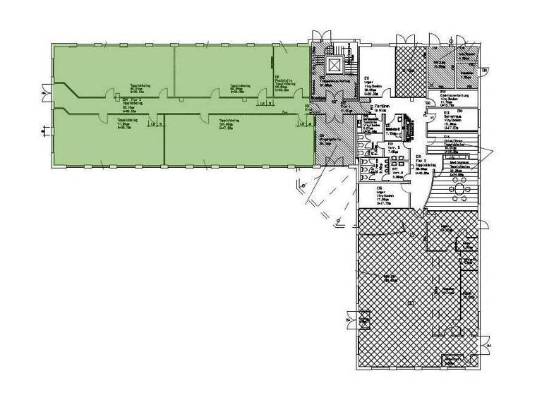
Grundrisse

Grundrisse
1 / 3

Realisiere Dein Projekt

Bausubstanz und Energie

Möchtest du Details zum Energieverbrauch?info_energy_calculation-icon
Immowelt logo

Mietkosten

Monatliche Miete
10,50 €/m²
Nebenkosten
2,75 €
Zusätzliche Kosten
Heizkosten
Provision für Mieter
provisionsfrei
Kaution
keine Angabe

Lage

address-icon
Keniastraße 33GroßenbaumDuisburg (47269)
Fußweg zu öffentl. Verkehrsmitteln: 9 Min.
Fahrzeit zum nächsten Hauptbahnhof: 10 Min.
Fahrzeit zur BAB: 3 Min.
Fahrzeit zum nächsten Flughafen: 15 Min.

Weitere Informationen

Sonstiges GEG 2020: Ein Energieausweis liegt zurzeit nicht vor.

Dieses Angebot ist provisionsfrei für den Mieter!

Alle Informationen in diesem Exposé beruhen auf Angaben, die wir vom Vermieter erhalten haben. Für Richtigkeit und Vollständigkeit übernehmen wir keine Gewähr. Zwischenvermietung vorbehalten. Die Grundrisse müssen nicht mit der aktuellen Raumaufteilung übereinstimmen und sind unmaßstäblich. Für Flächenangaben übernehmen wir keine Gewähr. In Planunterlagen eventuell abgebildete Möblierungen sind nicht Inhalt des Mietgegenstands.

Es gelten ausschließlich unsere AGB (www.cubion.de/agb). Stichworte Sonstiges: EDV-Verkabelung

Weitere Services

Lust auf eine Besichtigung?
Eine Frage zur Immobilie?
Mit einer persönlichen Nachricht hast du bessere Chancen auf eine Antwort.
Mit der Nutzung der oben angegebenen Telefonnummer oder durch Klicken auf „Kontaktieren“ akzeptierst Du die Allgemeinen Nutzungsbedingungen, denen Du jederzeit widersprechen kannst. Weitere Informationen zum Datenschutz

Über den Anbieter

Akazienallee 65, 45478 Mülheim
partner badge
3 Jahre Partnerschaft
Herr Stewart Darman
Herr Stewart DarmanDein Kontakt
Online-ID: 2529XP2KNX1C
Referenznummer: 3076/G1/E2
CUBION Immobilien AG
title
CUBION Immobilien AG
Mit einer persönlichen Nachricht hast du bessere Chancen auf eine Antwort.
Mit der Nutzung der oben angegebenen Telefonnummer oder durch Klicken auf „Kontaktieren“ akzeptierst Du die Allgemeinen Nutzungsbedingungen, denen Du jederzeit widersprechen kannst. Weitere Informationen zum Datenschutz
Wie zufrieden bist du mit dieser Seite (nicht mit der Immobilie selbst)?