Version: 8.22.4Navigation überspringen
Mietkosten auf Anfrage
Immowelt logo

Lagerhalle zur Miete

Günstige Lager- & Büroflächen in Hohenems von 28 - 700 m²

Die Immobilie ist ab ab sofort verfügbar und kann ganz nach Ihren individuellen Bedürfnissen gestaltet werden. Zudem sind 6 Stellplätze direkt am Objekt vorhanden, sodass Ihre Mitarbeiter und Kunden bequem parken können. Sanitäranlagen sind ebenfalls vorhanden.

 

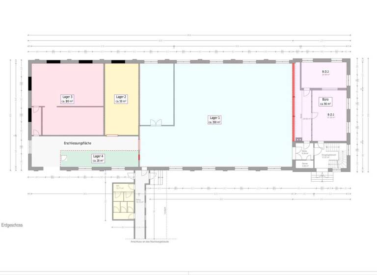
Die Fläche kann gesamt oder einzeln wie folgt gemietet werden:

* Lager 1 + Büro = 395 m² (305 m² + 90 m²)
* Lager 1 = 305 m²
* Lager 1a = 45 m² - VERMIETET
* Lager 2 = 50 m² - VERMIETET
* Lager 3 = 100 m²
* Lager 4 = 28 m² - VERMIETET
* Lager 5 = 50 m² - nicht im Grundriss eingezeichnet
* Lager 6 = 100 m² - nicht im Grundriss eingezeichnet
* 6 KFZ

Preisliste finden Sie unten zum Downloaden.

 

Abmessungen der Laderampe mit Tor:

* Torhöhe = 3,00 m
* Torbreite = 2,10 m

Im Außenbereich stehen etliche Flächen für eine Lagerung zu Verfügung.

 

Eine Bushaltestelle befindet sich direkt vor der Tür und auch der Bahnhof ist nur wenige Gehminuten entfernt. Somit sind Sie und Ihre Mitarbeiter jederzeit gut erreichbar. 

 

Überzeugt? Dann zögern Sie nicht und vereinbaren Sie noch heute einen Besichtigungstermin. 

 

Unsere Angaben beziehen sich auf die Auskünfte des Eigentümers. Irrtum und Änderungen vorbehalten.

 

 

 

Noch nichts gefunden? Wir informieren Sie über geeignete Immobilienangebote noch vor allen anderen.
Legen Sie jetzt kostenlos Ihren individuellen Suchagenten unter folgendem Link an. Wir schicken Ihnen passende Immobilien exklusiv vorab zu.
Suchagent anlegen [https://rimo-immobilien.service.immo/registrieren/de]

Wir weisen darauf hin, dass zwischen dem Vermittler und dem zu vermittelnden Dritten ein familiäres oder wirtschaftliches Naheverhältnis besteht.

Der Vermittler ist als Doppelmakler tätig.

Infrastruktur / Entfernungen

Gesundheit
Arzt <125m
Apotheke <450m
Krankenhaus <675m

Kinder & Schulen
Schule <575m
Kindergarten <125m
Universität <6.750m
Höhere Schule <3.950m

Nahversorgung
Supermarkt <525m
Bäckerei <525m
Einkaufszentrum <2.000m

Sonstige
Bank <300m
Geldautomat <300m
Post <725m
Polizei <375m

Verkehr
Bus <200m
Autobahnanschluss <2.200m
Bahnhof <875m
Flughafen <3.050m

Angaben Entfernung Luftlinie / Quelle: OpenStreetMap

Merkmale

  • Bezug: sofort
  • 6 Stellplätze: 6 Außen-Stellplätze
  • voll erschlossen

Grundrisse

Grundrisse
1 / 1

Realisiere Dein Projekt

Bausubstanz und Energie

Heizwärmebedarf (HWB)

E

Gesamtenergieeffizienz (fGEE)

Der Anbieter hat keine Daten zum Energieausweis hinterlegt.
  • Zustand der ImmobilieMassivhaus
  • EnergieträgerÖl
Immowelt logo

Mietkosten

Miete auf Anfrage
Provision für Mieter
1 Bruttomonatsmiete zzgl. 20% USt.
Kaution
3 Bruttomonatsmieten
Weitere Preisinformationen

Preise netto /
inkl. Heizkosten, Strom, etc.
Alle Preise sind zzgl. MWST., 6 Stellplätze

Lage

address-icon
Friedhofstraße 7Hohenems (6845)
Sie suchen ein günstiges Lager u/o ein Büro in der Region Vorarlberg? Dann haben wir genau das Richtige für Sie! Das Objekt bietet Ihnen auf einer Fläche bis zu 694 m² alle Möglichkeiten für Ihr erfolgreiches Gewerbe. Die Immobilie besticht durch Ihre Lage und Ihre großzügige Fläche, die Ihnen den Arbeitsalltag erleichtern werden.

Weitere Informationen

Stichworte Stellplatz vorhanden, Anzahl der separaten WCs: 2, Bundesland: Vorarlberg, 1 Etagen

Weitere Services

Lust auf eine Besichtigung?
Eine Frage zur Immobilie?
Nachricht hinzufügen
Mit der Nutzung der oben angegebenen Telefonnummer oder durch Klicken auf „Kontaktieren“ akzeptierst Du die Allgemeinen Nutzungsbedingungen, denen Du jederzeit widersprechen kannst. Weitere Informationen zum Datenschutz

Über den Anbieter

Marktplatz 7, 6800 FELDKIRCH
partner badge
Partnerschaft
Herr Daniel StröhleDein Kontakt

Weitere Unterlagen

Online-ID: 2lr345t
Referenznummer: OBGC20240226121452598d6649f32ad
Rimo | Immobilien GmbH
Rimo | Immobilien GmbH
Bewertung: 4,6 von 5 Sternen
Nachricht hinzufügen
Mit der Nutzung der oben angegebenen Telefonnummer oder durch Klicken auf „Kontaktieren“ akzeptierst Du die Allgemeinen Nutzungsbedingungen, denen Du jederzeit widersprechen kannst. Weitere Informationen zum Datenschutz
Wie zufrieden bist du mit dieser Seite (nicht mit der Immobilie selbst)?