Version: 8.24.1Navigation überspringen
KB Wohnbau - individual - GmbH
1.070 €
2 Zimmer

Bürofläche zur Miete • provisionsfrei
1.070 €
2 Zimmer

+++Repräsentative 2 ZKB Büroräume in Innenstadtlage von Pfaffenhofen/OG+++

Bei diesem Objekt handelt es sich um repräsentative Büroräume in der Innenstadt von Pfaffenhofen an der Ilm - Zentral gelegen mit kurzen Wegen zum Hauptplatz und dem Bahnhof.
Das 2016 erbaute Geschäftshaus erfüllt sowohl durch die Citylage, als auch durch eine solide Bauweise und die gehobene Gestaltung alle Wünsche. Ein Aufzug bringt Sie und Ihre Besucher vom Eingangsbereich komfortabel in Ihre Büroräumen im 2. Obergeschoss.

Mietpreis im Überblick: Nettokaltmiete 1.070,00 € + 120,00 € Nebenkostenvorauszahlung = 1.190,00 € Nettogesamtmiete

Vereinbaren Sie noch heute einen Besichtigungstermin und überzeugen Sie sich selbst von diesem schönen Objekt.

Merkmale

  • frei ab 30.09.2026
  • 2. Geschoss
  • Personenaufzug
  • Keller
  • Bad mit Dusche
* 2 Zimmer - schöne helle Räume
* Baujahr 2016
* Wfl. ca 59 m²
* Vinylbodenbelag
* Fußbodenheizung
* Raffstores
* WC mit Dusche
* Küche kann abgelöst werden
* Aufzug
* Heizung: Fernwärme
* Kellerabteil
* Energieausweis liegt vor

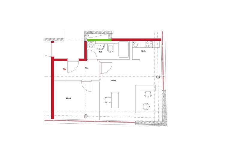
Grundrisse

Grundrisse
1 / 1

Realisiere Dein Projekt

Bausubstanz und Energie

Energieausweis

Endenergiebedarf (Wärme)

Endenergiebedarf (Strom)

  • Baujahr2016
  • Zustand der ImmobilieGepflegt
  • EnergieträgerFernwärme
MediumRectangleTop

Mietkosten

Warmmiete
1.190 €
Nettomiete
1.070 €
Nebenkosten
120 €
Heizkosten
in Warmmiete enthalten
Provision für Mieter
provisionsfrei
Kaution
1800 €

Lage

address-icon
Pfaffenhofen a d IlmPfaffenhofen (85276)
Der Anbieter hat die genaue Adresse nicht freigegeben
Am Rande der Hallertau zwischen Ilm und Gerolsbach liegt die Kreisstadt Pfaffenhofen, ca. 50 km nördlich von München und ca. 40 km südlich von Ingolstadt. Pfaffenhofen bietet neben einer hervorragenden Verkehrsanbindung (Autobahn A9 München/Nürnberg, Bundesstraße B13, Zuganbindung München/Nürnberg über Ingolstadt) alle Möglichkeiten einer modernen Stadt.

Das Objekt befindet sich in einer 1b-Innenstadtlage mit bahnhofsnähe. Einkaufsmöglichkeiten, der Stadtkern mit seinem schön angelegten Hauptplatz, Restaurants, sowie der Bahnhof sind bequem zu Fuß zu erreichen.

Weitere Informationen

Sonstiges Alle Angaben ohne Gewähr. KB Wohnbau - individual GmbH/Immobilien I. Hiereth übernimmt keine Haftung oder Garantie für die Aktualität, Richtigkeit und Vollständigkeit der bereitgestellten Informationen. Grundrisse sind nicht zur Maßentnahme geeignet.

Datenschutz:

Um das Interesse von Ihnen an der angebotenen Wohnung zu dokumentieren, benötigen wir die im Kontaktformular eingegebenen Daten. Wir brauchen diese zur Bearbeitung Ihrer Anfrage und für den Fall von Anschlussfragen. Diese Daten geben wir nicht ohne Ihre Einwilligung weiter. Rechtsgrundlage für die Verarbeitung der Daten ist unser berechtigtes Interesse an der Beantwortung Ihres Anliegens gemäß Art. 6 Abs. 1 lit. f DSGVO sowie ggf. Art. 6 Abs. 1 lit. b DSGVO, sofern Ihre Anfrage auf den Abschluss eines Vertrages abzielt.

Ihre Daten werden nach abschließender Bearbeitung Ihrer Anfrage gelöscht, sofern keine gesetzlichen Aufbewahrungspflichten entgegenstehen. Stichworte Gesamtfläche: 59,00 m², Bundesland: Bayern, 3 Etagen, nur Nichtraucher

Weitere Services

Lust auf eine Besichtigung?
Eine Frage zur Immobilie?
Nachricht hinzufügen
Mit der Nutzung der oben angegebenen Telefonnummer oder durch Klicken auf „Kontaktieren“ akzeptierst Du die Allgemeinen Nutzungsbedingungen, denen Du jederzeit widersprechen kannst. Weitere Informationen zum Datenschutz

Über den Anbieter

Moosburger Straße 7, 85276 Pfaffenhofen
partner badge
10 Jahre Partnerschaft
Frau Irmgard HierethDein Kontakt
Online-ID: 2ny9w5v
Referenznummer: 4 Büro 03
KB Wohnbau - individual - GmbH
KB Wohnbau - individual - GmbH
Bewertung: 4,1 von 5 Sternen
Nachricht hinzufügen
Mit der Nutzung der oben angegebenen Telefonnummer oder durch Klicken auf „Kontaktieren“ akzeptierst Du die Allgemeinen Nutzungsbedingungen, denen Du jederzeit widersprechen kannst. Weitere Informationen zum Datenschutz
MediumRectangleTop
MediumRectangleBottom
MediumRectangleTop
Wie zufrieden bist du mit dieser Seite (nicht mit der Immobilie selbst)?