
massa haus- Massimo Gargiulo
Kontaktiere den Anbieter schriftlich, es ist keine Telefonnummer hinterlegt.
Preise & Kosten
Provision für Käufer
provisionsfrei
Lage
Der Stadtteil Dortmund-Bittermark ist eine der bevorzugten Wohnlagen im Dortmunder Süden.
Der Standort ermöglicht einen Weitblick ins Grüne und ist äußerst ruhig gelegen.
Umgeben ist das Grundstück von individuellen Wohnbauten.
Hochwertige Gastronomien sind kurzfristig erreichbar.
Geschäfte des täglichen...
Das Haus
Kategorie
Mehrfamilienhaus
Baujahr
2024
Bezug
2024
Details
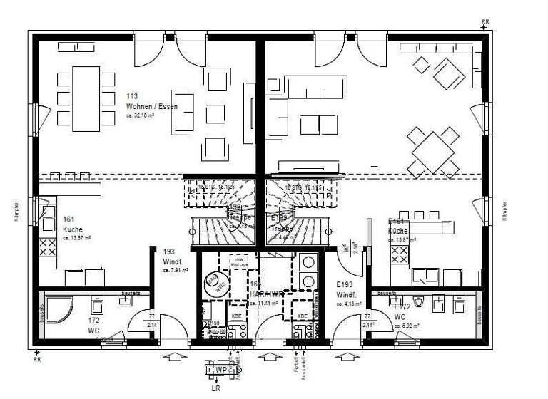
Objektbeschreibung
Das Grundstück befindet sich in bester Wohnlage des Dortmunder Südens, "Dortmund-Bittermark", in Sackgassenlage.
Bauen Sie mit massa haus und Sie gehören zu den über 3.000 Baufamilien, die sich jährlich für den Markführer entscheiden.
Faire Preise für ein energieeffizienteres Haus und ein Partner auf den Sie bauen...
Ausstattung
Klare Linien und großzügige Räume bieten Ihnen alles, was man zum glücklich sein braucht!
Inklusive Dacheindeckung in Wunschfarbe inkl. 30 Jahren Werksgarantie
Inklusive Dachrinnen und Fallrohre aus Titanzink bis Oberkante Bodenplatte
Inklusive Außenmineralputz weiß
Inklusive 3-fach verglasten Fenstern und...
Weitere Informationen
Sonstiges
Gerne stellen wir Ihnen das Gesamtprojekt in einem persönlichen Gespräch vor und freuen uns über Ihre Kontaktanfrage!
DATENSCHUTZINFORMATION:
https://www.massa-haus.de/kontakt/datenschutzerkl%C3%A4rung.html
Hinweis zu den gesetzlichen Pflichtangaben:
Das hier angebotene Haus ist ein...
Anbieter der Immobilie
massa haus- Massimo Gargiulo
Wesselbankweg 9, 44229 Dortmund
Kontaktiere den Anbieter schriftlich, es ist keine Telefonnummer hinterlegt.
Online-ID: 2j8rs5f
Referenznummer: 147442675
Finde Angebote wie dieses
Hier geht es zu unserem Impressum, den Allgemeinen Geschäftsbedingungen, den Hinweisen zum Datenschutz und nutzungsbasierter Online-Werbung.