Version: 8.25.0Navigation überspringen
2.250.000 €
4 Zimmer  •  320 m²  •  340 m² Grundstück
Immowelt logo

Haus zum Kauf
2250000 €
7.031 €/m²
4 Zimmer  •  320 m²  •  340 m² Grundstück

Elegantes Naturstein-Stadthaus mit Garten und Pool im historischen Zentrum von Alaró

Dieses wunderschön restaurierte, traditionelle Stadthaus befindet sich im Herzen des historischen Zentrums von Alaró, nur wenige Schritte vom Dorfplatz sowie von Cafés und Geschäften entfernt. Derzeit wird die Immobilie umfassend renoviert und steht kurz vor der Fertigstellung. Sie vereint auf harmonische Weise historischen Charme mit zeitgemäßem Wohnkomfort.

Das Haus bietet großzügige Proportionen und eine hochwertige Ausstattung auf einem Grundstück von 340 m². Im Erdgeschoss befinden sich ein Eingangsbereich, ein Gäste-WC, eine offene Küche mit Essbereich und ein gemütliches Wohnzimmer mit Kamin alle Räume mit Zugang zum nach Süden ausgerichteten Garten.

Der Außenbereich ist für eine Dorflage besonders reizvoll, mit sonnigen Terrassen, einem privaten Pool und einem hübschen Garten, der sich ideal zum Entspannen oder für gesellige Stunden eignet. Ein Duschbad neben dem Pool sorgt für zusätzlichen Komfort, während Natursteinmauern Privatsphäre und Ruhe schaffen.

Im Obergeschoss befinden sich vier Schlafzimmer mit Bad en suite, darunter eine eindrucksvolle Mastersuite mit Ankleideraum, großem Badezimmer und viel Tageslicht. Zusätzlich gibt es einen Hauswirtschaftsraum. Die Immobilie bietet herrliche Ausblicke über das Dorf und die umliegenden grünen Hügel.

Zur Ausstattung gehören Fußbodenheizung im gesamten Haus, Klimaanlage, Natursteinböden und hohe Decken. Es gibt außerdem eine kleine Garage, nur wenige Meter von einem malerischen Platz entfernt.

Eine seltene Gelegenheit, ein bezugsfertiges Haus mit zeitlosem Stil und moderner Ausstattung in einem der begehrtesten Dörfer Mallorcas zu erwerben.
#ref:5669

Merkmale

  • 340 m² Grundstück
  • Garten
  • Terrasse
  • voll klimatisiert
  • Swimmingpool

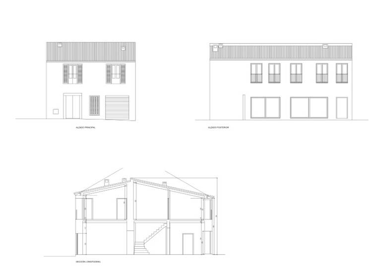
Grundrisse

Grundrisse
1 / 3

Realisiere Dein Projekt

Bausubstanz und Energie

Möchtest du Details zum Energieverbrauch?info_energy_calculation-icon
  • Baujahr0
  • HeizungsartFußbodenheizung
Immowelt logo

Preisdetails

Kaufpreis
2250000 €
7.031,25 €/m²
Provision für Käufer
Bitte beachte, das Angebot kann bei Vertragsabschluss die Zahlung einer Provision beinhalten. Weitere Informationen erhältst Du vom Anbieter.

Lage

address-icon
Alaró (07340)
Der Anbieter hat die genaue Adresse nicht freigegeben

Weitere Informationen

Stichworte Anzahl der Schlafzimmer: 4, Anzahl der Badezimmer: 5, Anzahl Terrassen: 1, Bundesland: Mallorca

Weitere Services

Lust auf eine Besichtigung?
Eine Frage zur Immobilie?
Nachricht hinzufügen
Mit der Nutzung der oben angegebenen Telefonnummer oder durch Klicken auf „Kontaktieren“ akzeptierst Du die Allgemeinen Nutzungsbedingungen, denen Du jederzeit widersprechen kannst. Weitere Informationen zum Datenschutz

Über den Anbieter

Placa Hostals 8, 07320 SANTA MARÍA DEL CAMÍ
partner badge
Partnerschaft
Living Blue MallorcaDein Kontakt
Online-ID: 25ST1D2EHB9Y
Referenznummer: 5669
Living Blue Mallorca
Living Blue Mallorca
Bewertung: 5 von 5 Sternen
Nachricht hinzufügen
Mit der Nutzung der oben angegebenen Telefonnummer oder durch Klicken auf „Kontaktieren“ akzeptierst Du die Allgemeinen Nutzungsbedingungen, denen Du jederzeit widersprechen kannst. Weitere Informationen zum Datenschutz
Wie zufrieden bist du mit dieser Seite (nicht mit der Immobilie selbst)?