

Einfamilienhaus zum Kauf • provisionsfrei420900 €2.943 €/m²5 Zimmer • 143 m² • 707 m² Grundstück
420900 €
2.943 €/m²
5 Zimmer • 143 m² • 707 m² Grundstück
JETZT ist immer die beste Zeit zum Bauen! Hausbau mit Kern-Haus!
Merkmale
- 707 m² Grundstück
- Gäste-WC
- Badewanne
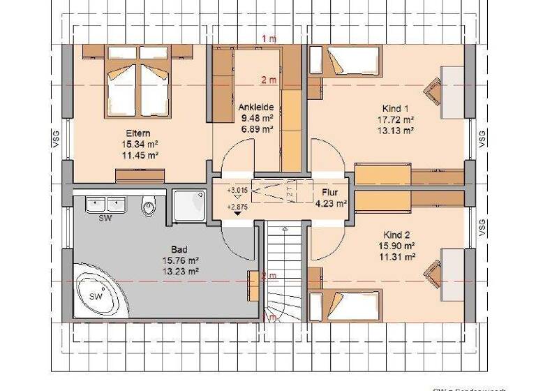
Grundrisse
Grundrisse
1 / 2
Realisiere Dein Projekt
Bausubstanz und Energie
Energieausweis
A+
- Baujahr2026
- Zustand der ImmobilieNeubau, Projektiert
- HeizungsartZentralheizung: FuĂźbodenheizung
- EnergieträgerElektro
Preisdetails
Kaufpreis
420900 €
2.943,36 €/m²
Provision für Käufer
provisionsfrei
Geschätzte Gesamtkosten
452.469 €1
Kaufpreis
420.900 €
Kaufnebenkosten
31.569 €
2Notarkosten (1,5%)
6.314 €
Grunderwerbsteuer (5,5%)
23.150 €
Grundbucheintrag (0,5%)
2.105 €
1Der angezeigte Wert ist eine automatisch berechnete Schätzung von immowelt.
2Bei den Angaben handelt es sich um ortsübliche Werte. Individuelle Kosten können abweichen.
Lage

Hartmannsdorf (09232)
Der Anbieter hat die genaue Adresse nicht freigegeben
Weitere Informationen
Weitere Services
Lust auf eine Besichtigung?
Eine Frage zur Immobilie?
Ăśber den Anbieter
KHC Bauträger GmbHMaklerbüro
Albert Einstein Str. 4, 09212 Limbach-Oberfrohna

Frau Janet SchrepelDein Kontakt
Online-ID: 2mpcd5p
Referenznummer: KH 101_07


KHC Bauträger GmbH
Bewertung: 5 von 5 Sternen
Wie zufrieden bist du mit dieser Seite (nicht mit der Immobilie selbst)?

