Die "Havelwelle" ist ein exklusives Neubauprojekt aus dem Jahr 2019, das sich direkt am Ufer der Havel in Potsdam West befindet. Die moderne Architektur dieses hochwertigen Gebäudes spiegelt sich besonders in der einzigartigen, wellenförmigen Fassade wider, die der Immobilie ihren Namen verleiht. Große Fensterfronten, die für viel Tageslicht sorgen, bieten einen tollen Blick aufs Wasser.
Das Gebäude verfügt über einen Keller mit Tiefgaragenstellplätzen sowie einen extra Abstellraum für SUPs, Kanus oder Ähnliches. Zudem gibt es praktische Fahrradabstellmöglichkeiten. Die gepflegte Grünfläche vor dem Haus fügt sich harmonisch in die Umgebung ein, während die direkte Lage am Wasser ein besonderes Wohlfühlambiente schafft. Ein besonderes Highlight ist der eigene Bootssteg direkt vor dem Gebäude, an dem Liegeplätze bei Bedarf separat angemietet werden können - ideal für Wassersportler und Bootsliebhaber. Die Kombination aus urbanem Komfort und der Nähe zur Natur bietet ein einzigartiges Lebensgefühl für all jene, die das Leben am Wasser schätzen.
Merkmale
frei ab 01.05.2026
Einbauküche
Gäste-WC
Keller
Balkon
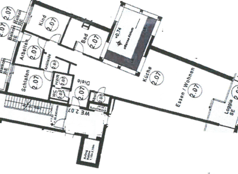
Die lichtdurchflutete 4-Zimmer-Wohnung begeistert mit ihrem modernen Schnitt und hochwertigen Ausstattungen. Große Fenster sowie der große Eckbalkon sorgen für eine helle und freundliche Atmosphäre und bieten einen atemberaubenden Blick auf die Havel.
Die Wohnung befindet sich in einem neuwertigen Zustand und verfügt über eine Einbauküche, sowie zwei Bäder und einen Hauswirtschaftsraum. Zusätzlich hat die Wohnung ein eigenes Kellerabteil, welches Platz zum Lagern, Fahrrädern o. Ä. bietet.
Die wohl herausragendste Charaktereigenschaft ist der Blick auf die Havel. Der natürliche Anblick bringt nicht nur Licht in die Räume, sondern schafft auch eine entspannende Atmosphäre, die zum Verweilen einlädt.
Die Wohnung ist mit Parkettdielen (Edelholzdielen aus Eiche) ausgestattet und verleiht der Wohnung eine elegante und warme Ausstrahlung.
Die aktuellen Mieter beabsichtigen, ausgewählte Einbauten, darunter eine Duschtrennwand und einen maßgefertigten Einbauschrank im Eingangsbereich, an die Nachmieter zu übergeben.
Grundrisse
Grundrisse
1 / 1
Realisiere Dein Projekt
Bausubstanz und Energie
Energieausweis
Baujahr2019
Zustand der ImmobilieNeubau
EnergieträgerFernwärme
Mietkosten
Warmmiete
2.595 €
Kaltmiete
15 €/m²
2.034 €
Nebenkosten
561 €
Heizkosten
226 €
Kaution
6.102,00 €
Lage
Potsdam West, Potsdam (14471)
Der Anbieter hat die genaue Adresse nicht freigegeben
1A-Lage
Die Wohnung befindet sich in einer absoluten A-Lage in Potsdam West, direkt am idyllischen Uferweg der Havel. Hier können Sie die perfekte Balance aus Ruhe, Natur und zentraler Lage genießen.
In nur einer Gehminute erreichen Sie das Kaufland für Ihre täglichen Einkäufe. Ebenfalls direkt vor der Tür befindet sich eine Tramstation, die eine schnelle Anbindung an das Stadtzentrum und andere Stadtteile von Potsdam ermöglicht. Die Regionalbahnstation "Bahnhof Pirschheide" ist in ca. 5 Tramminuten erreichbar und bietet eine direkte Verbindung zum Flughafen BER in nur 20 Minuten - ideal für Pendler und Reisende. In ca. 5 Gehminuten erreichen Sie die Regionalbahnstation "Bahnhof Charlottenhof", welche direkt nach Berlin oder Brandenburg a.d. Havel bietet.
Die Umgebung bietet eine Vielzahl von Parks und Grünflächen, wie den weitläufigen Templiner See, den Volkspark Potsdam oder Park Sanssouci, die sich perfekt für Spaziergänge, Joggingrunden oder Fahrradtouren eignen. Auch kulinarisch haben Sie in Potsdam West eine hervorragende Auswahl: In der Nähe finden sich zahlreiche Restaurants, Cafés und gemütliche Lokale, die lokale und internationale Küche bieten.
Mit dieser Lage direkt am Wasser, dem schnellen Zugang zu öffentlichen Verkehrsmitteln und der Nähe zu Geschäften und Restaurants verbindet die "Havelwelle" perfekt das Leben in der Natur mit urbanem Komfort.
Weitere Informationen
Sonstiges
Die Einwohnerzahl Potsdams beträgt derzeit ca. 187.000, die Tendenz ist stetig steigend, die Nachfrage nach Wohnraum aus diesem Grunde ebenso. Die Entwicklung der Stadt Potsdam als Standort für Medien und Wissenschaft ist rasant. Namenhafte Unternehmen aus Wissenschaft und Wirtschaft, wie zum Beispiel SAP und Oracle haben sich in Potsdam angesiedelt. Die Stadt Potsdam besitzt die größte Forschungs- und Wissenschaftsdichte Deutschlands und ist Standort von drei Universitäten.
Potsdams Innenstadt gehört mit zu den nachgefragtesten Wohnlagen von Potsdam.
Alle Angaben haben wir vom Eigentümer erhalten, für deren Richtigkeit übernehmen wir keine Gewähr.
Die Zwischenvermietung bleibt vorbehalten.
Innenbesichtigungen sind nach vorheriger Terminabstimmung möglich.
Stichworte
Tiefgarage vorhanden, Anzahl der Schlafzimmer: 3, Anzahl der Badezimmer: 2, Anzahl Balkone: 4