

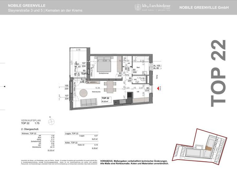
Wohnung zum Kauf - Erstbezug219000 €3.675 €/m²2 Zimmer • 51,3 m² • 2. Geschoss
219000 €
3.675 €/m²
2 Zimmer • 51,3 m² • 2. Geschoss
Stilvoll wohnen. Nachhaltig leben. Ideal gelegen -Nobile Greenville
Merkmale
- 2. Geschoss
- Barrierefrei
- Personenaufzug
- Bodenbelag: Fliesen, Holzdielen
- Loggia
Grundrisse
Grundrisse
1 / 1
Realisiere Dein Projekt
Bausubstanz und Energie
Heizwärmebedarf (HWB)
B
Gesamtenergieeffizienz (fGEE)
A+
- Baujahr2026
- Zustand der ImmobilieNeubau, Erstbezug
- HeizungsartFußbodenheizung
- EnergieträgerFernwärme, Solar
Preisdetails
Kaufpreis
219000 €
3.675,11 €/m²
Provision für Käufer
3% des Kaufpreises zzgl. 20% USt.
Lage

Kematen an der Krems (4531)
Weitere Informationen
Weitere Services
Lust auf eine Besichtigung?
Eine Frage zur Immobilie?
Über den Anbieter
OVB Allfinanzvermittlungs GmbHMaklerbüro
Sirone Straße 4/1/C, 5071 WALS B. SALZBURG
Partnerschaft
Frau Sara HufnaglDein Kontakt
Weitere Unterlagen
Online-ID: 253BUHLIXXV9
Referenznummer: OBGC20250710165838568b154366b19
OVB Allfinanzvermittlungs GmbH
Wie zufrieden bist du mit dieser Seite (nicht mit der Immobilie selbst)?

