Version: 8.24.0Navigation überspringen
1.280 €
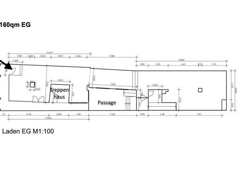
160 m² Bürofläche
Immowelt logo

Bürofläche zur Miete
1.280 €
160 m² Bürofläche

Sofort frei - DIE Laden- / Bürofläche in Hann. Münden - einzigartig und repräsentativ. Staffelmiete denkbar !

Diese gerade frei gewordenen Ladenfläche bietet DIE Chance auf einen gelungenen Neustart in attraktiven Räumen.
Vorab: Die Miete ist verhandelbar - eine Staffelmiete für einen leichteren Einstieg ist möglich.

Sie haben ein besonderes Angebot und suchen dafür das genau richtige Ambiente? Sie wünschen sich einen ansprechenden Präsentationsrahmen und den bestmöglichen Start für Ihr Business?
Mit diesen modernen und großzügigen Flächen bieten wir Ihnen genau diese Voraussetzungen. Auf insgesamt 160 m² Fläche lassen sich viele Ideen kreativ umsetzen; die Möglichkeiten der Gestaltung sind extrem vielseitig. Durch Glaselemente getrennt entstehen drei separate Bereiche, die dennoch fließend ineinander übergehen und eine optische Einheit bilden.
So können Warenpräsentation und z.B. Beratungsgespräche nebeneinander mit Leichtigkeit umgesetzt werden.

Eine Einbauküche ist bereits integriert und bietet sowohl für Mitarbeiter als auch für Kunden oder auch Teammeetings jederzeit die Möglichkeit, für eine kleine "Kaffeepause".
Wie bereits erwähnt, sind die Nutzungsmöglichkeiten vielseitig. Ob der Verkauf von Waren im Fokus steht oder ein Dienstleistungsangebot geplant ist, alles ist denkbar.

Am besten überzeugen Sie sich selbst von diesen wunderschönen Räumen. Hier stehe ich Ihnen sehr gerne zur Verfügung, auch an einem Wochenende.

Ihre Astrid Sauerbrey


!!! Die Nebenkosten verstehen sich inkl. Heizkosten - Vorauszahlung.
!!! Da die aktuelle Nebenkosten- Abrechnung noch nicht erstellt wurde,, können sich die Nebenkosten möglicherweise leicht verändern. Dies wird in einem persönlichen Gespräch besprochen

Merkmale

  • Erdgeschoss
Überblick:
Frei ab: Sofort
Fläche: 160 m²
Etage: Erdgeschoss
Heizung: Gas -Etagenheizung
Küchenzeile: Vorhanden
Toilette: ja
Kaltmiete: 1.280.- €
Nebenkosten: 420,00 € inkl. HK-Vorauszahlung
Kaution: 2 MM

Grundrisse

Grundrisse
1 / 1

Realisiere Dein Projekt

Bausubstanz und Energie

Der Anbieter hat keine Informationen zu Energieverbrauch oder Zustand der Immobilie bereit gestellt.
Immowelt logo

Mietkosten

Warmmiete
1.700 €
Nettomiete
1.280 €
Nebenkosten
420 €
Heizkosten
in Warmmiete enthalten
Provision für Mieter
2 Nettokaltmieten
Kaution
2 Nettokaltmieten
Weitere Preisinformationen
Nettokaltmiete: 1.280,00 EUR

Lage

address-icon
Hann. Münden (34346)
Der Anbieter hat die genaue Adresse nicht freigegeben
Diese Immobilienangebot befindet sich inmitten der historischen Altstadt von Hann. Münden. Im weiteren Umfeld befinden sich ein Tegut-Lädchen, ein Buchladen, Cafés, Eisdielen, Schreibwarenläden, Apotheken, Bekleidungsgeschäfte und weitere attraktive Anlaufstellen des täglichen Bedarfs.
Hann. Münden, zum Landkreis Göttingen zählend, ist eine Kleinstadt mit Charme, die nicht nur Touristen in ihren Bann zieht. Als "Drei-Flüsse-Stadt" bekannt, liegt sie im südlichen Niedersachsen und verzaubert durch ihr Fachwerk und die schöne umliegende Landschaft.
Die Infrastruktur ist sowohl im außer- als auch im innerstädtischen Bereich sehr gut. So sind auch die Autobahnanbindungen an die Städte Kassel und Göttingen geradezu ideal.

Weitere Informationen

Sonstiges Besuchen Sie auch unsere Homepage unter www.brandt-immobilien.org
Hier finden Sie unser komplettes Angebot und unsere "Allgemeinen Geschäftsbedingungen".
Um zeitliche Verzögerungen beim Versand weiterer Informationen zu vermeiden, teilen Sie uns bitte Ihre vollständige Anschrift mit Telefonnummer und E-Mailadresse mit.
Alle Angaben zum Objekt sind ohne Gewähr und basieren ausschließlich auf Informationen des Auftraggebers. Wir übernehmen keine Gewähr für die Vollständigkeit, Richtigkeit und Aktualität dieser Angaben. Es gelten unsere AGB.
Gerne stehe ich Ihnen für ein persönliches Gespräch zur Verfügung und vereinbare einen Besichtigungstermin mit Ihnen. Selbstverständlich auch an einem Wochenende
Ihre Astrid Sauerbrey Stichworte Gesamtfläche: 160,00 m², Verkaufsfläche: 150,00 m²

Weitere Services

Lust auf eine Besichtigung?
Eine Frage zur Immobilie?
Nachricht hinzufügen
Mit der Nutzung der oben angegebenen Telefonnummer oder durch Klicken auf „Kontaktieren“ akzeptierst Du die Allgemeinen Nutzungsbedingungen, denen Du jederzeit widersprechen kannst. Weitere Informationen zum Datenschutz

Über den Anbieter

Lenglerner Str. 57, 37079 Göttingen
partner badge
Partnerschaft
Frau Astrid SauerbreyDein Kontakt
Online-ID: 2lnmm5s
Referenznummer: 2025-BI-0045
Brandt Immobilien
Brandt Immobilien
Nachricht hinzufügen
Mit der Nutzung der oben angegebenen Telefonnummer oder durch Klicken auf „Kontaktieren“ akzeptierst Du die Allgemeinen Nutzungsbedingungen, denen Du jederzeit widersprechen kannst. Weitere Informationen zum Datenschutz
Wie zufrieden bist du mit dieser Seite (nicht mit der Immobilie selbst)?