Version: 8.22.4Navigation überspringen
650.000 €
Immowelt logo

Restaurant zum Kauf
650000 €

RENDITEOBJEKT Gastronomie Lokal mit 4,65% Rendite

Zum Verkauf gelangt eine gut laufendes Gastronomielokal mit aufrechtem Pachtvertrag, befristet bis 31.06.2029. 

Die Immobilie befindet sich im Erdgeschoss eines sanierten und gepflegten Gründerzeithauses an der Ecke Koppstraße / Haberlgasse und ist vor kurzem modernisiert worden.

ECKDATEN GESCHÄFTSLOKAL

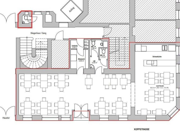
* NUTZFLÄCHE: 114 m²
* RÄUME: Gästeraum für bis zu 70 Personen, Küche, getrennte Toiletten, Personalbereich und Umkleide
* GESCHOSS: EG mit separatem Straßenzugang
* LAGER: es besteht die Möglichkeit zur Anmietung / Kauf von Lagerflächen im Haus - auf Anfrage, siehe auch Link: Objekt Gewölbekeller
* BEFRISTET VERPACHTET: Pachtvertrag bis 31.06.2029
* PACHTZINS NETTO: EUR 2.521,- pro Monat, EUR 30.252,- pro Jahr
* KAUFPREISRENDITE: ca. 4,65%

Das Gastronomielokal ist vollständig ausgestattet.
Für die Inneneinrichtung und Küche (außer der Geräte) wird eine Ablöse von € 38.000,- veranschlagt.

Aufgrund des laufenden Betriebes sind Besichtigungen nur mit Terminvereinbarung möglich.

Lage und Umgebung: 

Die Lage an der Koppstraße 38 / Ecke Haberlgasse im aufstrebenden Ottakring überzeugt durch ihre Vielseitigkeit: Eine ausgezeichnete Anbindung an das öffentliche Verkehrsnetz (Straßenbahn, Bus und U-Bahn), eine hervorragende Nahversorgung sowie ein vielfältiges gastronomisches Angebot machen diesen Standort besonders attraktiv. Direkt vor der Haustür laden neu gestaltete, öffentlich zugängliche Freiflächen zum Verweilen ein. Ergänzt wird das urbane Lebensgefühl durch zahlreiche Freizeit- und Kulturangebote in der Umgebung.

Der beliebte Brunnenmarkt und Yppenmarkt mit seinem multikulturellen Flair sind in wenigen Gehminuten erreichbar. Auch die nahegelegene Thaliastraße bietet eine breite Auswahl an Einkaufsmöglichkeiten.

Die öffentliche Verkehrsanbindung ist optimal: 
Straßenbahnlinien 9 und 46, die Buslinien 10A und 48A, sowie die nahegelegenen U-Bahnstationen der Linien U3 und U6 sorgen für schnelle Verbindungen in alle Teile der Stadt.

Noch nichts gefunden? Wir informieren Sie über geeignete Immobilienangebote noch vor allen anderen.
Legen Sie jetzt Ihren individuellen Suchagenten unter folgendem Link an. Wir schicken Ihnen passende Immobilien exklusiv vorab zu.
Suchagent anlegen [https://accenta-immobilien.service.immo/registrieren/de] - https://accenta-immobilien.service.immo/registrieren/de

Wir weisen darauf hin, dass zwischen dem Vermittler und dem zu vermittelnden Dritten ein familiäres oder wirtschaftliches Naheverhältnis besteht.

Der Vermittler ist als Doppelmakler tätig.

Sie wollen auch Ihre Immobilien Verkaufen oder Vermieten?

Accenta Immobilien - Ihr Partner für Immobilienvermittlung
www.accenta-immo.at [https://www.accenta-immo.at/verkaufen]
01/997 12 93
 

Infrastruktur / Entfernungen

Gesundheit
Arzt <250m
Apotheke <500m
Klinik <750m
Krankenhaus <1.500m

Kinder & Schulen
Schule <250m
Kindergarten <250m
Universität <1.000m
Höhere Schule <1.000m

Nahversorgung
Supermarkt <250m
Bäckerei <250m
Einkaufszentrum <750m

Sonstige
Geldautomat <250m
Bank <500m
Post <500m
Polizei <500m

Verkehr
Bus <250m
U-Bahn <750m
Straßenbahn <500m
Bahnhof <750m
Autobahnanschluss <4.500m

Angaben Entfernung Luftlinie / Quelle: OpenStreetMap

Merkmale

  • Bodenbelag: Fliesen

Grundrisse

Grundrisse
1 / 1

Realisiere Dein Projekt

Bausubstanz und Energie

Heizwärmebedarf (HWB)

D

Gesamtenergieeffizienz (fGEE)

D
  • Zustand der ImmobilieAltbau (bis 1945)
  • HeizungsartZentralheizung
  • EnergieträgerGas
Immowelt logo

Preisdetails

Kaufpreis
650000 €
Provision für Käufer
3% des Kaufpreises zzgl. 20% USt.

Lage

address-icon
KoppstraßeWien,Ottakring (1160)
Koppstraße / Haberlgasse

Weitere Informationen

Stichworte Wohnfläche: 114,00 m², Anzahl der separaten WCs: 2, Bundesland: Wien, modernisiert: 2018, modernisiert

Weitere Services

Lust auf eine Besichtigung?
Eine Frage zur Immobilie?
Nachricht hinzufügen
Mit der Nutzung der oben angegebenen Telefonnummer oder durch Klicken auf „Kontaktieren“ akzeptierst Du die Allgemeinen Nutzungsbedingungen, denen Du jederzeit widersprechen kannst. Weitere Informationen zum Datenschutz

Über den Anbieter

Georg-Sigl-Gasse 1/3, 1090 Wien
partner badge
10 Jahre Partnerschaft
Frau Martina SchützDein Kontakt
Online-ID: 2l72v5q
Referenznummer: OBGC20250919132006893dd3a10a4bf
ACCENTA Immobilien
ACCENTA Immobilien
Nachricht hinzufügen
Mit der Nutzung der oben angegebenen Telefonnummer oder durch Klicken auf „Kontaktieren“ akzeptierst Du die Allgemeinen Nutzungsbedingungen, denen Du jederzeit widersprechen kannst. Weitere Informationen zum Datenschutz
Wie zufrieden bist du mit dieser Seite (nicht mit der Immobilie selbst)?