




Bürofläche zur Miete • provisionsfrei25,50 €/m²2.211 m² Bürofläche • teilbar ab 2.211 m²
25,50 €
/m²
2.211 m² Bürofläche • teilbar ab 2.211 m²
ARBEITEN, WO ANDERE EINKAUFEN
Merkmale
- Bezug: nach Vereinbarung
- Personenaufzug
- Teeküche
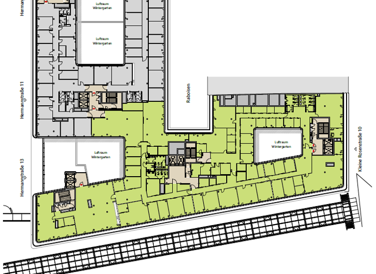
Grundrisse
Grundrisse
1 / 1
Realisiere Dein Projekt
Bausubstanz und Energie
Energieausweis
Endenergiebedarf (Wärme)
Endenergiebedarf (Strom)
- Baujahr2006
Mietkosten
Monatliche Miete
25,50 €/m²
Nebenkosten
8,90 €
Provision für Mieter
provisionsfrei; Provisionsfrei für den Mieter ab einer Vertragslaufzeit von 5 Jahren.
Kaution
keine Angabe
Lage

Hamburg-Altstadt, Hamburg (20095)
Der Anbieter hat die genaue Adresse nicht freigegeben
Weitere Informationen
Weitere Services
Lust auf eine Besichtigung?
Eine Frage zur Immobilie?
Über den Anbieter
Caffamacherreihe 8 / 1. OG, 20355 Hamburg
Partnerschaft + Diamond Partner

Herr Gordon BeraczDein Kontakt
Online-ID: 25TX5E1D5EB6
Referenznummer: 23221/06/1
Wie zufrieden bist du mit dieser Seite (nicht mit der Immobilie selbst)?



