Version: 8.24.0Navigation überspringen
320.900 €
3 Zimmer  •  82 m²  •  722 m² Grundstück
Immowelt logo

Bungalow zum Kauf • provisionsfrei
320900 €
3.913 €/m²
3 Zimmer  •  82 m²  •  722 m² Grundstück

Bungalow 81 qm Wlf.++inkl. Grundstück ++ schlüsselfertige und massive Bauweise

Merkmale

  • Bezug: 2027
  • 722 m² Grundstück
  • Gäste-WC
  • Gartenanteil
  • Barrierefrei
  • kontrollierte Be- und Entlüftungsanlage
  • Bad mit Dusche
  • ausbaufähiges Dach

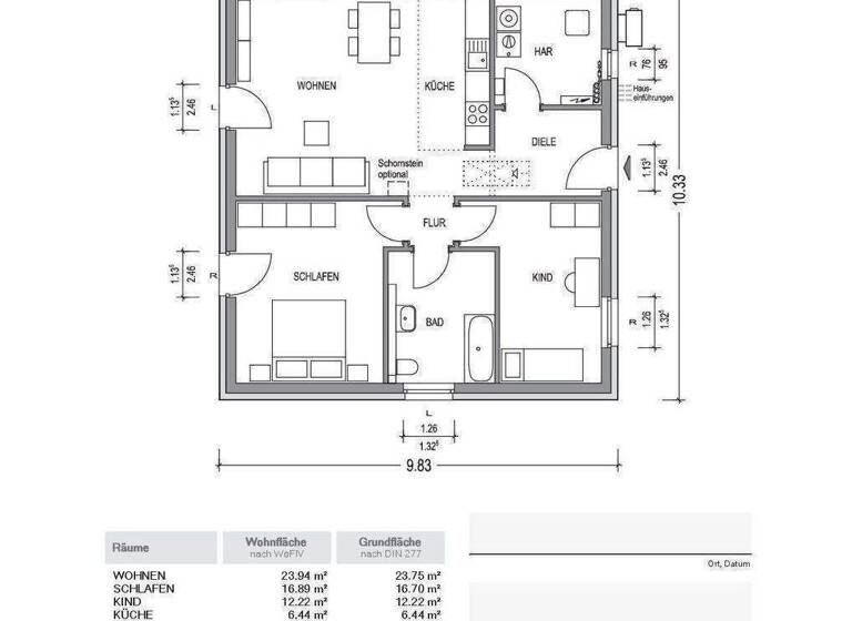
Grundrisse

Grundrisse
1 / 2

Virtueller Rundgang

Video

Realisiere Dein Projekt

Bausubstanz und Energie

Energieausweis

A+
  • Baujahr2026
  • Zustand der ImmobilieMassivhaus
  • HeizungsartFußbodenheizung
  • EnergieträgerElektro, Solar, Luft-/Wasser-Wärmepumpe
Immowelt logo

Preisdetails

Kaufpreis
320900 €
3.913,41 €/m²
Provision für Käufer
provisionsfrei
Geschätzte Gesamtkosten
346.573 €1
Kaufpreis
320.900 €
Notarkosten (1,5%)
4.814 €
Grunderwerbsteuer (6%)
19.254 €
Grundbucheintrag (0,5%)
1.605 €
1Der angezeigte Wert ist eine automatisch berechnete Schätzung von immowelt.
2Bei den Angaben handelt es sich um ortsübliche Werte. Individuelle Kosten können abweichen.

Lage

address-icon
Wittenförden (19073)
Der Anbieter hat die genaue Adresse nicht freigegeben
Neubauprojekt „Wiesengrund“ in Wittenförden

Jetzt schnell sein – bereits rund die Hälfte der Grundstücke ist verkauft oder reserviert!

Wir freuen uns, Ihnen das attraktive Neubauprojekt „Wiesengrund“ in der idyllischen Gemeinde Wittenförden vorstellen zu dürfen. Auf einer ca. 6,5 Hektar großen Neulandfläche entstehen knapp 60 großzügige Grundstücke für den Bau individueller Einfamilienhäuser. Die Grundstücksgrößen variieren zwischen 700 und 1.100 m² und bieten Ihnen den idealen Rahmen für die Verwirklichung Ihres Wohntraums.

Großzügige Grundstücke in bester Lage
Die Parzellen bieten ausreichend Platz für Ihr Traumhaus und einen weitläufigen Garten. „Wiesengrund“ liegt ruhig und grün, direkt an der westlichen Stadtgrenze von Schwerin. Hier genießen Sie das Beste aus zwei Welten: Die Ruhe des Landlebens und die Nähe zur städtischen Infrastruktur – in nur wenigen Minuten erreichen Sie das Zentrum Schwerins.

Individuelle Wohnkonzepte für jede Lebensphase:

Stadtvilla: Moderner Wohnkomfort ohne Dachschrägen mit 110–180 m² Wohnfläche

Bungalow: Ebenerdiges Wohnen ab 86 m² – ideal für Familien oder den Altersruhesitz

Klassisches Einfamilienhaus: Zeitlos schön mit 1,5 Geschossen und vielseitig gestaltbar

Wittenförden – lebenswerter Wohnort mit idealer Infrastruktur
Die Gemeinde bietet eine hohe Lebensqualität mit einer harmonischen Verbindung aus Natur und Alltagskomfort. Ein modernes Einkaufszentrum mit Supermarkt, Bäcker, Friseur und weiteren Geschäften ist bequem erreichbar. Kindergarten und Grundschule befinden sich direkt im Ort. Familien profitieren besonders von der sehr guten Anbindung an den öffentlichen Nahverkehr – so sind Sie schnell in Schwerin oder den umliegenden Gemeinden.

Natur erleben direkt vor der Haustür
Zwischen dem Naturschutzgebiet „Grambower Moor“ und dem „Neumühler See“ gelegen, lädt die Umgebung zu Spaziergängen, Radtouren und zahlreichen Freizeitaktivitäten ein. „Wiesengrund“ vereint naturnahes Wohnen mit hoher Lebensqualität.

Nutzen Sie jetzt Ihre Chance und sichern Sie sich Ihr Grundstück, bevor alles vergeben ist.
Wir beraten Sie gerne zu den verfügbaren Parzellen und Hausvarianten – kontaktieren Sie uns noch heute!

Weitere Informationen

Bungalow Bezahlbarer Wohnraum wird zunehmend zur Herausforderung in der Bauwirtschaft. Gründe dafür sind steigende Baustoffpreise, knappe Materialien, Fachkräftemangel und hohe Inflation. Bauen wird somit immer mehr zum Luxusgut.

Durch die konsequente Optimierung aller Planungs- und Bauprozesse können Kosten gesenkt werden. Einzelne Produkte und Bauteile werden vorgefertigt und direkt zur Baustelle geliefert, wo sie von einem geschulten Nachunternehmen montiert werden. Dies führt zu Einsparungen bei Personal, Transport, CO2 und Logistik. Eine einzige Kolonne übernimmt die Montage, wodurch die Arbeitszeit effizienter genutzt wird und dem Fachkräftemangel entgegengewirkt wird. Bauträger Heinz von Heiden bietet umfassende Expertise im Bau von Massivhäusern. Mit langjähriger Erfahrung, höchster Qualität und bundesweiter Beratung ist Heinz von Heiden der ideale Partner für den Hausbau in Massivbauweise. Mit über 55.000 erfolgreich realisierten Bauprojekten können Bauherren auf erstklassigen Service und bewährte Kompetenz vertrauen.

Ihre Vorteile auf einen Blick:

Über 90 Jahre Erfahrung im Hausbau und mehr als 55.000 realisierte Bauprojekte.

Qualitätsversprechen:
Verwendung hochwertiger Materialien und modernster Bauverfahren, um höchste Standards zu gewährleisten.

Große Auswahl:
Mehr als 100 verschiedene Haustypen und unzählige Grundrissvarianten bieten vielfältige Gestaltungsmöglichkeiten.

Zuverlässigkeit:
Bauzeitgarantie und feste Kostenkontrolle bieten maximale Sicherheit und Planbarkeit.

Umfassender Service:
Bundesweite Beratung und Betreuung durch erfahrene Fachleute, die in jeder Phase des Bauprojekts unterstützen.

Individuelle Gestaltung:
Bauherren können ihr Haus individuell an ihre Bedürfnisse und Wünsche anpassen. Die flexiblen Grundrissvarianten lassen keine Wünsche offen.

Nachhaltigkeit:
Heinz von Heiden legt Wert auf nachhaltige Bauweisen und energieeffiziente Lösungen, die sowohl die Umwelt schonen als auch Energiekosten senken.
Sicherheit und Transparenz:

Mit transparenter Preisgestaltung und der Möglichkeit zur schlüsselfertigen Übergabe bietet Heinz von Heiden ein sorgenfreies Bauerlebnis.

Mit einer klaren und transparenten Preisgestaltung sowie der Möglichkeit einer schlüsselfertigen Übergabe bietet Heinz von Heiden ein sorgenfreies Bauerlebnis.

Heinz von Heiden hat sich als stabiler Partner auch in herausfordernden Zeiten bewährt, wie die erneute Auszeichnung durch CREDITREFORM zeigt. Zum 14. Mal in Folge wurde Heinz von Heiden von diesem unabhängigen Institut für seine Zuverlässigkeit und Stabilität anerkannt.

Für Sie bedeutet das: ein Partner mit solider Basis und langjähriger Vertrauenswürdigkeit. Grundstückhinweis In unserem Inserat bieten wir ein noch zu bauendes Haus inklusive Grundstück an. Die Bau- und Kaufnebenkosten sind nicht enthalten. Das Grundstück erwerben Sie direkt vom Eigentümer.

Eine detaillierte Baukostenschätzung erhalten Sie nach einem persönlichen Gespräch. Bitte beachten Sie, dass zusätzliche Kosten für Hausanschlüsse, Baustrom, Bauwasser sowie für die Erwerbsnebenkosten des Grundstücks anfallen.
Weitere Informationen Bei den abgebildeten Häusern und Grundrissvarianten handelt es sich um Beispiele. Möbel und Visualisierungen im Grundriss sowie die Visualisierung des Hauses und deren Außenanlagen dienen nur der Veranschaulichung und sind nicht im Preis enthalten. Der Preis kann regional abweichen. Das Haus wird nach der aktuellsten Bau- und Leistungsbeschreibung sowie den geltenden AGB übergeben. Das Grundstück kommt von unseren Netzwerkpartnern. Angaben zum Grundstück ohne Gewähr.

Die üblichen Baunebenkosten sowie individuelle Wünsche sind nicht im
Preis enthalten. Hierzu beraten wir Sie gerne in einem persönlichen
Gespräch.
Der Grundstücksverkauf kann über Dritte wie Makler, Projektierer, über die
Gemeinde u.a. erfolgen
Ansprechpartner & Hinweis Interesse am besten Preis-Leistungs-Verhältnis?

Gern senden wir Ihnen ausführliche Unterlagen zum Angebot per E-Mail.

Bitte geben Sie uns dazu neben Ihrer E-Mail-Adresse auch Ihre Telefonnummer bekannt.


Wir sind für Sie jederzeit erreichbar.

IMMOBILIENREVIER GmbH ist Vertriebspartner der
Heinz von Heiden GmbH Massivhaus

Handy: 01520 8801469
Büro: 0385 77 77 7
Mail: info@immobilienrevier.de
Homepage: immobilienrevier.de

Hinweis: Der Angebotspreis bezieht sich auf das
schlüsselfertige Haus mit Grundstück zzgl. Baunebenkosten, Notar und
Grunderwerbssteuer.

Weitere Services

Lust auf eine Besichtigung?
Eine Frage zur Immobilie?
Nachricht hinzufügen
Mit der Nutzung der oben angegebenen Telefonnummer oder durch Klicken auf „Kontaktieren“ akzeptierst Du die Allgemeinen Nutzungsbedingungen, denen Du jederzeit widersprechen kannst. Weitere Informationen zum Datenschutz

Über den Anbieter

Schulstraße 1, 19073 Wittenförden
Herr Stefan Sperlich
Herr Stefan SperlichDein Kontakt

Weitere Unterlagen

Online-ID: 2ma8p5y
Referenznummer: B821 Wittenförden#
IMMOBILIENREVIER GmbH
title
IMMOBILIENREVIER GmbH
Nachricht hinzufügen
Mit der Nutzung der oben angegebenen Telefonnummer oder durch Klicken auf „Kontaktieren“ akzeptierst Du die Allgemeinen Nutzungsbedingungen, denen Du jederzeit widersprechen kannst. Weitere Informationen zum Datenschutz
Wie zufrieden bist du mit dieser Seite (nicht mit der Immobilie selbst)?