Version: 8.24.0Navigation ĂĽberspringen
155.000 €
Immowelt logo

Sonstiges zum Kauf • provisionsfrei
155000 €

Ideal fĂĽr Handwerk, Lager, Archiv oder Fitness - Kauf oder evtl. auch Miete!

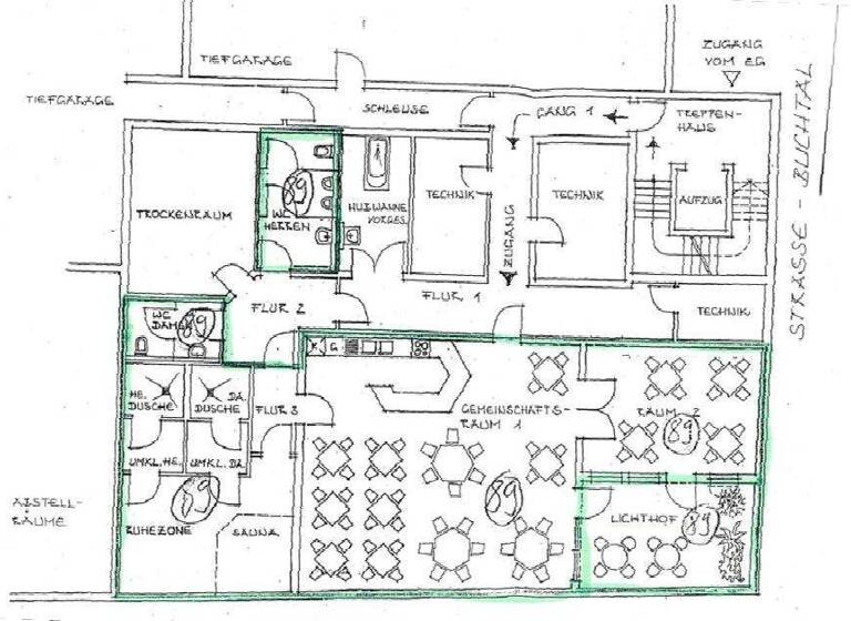
Vielseitige Räume im Untergeschoss eines Wohn- und Geschäftshauses in Eichstätt. Durch den Lichthof ist ausreichend Tageslicht vorhanden. Durch jeweils 2 getrennte Duschräume und Toiletten sowie die Anschlussmöglichkeiten für eine Küchenzeile ist eine vielseitige Nutzung vorstellbar.

Bei Interesse wäre es ggf. auch möglich, die Räume von uns zu mieten.

Diese flexibel nutzbaren Räume befinden sich im Untergeschoss eines Wohn- und Geschäftshauses in Buchtal 32, 85072 Eichstätt. Über die Tiefgarage sowie den Aufzug sind sie barrierefrei erreichbar.

Mit einer Fläche von 177 m² zzgl. einem begehbaren Lichthof bietet sich Ihnen viel Platz für verschiedene Nutzungsmöglichkeiten, z.B. als

- Büro- oder Geschäftsfläche für ein kleines Unternehmen oder ein Start-up.

- Lager- oder Archivraum für eine Firma oder einen Verein, die viel Platz für die Lagerung von Materialien oder Dokumenten benötigen.

- Räume für handwerkliche Tätigkeiten, 3-D-Druck oder Bastelarbeiten.

- Trainings- oder Fitnessraum fĂĽr einen Personal Trainer.

- Künstleratelier oder Ausstellungsraum für Künstler, Musiker oder andere kreative, die viel Platz für ihre Arbeit benötigen.

Die Räume sind alarmgesichert und befinden sich in zentraler Lage in Eichstätt. In der Nähe finden Sie eine Vielzahl von Geschäften, Restaurants und anderen Einrichtungen.

Kontaktieren Sie uns noch heute, um mehr zu erfahren und einen Besichtigungstermin zu vereinbaren.

Ansprechpartnerin: Frau Skrodzki, Tel. +49 841 304-1643, davorka.skrodzik@spk-in-ei.de.

Merkmale

  • frei ab sofort
  • Personenaufzug

Grundrisse

Grundrisse
1 / 1

Realisiere Dein Projekt

Bausubstanz und Energie

Energieausweis

C
  • Baujahr1997
  • HeizungsartZentralheizung
  • EnergieträgerGas
Immowelt logo

Preisdetails

Kaufpreis
155000 €
Provision für Käufer
provisionsfrei; prov.frei
Geschätzte Gesamtkosten
155.000 €1
Kaufpreis
155.000 €
1Der angezeigte Wert ist eine automatisch berechnete Schätzung von immowelt.

Lage

address-icon
Eichstätt (85072)
Der Anbieter hat die genaue Adresse nicht freigegeben
Die Bischofs- und Universitätsstadt Eichstätt mit ca. 14.000 Einwohnern liegt im Naturpark Altmühltal und ist zugleich Große Kreisstadt sowie Sitz des Landkreises Eichstätt. Sie befindet sich geographisch in der Mitte Bayerns auf halber Strecke zwischen München und Nürnberg und ist sowohl über die Autobahn A 9 als auch mit dem Zug gut zu erreichen. Die liebenswerte Kleinstadt gilt als Hauptort des Naturparks Altmühltal und zeigt sich äußerst vielseitig. Barocke Bauwerke, moderne Architektur, prächtige Gotteshäuser und die Willibaldsburg mit dem weltberühmten Urvogel Archaeopteryx prägen das Stadtbild. Direkt an der beruhigenden Altmühl gelegen, südlich des Fränkischen Juras, ist die überschaubare Stadt idealer Ausgangspunkt für Naturverbundene.
Eichstätt weist eine sehr gute Infrastruktur auf. In Eichstätt gibt es Grund- und Hauptschulen, zwei Sonderschulen, zwei Realschulen, zwei Gymnasien, eine Berufsschule, eine Altenpflegeschule, eine Fachakademie und die Katholische Universität mit ca. 4.000 Studentinnen und Studenten. Alle behördlichen und kulturellen Einrichtungen stehen ebenfalls zur Verfügung.
Der größte Arbeitgeber der Region, die Audi AG, ist über die B 13 gut mit dem Auto zu erreichen. Innerhalb der Stadt kommen Sie mit der Stadtlinie des ÖPNV schnell an Ihr Ziel.

Weitere Informationen erhalten Sie unter www.eichstaett.de.

Weitere Informationen

Stichworte Gesamtfläche: 177,00 m², Bundesland: Bayern

Weitere Services

Lust auf eine Besichtigung?
Eine Frage zur Immobilie?
Nachricht hinzufĂĽgen
Mit der Nutzung der oben angegebenen Telefonnummer oder durch Klicken auf „Kontaktieren“ akzeptierst Du die Allgemeinen Nutzungsbedingungen, denen Du jederzeit widersprechen kannst. Weitere Informationen zum Datenschutz

Ăśber den Anbieter

Franziskanerstr. 9, 85049 Ingolstadt
Herr JĂĽrgen S1251051 ReindlDein Kontakt
Online-ID: 2nxm553
Referenznummer: 1/20/167-167/011521
Sparkasse Ingolstadt Eichstätt i.V.d. Sparkassen-Immobilien-Vermittlungs GmbH
Sparkasse Ingolstadt Eichstätt i.V.d. Sparkassen-Immobilien-Vermittlungs GmbH
Nachricht hinzufĂĽgen
Mit der Nutzung der oben angegebenen Telefonnummer oder durch Klicken auf „Kontaktieren“ akzeptierst Du die Allgemeinen Nutzungsbedingungen, denen Du jederzeit widersprechen kannst. Weitere Informationen zum Datenschutz
Wie zufrieden bist du mit dieser Seite (nicht mit der Immobilie selbst)?