Version: 8.24.1Navigation überspringen
7,33 €
9 Zimmer
Immowelt logo

Büro zur Miete
7,33 €
/m²
9 Zimmer

Büro-/Praxisräume in zentraler Lage in Teisnach zu vermieten

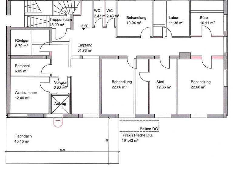
Wir bieten Ihnen eine attraktive Gewerbefläche in Teisnach an, die sich ideal für Büro- oder Praxiszwecke eignet. Das Gebäude wurde circa 1964 errichtet und zuletzt 2007 modernisiert und befindet sich in einem gepflegten Zustand. Neun Räume mit einer Gesamtnutzfläche von etwa 174 m² befinden sich im ersten Obergeschoss und sind über einen Personenaufzug bequem zu erreichen. Die Gewerbefläche wird derzeit noch bis Ende Mai als Zahnarztpraxis genutzt. Im Anschluss und nach Renovierungsarbeiten können die Räumlichkeiten bezogen werden. Parkmöglichkeiten bestehen direkt am Gebäude und auf dem angrenzenden öffentlichen Parkplatz.

Merkmale

  • frei ab 01.06.2026
  • vermietet
  • 1. Geschoss
  • Keller
  • voll erschlossen

Grundrisse

Grundrisse
1 / 1

Realisiere Dein Projekt

Bausubstanz und Energie

Energieausweis

Endenergieverbrauch (Wärme)

Endenergieverbrauch (Strom)

  • Baujahr1964
  • Zustand der ImmobilieMassivhaus, Gepflegt
  • HeizungsartZentralheizung
  • EnergieträgerÖl
Immowelt logo

Mietkosten

Warmmiete
1.650 €
Nettomiete
7,33 €/m²
1.400 €
Nebenkosten
250 €
Heizkosten
in Warmmiete enthalten
Provision für Mieter
2,38 KM inkl. MwSt.
Kaution
2800 €
Weitere Preisinformationen
Nettokaltmiete: 1.400,00 EUR

Lage

address-icon
Teisnach (94244)
Der Anbieter hat die genaue Adresse nicht freigegeben

Weitere Informationen

Stichworte Gesamtfläche: 174,00 m², Bundesland: Bayern, 4 Etagen, modernisiert: 2007

Weitere Services

Lust auf eine Besichtigung?
Eine Frage zur Immobilie?
Nachricht hinzufügen
Mit der Nutzung der oben angegebenen Telefonnummer oder durch Klicken auf „Kontaktieren“ akzeptierst Du die Allgemeinen Nutzungsbedingungen, denen Du jederzeit widersprechen kannst. Weitere Informationen zum Datenschutz

Über den Anbieter

Ludwigsbrücke 2, 94209 Regen
partner badge
10 Jahre Partnerschaft
Herr Gunther HallerDein Kontakt
Online-ID: 2nfdw5d
Referenznummer: 1/20/583-583/010620
Sparkasse Regen-Viechtach in Vertretung der Sparkassen-Immobilien-Vermittlungs-GmbH
Bewertung: 4,7 von 5 Sternen
Nachricht hinzufügen
Mit der Nutzung der oben angegebenen Telefonnummer oder durch Klicken auf „Kontaktieren“ akzeptierst Du die Allgemeinen Nutzungsbedingungen, denen Du jederzeit widersprechen kannst. Weitere Informationen zum Datenschutz
Wie zufrieden bist du mit dieser Seite (nicht mit der Immobilie selbst)?