128?m² Garten, zwei Terrassen, moderne Ausstattung - das ist Ihr neues Zuhause
Kurzbeschreibung
erdgeschoss-vodice-erstbezug-terrasse
Objekt
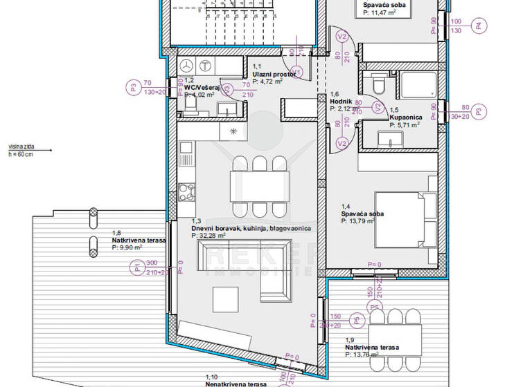
Diese Wohnung bietet Ihnen mehr als nur Räume: Ein großer Garten, zwei Terrassen und moderne Technik sorgen für echtes Wohngefühl. Dazu kommt die ruhige Lage - nur wenige Gehminuten vom Meer entfernt.
Der Anbieter hat die genaue Adresse nicht freigegeben
Vodice liegt direkt an der Küste, in einer beliebten, aber nicht überlaufenen Region. Die Wohngegend dieses Neubauprojekts ist ruhig und entspannt, kein Durchgangsverkehr, wenig Lärm. Der Strand ist nur rund 600?Meter entfernt, also bequem zu Fuß erreichbar. Auch das Ortszentrum mit Geschäften und Infrastruktur liegt in Gehweite, etwa 800?Meter. Die Nachbarschaft besteht überwiegend aus gepflegten Wohnhäusern mit Gärten und mediterranem Flair.
Das Projekt besteht aus zwei modernen Gebäuden. Klare Linien, helle Fassaden, großzügige Balkone. In jedem Haus gibt es lediglich drei Wohnungen - je eine pro Etage. Das sorgt für Ruhe und Privatsphäre. Die Gebäude sind hochwertig gebaut und auf Komfort ausgelegt: durchdachte Grundrisse, viel Licht, hohe Funktionalität. Jede Wohnung bekommt eigenen Stellplatz direkt vor dem Haus. Die Freifläche ist gepflastert, gepflegt und von viel Grün umgeben.
Weitere Informationen
Stichworte
Stellplatz vorhanden, Süd-West-Balkon/Terrasse, Anzahl der Schlafzimmer: 2, Anzahl der Badezimmer: 1, Anzahl Terrassen: 1, Gartenfläche: 128,08 m², 1 Etagen, Distanz zur nächsten Einkaufsmöglichkeit: 0.70, Distanz zum Flughafen: 65.00