Version: 8.23.0Navigation überspringen
495.000 €
8 Zimmer  •  231 m²
Immowelt logo

Maisonette zum Kauf • provisionsfrei
495000 €
2.143 €/m²
8 Zimmer  •  231 m²

großzügige Maisonette-Wohnung mit Dachterrasse in zentraler Lage von Kassel-Wehlheiden

+++ provisionsfrei für Käufer +++

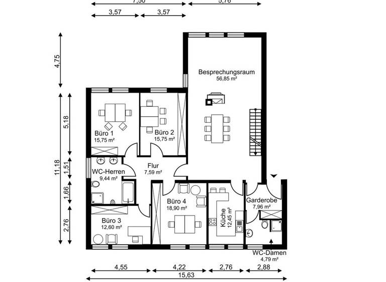
Diese großzügige Maisonette-Einheit in Kassel-Wehlheiden bietet rund 231 m² Wohn- oder Nutzfläche über zwei Ebenen und eignet sich sowohl als Wohnung als auch als Büro oder Praxis. Die Einheit wurde zuletzt gewerblich genutzt, steht aktuell leer und kann kurzfristig übernommen werden. Laut Bauaufsicht ist eine Nutzungsänderung zu Wohnzwecken ohne Genehmigung möglich (genehmigungsfrei nach § 63 HBO).

Insgesamt stehen acht Zimmer, zwei Bäder, eine Küche mit Einbauküche sowie eine kleine Dachterrasse zur Verfügung. Ein großzügiger Wohn- oder Besprechungsbereich mit hoher Decke sorgt für ein besonderes Raumgefühl. Neue dreifachverglaste Fenster aus dem Jahr 2025, Fußbodenheizung, ein Stellplatz sowie ein eigener Kellerraum runden das Angebot ab.

Zentrale Lage in Kassel-Wehlheiden mit guter Infrastruktur und kurzen Wegen in die Innenstadt.

Diese Immobilie interessiert Sie? Fordern Sie jetzt das vollständige Exposé mit allen Details und Bildern an!


Hinweis: Einige der dargestellten Bilder wurden virtuell möbliert. Die gezeigten Einrichtungen dienen ausschließlich als Einrichtungsbeispiele und sollen eine bessere Vorstellung von den Nutzungsmöglichkeiten der Räume vermitteln. Die Immobilie wird im aktuellen, nicht möblierten Zustand verkauft.

Merkmale

  • Bezug: ab sofort
  • Einbauküche
  • Kelleranteil
  • Balkon
  • Badezimmer: Badewanne, Bad mit Dusche, Bad mit Fenster
  • Bodenbelag: Fliesen, Teppich
- besonderer Charakter durch Maisonette-Struktur

- Fußbodenheizung

- Dachterrasse

- große und helle Räume

- Gas-Zentralheizung mit Warmwasseraufbereitung (Fernwärmeanschluss geplant im Jahr 2028)

- Erhaltungsrücklage der Gemeinschaft bei über 100.000 Euro bildet eine solide Grundlage für zukünftige Maßnahmen (Stand 31.12.2024)

- neue, dreifach-verglaste-Fenster mit integrierte Rollläden (im Jahr 2025)

- lt. Wirtschaftsplan: Hausgeld inkl. Erhaltungsrücklage liegt bei 821,00 Euro/monatlich

- zugeordneter Kfz-Stellplatz

- eigener Kellerraum

- Bad mit Dusche und Badewanne

- Einbauküche

Grundrisse

Grundrisse
1 / 2

Realisiere Dein Projekt

Bausubstanz und Energie

Energieausweis

G
  • Baujahr1979
Immowelt logo

Preisdetails

Kaufpreis
495000 €
2.142,86 €/m²
Provision für Käufer
provisionsfrei; Provisionsfrei für den Käufer
Geschätzte Gesamtkosten
534.600 €1
Kaufpreis
495.000 €
Notarkosten (1,5%)
7.425 €
Grunderwerbsteuer (6%)
29.700 €
Grundbucheintrag (0,5%)
2.475 €
1Der angezeigte Wert ist eine automatisch berechnete Schätzung von immowelt.
2Bei den Angaben handelt es sich um ortsübliche Werte. Individuelle Kosten können abweichen.

Lage

address-icon
WehlheidenKassel (34121)
Der Anbieter hat die genaue Adresse nicht freigegeben
Die Immobilie befindet sich in zentraler Lage von Kassel-Wehlheiden, einem gewachsenen und gefragten Stadtteil mit urbanem Charakter. Die Umgebung ist geprägt von einer Mischung aus Wohn- und Geschäftshäusern sowie einer guten Infrastruktur.

Einkaufsmöglichkeiten, gastronomische Angebote, Ärzte, Schulen und öffentliche Verkehrsmittel befinden sich in der näheren Umgebung und sind teilweise fußläufig erreichbar. Auch die Kasseler Innenstadt ist in kurzer Zeit erreichbar, sowohl mit dem Auto als auch mit öffentlichen Verkehrsmitteln.

Die Lage eignet sich daher sowohl für Wohnen als auch für gewerbliche Nutzungen wie Büro, Praxis oder Kanzlei.

Weitere Informationen

Sonstiges Laut der EU-Verbraucherrechte-Richtlinie (Fernabsatzrecht) sind wir verpflichtet, von allen Interessenten bei einer Anfrage - z.B. per Internet, E-Mail, Telefon oder Brief - die Identität zu prüfen (§2 Abs. 10 GwG). Wir benötigen, falls noch nicht geschehen, den vollständigen Namen mit Adresse und Telefonnummer. Ohne diese Angaben können wir keine Adressen zu Objekten bekannt geben. Dazu sind alle Immobilienmakler verpflichtet. Der Schutz Ihrer personenbezogenen Daten bei der Erhebung, Verarbeitung und Nutzung ist uns ein wichtiges Anliegen. Ihre Daten werden im Rahmen der gesetzlichen Vorschriften geschützt. Gerne können wir darüber bei der Besichtigung oder im Telefonat sprechen. Der Gesetzgeber räumt außerdem bei allen Dienstleistungen, deren Verträge per Telefon, per Internet oder über andere Fernkommunikationsmittel abgeschlossen werden, ein Widerrufsrecht ein. Eine Widerrufsbelehrung wird Ihnen bei einer Anfrage durch uns zugeschickt. Erst wenn Sie diese bestätigt haben, können wir detaillierte Informationen zum Objekt versenden.

Wichtiger Hinweis: Die vorstehenden Angaben sind sorgfältig recherchiert und werden stetig aktualisiert. Da sie jedoch ausschließlich auf Auskünften von Dritten basieren, übernehmen wir keine Gewähr, Haftung oder Garantien. Stichworte Stellplatz vorhanden, Anzahl Balkone: 1, Bundesland: Hessen

Weitere Services

Lust auf eine Besichtigung?
Eine Frage zur Immobilie?
Nachricht hinzufügen
Mit der Nutzung der oben angegebenen Telefonnummer oder durch Klicken auf „Kontaktieren“ akzeptierst Du die Allgemeinen Nutzungsbedingungen, denen Du jederzeit widersprechen kannst. Weitere Informationen zum Datenschutz

Über den Anbieter

ITAJ IMMOBILIEN
ITAJ IMMOBILIENMaklerbüro
Hullerser Landstraße 7, 37574 Einbeck
partner badge
Partnerschaft
Herr Mikron ItajDein Kontakt
Online-ID: 2n8ju5l
Referenznummer: 4922421
ITAJ IMMOBILIEN
ITAJ IMMOBILIEN
Nachricht hinzufügen
Mit der Nutzung der oben angegebenen Telefonnummer oder durch Klicken auf „Kontaktieren“ akzeptierst Du die Allgemeinen Nutzungsbedingungen, denen Du jederzeit widersprechen kannst. Weitere Informationen zum Datenschutz
Wie zufrieden bist du mit dieser Seite (nicht mit der Immobilie selbst)?