Version: 8.22.4Navigation überspringen
9,90 €
8 Zimmer
Immowelt logo

Büro zur Miete
9,90 Euro pro Quadratmeter
8 Zimmer

1.416 m² | teilklimatisiert & top angebunden nahe A2

Zur Vermietung steht eine großzügige Fläche mit ca. 1.416 m² im 2. Obergeschoss. Die Einheit wurde zuletzt als Fitnessstudio genutzt und bietet damit eine außergewöhnlich offene, vielseitige Struktur - perfekt für Unternehmen, die viel Platz benötigen oder eine Nutzung mit Bewegungs- oder Trainingsbereichen planen.

 

Die Fläche eignet sich ideal als

* Großraumbüro,
* Fitness- oder Trainingsfläche,
* Praxiszentrum,
* oder ähnliche Nutzungsarten.

Helle Bereiche, teilklimatisierte Zonen und modern vorhandene Anschlüsse ermöglichen eine flexible Weiterentwicklung - egal ob Bürolösung oder sportnahe Nutzung.

 

Kosteninformation: 

Miete: € 9,90/m² per Monat
BK-aconto: € 2,00/m² per Monat

Alle Beträge zuzüglich 20% USt.

 

Kaution: 3 Bruttomonatsmieten 
Provision: 3 Bruttomonatsmieten zzgl. 20% USt. 

 

Eine ideale Fläche für Unternehmen, die viel Raum, starke Infrastruktur und hervorragende Verkehrsanbindung suchen.

Wir weisen darauf hin, dass zwischen dem Vermittler und dem zu vermittelnden Dritten ein familiäres oder wirtschaftliches Naheverhältnis besteht.

Infrastruktur / Entfernungen

Gesundheit
Arzt <1.000m
Apotheke <1.000m
Klinik <2.500m
Krankenhaus <2.000m

Kinder & Schulen
Schule <1.500m
Kindergarten <1.000m
Höhere Schule <1.500m

Nahversorgung
Supermarkt <500m
Bäckerei <1.500m
Einkaufszentrum <1.500m

Sonstige
Bank <1.500m
Geldautomat <1.500m
Post <1.000m
Polizei <1.000m

Verkehr
Bus <500m
U-Bahn <6.500m
Bahnhof <500m
Autobahnanschluss <2.000m
Straßenbahn <3.500m

Angaben Entfernung Luftlinie / Quelle: OpenStreetMap

Merkmale

  • Bezug: sofort
  • 2. Geschoss
  • Terrasse
  • Barrierefrei

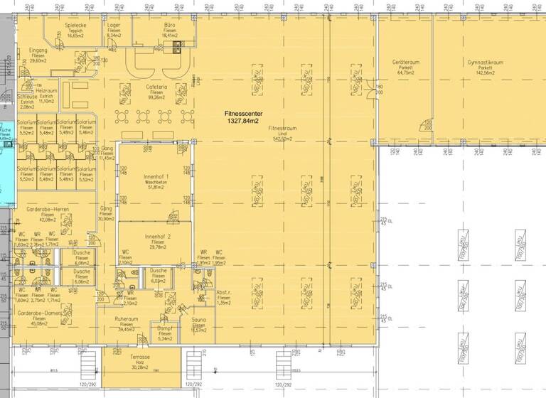
Grundrisse

Grundrisse
1 / 1

Realisiere Dein Projekt

Bausubstanz und Energie

Heizwärmebedarf (HWB)

B

Gesamtenergieeffizienz (fGEE)

Der Anbieter hat keine Daten zum Energieausweis hinterlegt.
Immowelt logo

Mietkosten

Nettokaltmiete
9,90 €/m²
14.027,31 €
Betriebskosten
2.833,80 €
Provision für Mieter
3 Bruttomonatsmieten zzgl. 20% USt.
Kaution
3 Bruttomonatsmieten
Weitere Preisinformationen
Nettokaltmiete: 14.027,31 EUR

Lage

address-icon
Wiener Neudorf (2351)
Der Anbieter hat die genaue Adresse nicht freigegeben

Weitere Informationen

Stichworte Nutzfläche: 1.416,90 m², Anzahl der Badezimmer: 3, Anzahl der separaten WCs: 6, Anzahl Terrassen: 1, Bundesland: Niederösterreich

Weitere Services

Lust auf eine Besichtigung?
Eine Frage zur Immobilie?
Nachricht hinzufügen
Mit der Nutzung der oben angegebenen Telefonnummer oder durch Klicken auf „Kontaktieren“ akzeptierst Du die Allgemeinen Nutzungsbedingungen, denen Du jederzeit widersprechen kannst. Weitere Informationen zum Datenschutz

Über den Anbieter

Rotenturmstraße 17 / 10, 1010 WIEN
partner badge
Partnerschaft
Frau Katharina PavlikDein Kontakt
Keine Telefonnummer hinterlegt
Keine Telefonnummer hinterlegt
Online-ID: 2m2yx5d
Referenznummer: OBGC202307181741017298415facaec
Werner Hoflehner GmbH
Werner Hoflehner GmbH
Bewertung: 1,5 von 5 Sternen
Nachricht hinzufügen
Mit der Nutzung der oben angegebenen Telefonnummer oder durch Klicken auf „Kontaktieren“ akzeptierst Du die Allgemeinen Nutzungsbedingungen, denen Du jederzeit widersprechen kannst. Weitere Informationen zum Datenschutz
Wie zufrieden bist du mit dieser Seite (nicht mit der Immobilie selbst)?