Version: 8.25.1Navigation überspringen
2.454 €
212 m² Lagerfläche
Immowelt logo

Werkstatt zur Miete - Erstbezug
2.454 €
212 m² Lagerfläche

212 m² - Zentrale Werkstatt in City-Nähe

- Praktische Werkstattfläche im Neubauprojekt RODENWORKS mit einer Gesamtfläche von ca. 5.800 m² im Stadtteil HH-Rothenburgsort
- Ca. 212 m² Werkstattfläche im Erdgeschoss gelegen
- Individuelle Konfiguration der Flächen für unterschiedliche Nutzungskonzepte und Anforderungen
- Moderner Industriestil
- Möglichkeit mehrere Ebenen oder Kleinflächen zusammenzulegen
- Deckenhöhe von ca. 4 m
- Große Fensterflächen zur Straße hin
- Große Terrasse vor der Fläche
- (Leucht-)Werbeanlagen im Schaufenster-/Eingangsbereich möglich
- Videogegensprechanlage
- Vorgesehener, außenliegender Sonnenschutz mit Regen-Windfühler und Lichtsensor
- Barrierefrei
- Lastenaufzug 2 x 3 m mit einer Tragkraft von ca. 3,35 t
- Dachbegrünung
- KFW-55 Standard
- Fernwärme Heizung
- 25 TG-Stellplätze und auch Fahrradstellplätze
- Zwei Außenstellplätze für Sprinter
- Q2/ 25 bezugsfertig

Merkmale

  • Bezug: Q2/2025
  • voll klimatisiert

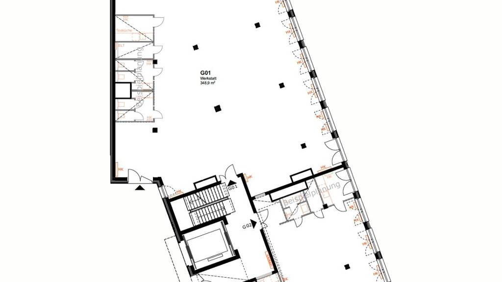
Grundrisse

Verschaffe dir einen genauen Überblick über die Raumaufteilung.selection_property_house-icon

Realisiere Dein Projekt

Bausubstanz und Energie

Möchtest du Details zum Energieverbrauch?info_energy_calculation-icon
  • Baujahr2025
  • Zustand der ImmobilieErstbezug
Immowelt logo

Mietkosten

Warmmiete
3.094,30 €
Nettomiete
2.454,10 €
Nebenkosten
640,20 €
Provision für Mieter
Bitte beachte, das Angebot kann bei Vertragsabschluss die Zahlung einer Provision beinhalten. Weitere Informationen erhältst Du vom Anbieter.
Kaution
keine Angabe
Weitere Preisinformationen
Nebenkosten pro qm: 3,00 EUR

Lage

address-icon
RothenburgsortHamburg (20539)
Der Anbieter hat die genaue Adresse nicht freigegeben
Umgebung:
- Facettenreicher und lebendiger Stadtteil Rothenburgsort
- Bedeutende Verkehrsachse
- Zentrale Lage zwischen Innenstadt und Hamburger Osten
- Attraktiver und begehrter Ort für Logistik und Industrie

Infrastruktur:
- Nähe zum Hamburger Hafen, einem der größten Umschlagplätze Europas
- Gute Verkehrsanbindung durch Buslinien und U-Bahn, nur 450m zur nächsten Station
- Zahlreiche Unternehmen aus verschiedenen Branchen
- Zentrale Lage und ausgezeichnete Infrastruktur

Nahversorgung:
- Zahlreiche Supermärkte, Drogerien und Apotheken
- Kulinarische Restaurants und Bistros

Weitere Informationen

Stichworte Lagerfläche: 212,00 m², Gesamtfläche: 212,00 m², Bundesland: Hamburg

Weitere Services

Lust auf eine Besichtigung?
Eine Frage zur Immobilie?
Mit einer persönlichen Nachricht hast du bessere Chancen auf eine Antwort.
Mit der Nutzung der oben angegebenen Telefonnummer oder durch Klicken auf „Kontaktieren“ akzeptierst Du die Allgemeinen Nutzungsbedingungen, denen Du jederzeit widersprechen kannst. Weitere Informationen zum Datenschutz

Über den Anbieter

Gertigstr. 6, 22303 Hamburg-Nord
partner badge
Partnerschaft
Herr Christian FlöhlDein Kontakt
Online-ID: 243KTRMKHI8T
Referenznummer: 561_G02
Nebelfeld Immobilien Service GmbH
Bewertung: 4 von 5 Sternen
Mit einer persönlichen Nachricht hast du bessere Chancen auf eine Antwort.
Mit der Nutzung der oben angegebenen Telefonnummer oder durch Klicken auf „Kontaktieren“ akzeptierst Du die Allgemeinen Nutzungsbedingungen, denen Du jederzeit widersprechen kannst. Weitere Informationen zum Datenschutz
Wie zufrieden bist du mit dieser Seite (nicht mit der Immobilie selbst)?