Version: 8.24.0Navigation überspringen
Volksbank pur Immobilien GmbH & Co. KG
785.000 €
17 Zimmer  •  398 m²  •  778 m² Grundstück

Mehrfamilienhaus zum Kauf
785000 €
1.972 €/m²
17 Zimmer  •  398 m²  •  778 m² Grundstück

Solides und gut vermietetes 3-Fam.-Haus mit zusätzlichem EFH und Getränkelager in Halbhöhenlage!

Das Mehrfamilienhaus mit ca. 260 m² Wohnfläche umfasst drei Wohneinheiten, von denen zwei bereits langfristig vermietet sind - eine attraktive Basis für Kapitalanleger mit stabilen Einnahmen. Die dritte Wohnung steht derzeit leer und bietet Potenzial für Eigennutzung oder Neuvermietung. Die gut durchdachten Grundrisse sorgen für eine angenehme Wohnatmosphäre.

Das separate Einfamilienhaus verfügt über eine integrierte Gewerbeeinheit, die ehemals als Getränkehandlung genutzt wurde. Dieses Gebäude steht aktuell leer und bietet zahlreiche Möglichkeiten für individuelle Gestaltung - ob als neues Gewerbeobjekt, zusätzliche Wohnfläche oder Umnutzung für kreative Ideen.

Das gesamte Grundstück umfasst ca. 778 m² Grundstücksfläche.
Die Halbhöhenlage sorgt für eine angenehme Wohnqualität und eine attraktive Aussicht. Einkaufsmöglichkeiten, Schulen und öffentliche Verkehrsmittel sind gut erreichbar, während die Nähe zu Pforzheim und der A8 eine hervorragende Anbindung garantiert.

Diese Immobilie bietet ein vielseitiges Nutzungskonzept mit soliden Mietverhältnissen, Investitionspotenzial und der Möglichkeit, Wohnen und Arbeiten zu kombinieren. Eine seltene Gelegenheit für Kapitalanleger oder Selbstnutzer, die nach Flexibilität und attraktivem Wohnraum suchen.

Merkmale

  • Bezug: nach Vereinbarung
  • vermietet
  • 778 m² Grundstück
  • Kelleranteil
  • 5 Stellplätze: Garage, 4 Außen-Stellplätze
  • Balkon
  • Terrasse
  • Bodenbelag: Fliesen, Laminat, Teppich

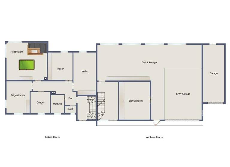
Grundrisse

Grundrisse
1 / 3

Realisiere Dein Projekt

Bausubstanz und Energie

Energieausweis

H
  • Baujahr1968
  • Zustand der Immobilierenovierungsbedürftig / sanierungsbedürftig
  • HeizungsartEtagenheizung
  • EnergieträgerElektro, Öl
MediumRectangleTop

Preisdetails

Kaufpreis
785000 €
1.972,36 €/m²
Provision für Käufer
3,57 % inkl. MwSt.
Käuferprovision inkl. 19 % MwSt.
Weitere Preisinformationen
4 Stellplätze
1 Garagenstellplatz
Geschätzte Gesamtkosten
867.974 €1
Kaufpreis
785.000 €
Notarkosten (1,5%)
11.775 €
Grunderwerbsteuer (5%)
39.250 €
Provision für Käufer (3,57%)
28.024 €
Grundbucheintrag (0,5%)
3.925 €
1Der angezeigte Wert ist eine automatisch berechnete Schätzung von immowelt.
2Bei den Angaben handelt es sich um ortsübliche Werte. Individuelle Kosten können abweichen.

Lage

address-icon
Eisingen (75239)
Der Anbieter hat die genaue Adresse nicht freigegeben
Grüne Halbhöhenwohnlage. Genießen Sie die Vorzüge dieser Lage im gewachsenen Wohngebiet. In wenigen Gehminuten erreichen Sie die Einrichtungen des öffentlichen Lebens.

Weitere Informationen

Sonstiges Angaben und Haftungsvorbehalt: Alle Angaben in diesem Exposé wurden mit großer Sorgfalt zusammengestellt und auf ihre Korrektheit überprüft. Eine Haftung für Irrtümer (z. B. bei Flächen- / Maßangaben) wird dennoch ausgeschlossen. Im Exposé enthaltene Illustrationen und Fotos sind teilweise als Vorschläge, Entwürfe und Muster zu verstehen und nicht als wesentliche Elemente im Sinne der Baubeschreibung. Sie repräsentieren den Planungsstand zum Zeitpunkt der Drucklegung. Grundrissillustrationen können z. B. Sonderausstattungen enthalten. Maßgebend für Erwerber ist die Baubeschreibung sowie die Objektbeschreibung in der Teilungserklärung.

Gender-Hinweis: Die in diesem Exposé, auf unserer Webseite sowie in unseren Social Media-Kanälen gewählte männliche Form bezieht sich stets gleichermaßen auf weibliche, männliche und diverse Personen. Auf geschlechterspezifische Schreibweise und Mehrfachbezeichnungen wird ausschließlich zum Zweck der besseren Lesbarkeit verzichtet. Sämtliche personenbezogene Bezeichnungen in all unseren Publikationen sind somit geschlechtsneutral zu verstehen. Stichworte Anzahl der Schlafzimmer: 12, Anzahl der Badezimmer: 5, Anzahl Balkone: 2, Anzahl Terrassen: 1, Anzahl der Wohneinheiten: 4, Anzahl der Gewerbeeinheiten: 1, 5 Etagen

Weitere Services

Lust auf eine Besichtigung?
Eine Frage zur Immobilie?
Nachricht hinzufügen
Mit der Nutzung der oben angegebenen Telefonnummer oder durch Klicken auf „Kontaktieren“ akzeptierst Du die Allgemeinen Nutzungsbedingungen, denen Du jederzeit widersprechen kannst. Weitere Informationen zum Datenschutz

Über den Anbieter

Karl-Friedrich-Straße 22, 76133 Karlsruhe
partner badge
6 Jahre Partnerschaft
Herr Thomas Hentschel
Herr Thomas HentschelDein Kontakt
Online-ID: 2ndv55p
Referenznummer: 105333
Volksbank pur Immobilien GmbH & Co. KG
title
Volksbank pur Immobilien GmbH & Co. KG
Nachricht hinzufügen
Mit der Nutzung der oben angegebenen Telefonnummer oder durch Klicken auf „Kontaktieren“ akzeptierst Du die Allgemeinen Nutzungsbedingungen, denen Du jederzeit widersprechen kannst. Weitere Informationen zum Datenschutz
MediumRectangleTop
MediumRectangleBottom
MediumRectangleTop
Wie zufrieden bist du mit dieser Seite (nicht mit der Immobilie selbst)?