Version: 8.24.0Navigation überspringen
423.900 €
5 Zimmer  •  141 m²  •  1.000 m² Grundstück
Immowelt logo

Einfamilienhaus zum Kauf • provisionsfrei
423900 €
3.006 €/m²
5 Zimmer  •  141 m²  •  1.000 m² Grundstück

Lebensfreude neu definiert!

Das Familienhaus Jara bietet mit rund 140 m² Wohnraum für die ganze Familie. Es definiert Lebensfreude neu.

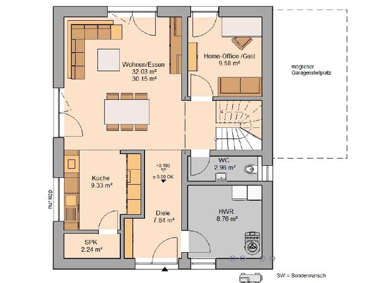
Das Erdgeschoss erstreckt sich über 70 m². Aufgeteilt ist es in einen großen Wohn- und Essbereich mit offener Küche und Speisekammer, ein WC, Diele und ein Home-Office, welches alternativ auch als Gästezimmer genutzt werden kann. Der Hauswirtschaftsraum befindet sich ebenfalls im Erdgeschoss und lässt sich über die Diele betreten.

Eine u-förmige Treppe führt ins Dachgeschoss, welches über drei Schlafzimmer, eine Ankleide und ein großes Familienbad verfügt. Erreichbar sind alle Räume über den Flur. Zu dem Elternschlafzimmer zählt eine ganz persönliche Ankleide.

Das Massivhaus Jara schafft somit ein Refugium, welches jedem Familienmitglied seinen ganz persönlichen Raum ermöglicht.

Dieses Haus wird nach Ihren individuellen Wünschen geplant und ausgestattet!

Merkmale

  • 1.000 m² Grundstück
  • 2 Stellplätze
  • Gäste-WC
  • Badewanne
5 Zimmer, offene Küche, Diele, WC, Flur, Bad, Ankleide, Speisekammer, Hauswirtschaftsraum

Das gezeigte Traumhaus im Überblick:

+ Schlüsselfertiges Massivhaus im Sinne der Ausstattungsbeschreibung "Easy"
+ Inklusive Bodenplatte

Beste Markenausstattung in jedem Kern-Haus:

+ Zimmermannsmäßiger Dachstuhl aus Konstruktionsvollholz
+ Dacheindeckung mit Betondachsteinen von Braas
+ Hochwertiger Kunstharz-Außenputz für eine langlebige Fassade
+ Vollständige Badausstattung von Villeroy & Boch mit Badewanne und flacher Duschwanne
+ Fliesen von Villeroy & Boch in Bad und WC
+ Haustür mit 3-fach-Sicherheitsverriegelung
+ Erstklassige Innentüren der Marke Herholz
+ Fenster mit 3-Scheiben-Wärmeschutzverglasung und Rollläden
+ Stahl-Holz-Treppe mit individueller Farbgestaltungsmöglichkeit
+ Elektroausstattung inklusive Klingelanlage
+ Rauchmelder für Ihre Sicherheit
+ Alle Leistungen aus einer Hand
+ Alle Planungs- und Architektenleistungen
+ Einsatz regionaler Handwerksbetriebe
+ Individuelle Anpassung auf Ihre Bedürfnisse
+ Auf Wunsch mit Keller erhältlich
+ Auf Wunsch mit weiteren Energietechniken erhältlich

Grundrisse

Grundrisse
1 / 2

Realisiere Dein Projekt

Bausubstanz und Energie

Energieausweis

Der Anbieter hat keine Daten zum Energieausweis hinterlegt.
  • Baujahr2026
  • Zustand der ImmobilieNeubau, Projektiert
  • HeizungsartZentralheizung: Fußbodenheizung
Immowelt logo

Preisdetails

Kaufpreis
423900 €
3.006,38 €/m²
Provision für Käufer
provisionsfrei
Geschätzte Gesamtkosten
453.574 €1
Kaufpreis
423.900 €
Notarkosten (1,5%)
6.359 €
Grunderwerbsteuer (5%)
21.195 €
Grundbucheintrag (0,5%)
2.120 €
1Der angezeigte Wert ist eine automatisch berechnete Schätzung von immowelt.
2Bei den Angaben handelt es sich um ortsübliche Werte. Individuelle Kosten können abweichen.

Lage

address-icon
EllebenUelleben (99876)
Der Anbieter hat die genaue Adresse nicht freigegeben
In bester Ortsrandlage und super für entspanntes und ruhiges Leben.

Weitere Informationen

Sonstiges Kern-Haus

Kern-Haus baut individuelle und massive Architektenhäuser zu einem attraktiven Preis-Leistungs-Verhältnis - und das bereits mit einer Erfahrung seit 1980.

Maximale Sicherheit bei Kern-Haus:
+ 10 Jahre Gewährleistung auf die wesentlichen Bauleistungen
+ Bis zu 24 Monate Festpreisbindung
+ 50 Jahre Gewährleistung auf das DuoTherm-Mauerwerk
+ Verbindliche Bauzeit
+ Zahlung nach Baufortschritt

Preise und Auszeichnungen von Kern-Haus:
- German Brand Award in den Jahren 2018 und 2021
- Hausbau Design Award: Sieger in den Jahren 2017, 2018, 2019, 2020, 2021, 2022 und 2023
- Deutscher Traumhauspreis: Sieger in den Jahren 2014, 2015, 2016 und 2018 und Silber 2017, 2020 und 2021
- Mittelstandspreis "Top 100" in den Jahren 2014, 2016, 2018, 2020 und 2022
- German Design Award im Jahr 2018

Weitere Informationen

Der gezeigte Preis versteht sich inklusive Grundstück und exklusive der Baunebenkosten.

Ihre Ansprechpartnerin Katrin Klein vom Kern-Haus-Team in Erfurt freut sich darauf Ihre Fragen zu beantworten. Jetzt anrufen: 0361 / 551450

Kern-Haus in Erfurt - https://www.kern-haus.de/erfurt/

Weitere Architektenhäuser - https://www.kern-haus.de/haeuser Stichworte Stellplatz vorhanden, Anzahl der Schlafzimmer: 3, Anzahl der separaten WCs: 1

Weitere Services

Lust auf eine Besichtigung?
Eine Frage zur Immobilie?
Nachricht hinzufügen
Mit der Nutzung der oben angegebenen Telefonnummer oder durch Klicken auf „Kontaktieren“ akzeptierst Du die Allgemeinen Nutzungsbedingungen, denen Du jederzeit widersprechen kannst. Weitere Informationen zum Datenschutz

Über den Anbieter

Kern-Haus AG, Niederlassung Erfurt
Gustav-Freytag-Straße 12, 99096 Erfurt
partner badge
Partnerschaft
Online-ID: 2klbb5g
Referenznummer: KEF 73077
Kern-Haus AG, Niederlassung Erfurt
Kern-Haus AG, Niederlassung Erfurt
Nachricht hinzufügen
Mit der Nutzung der oben angegebenen Telefonnummer oder durch Klicken auf „Kontaktieren“ akzeptierst Du die Allgemeinen Nutzungsbedingungen, denen Du jederzeit widersprechen kannst. Weitere Informationen zum Datenschutz
Wie zufrieden bist du mit dieser Seite (nicht mit der Immobilie selbst)?