Version: 8.24.0Navigation überspringen
4.800 €
600 m² Bürofläche
Immowelt logo

Bürofläche zur Miete • provisionsfrei
4.800 €
600 m² Bürofläche

Großzügige Gewerbefläche mit guter Anbindung: Büroflächen auf zwei Etagen in Nadorst!

Sie suchen eine geräumige Bürofläche für Ihr wachsendes Team? Dann haben wir genau das richtige Mietangebot für Sie!

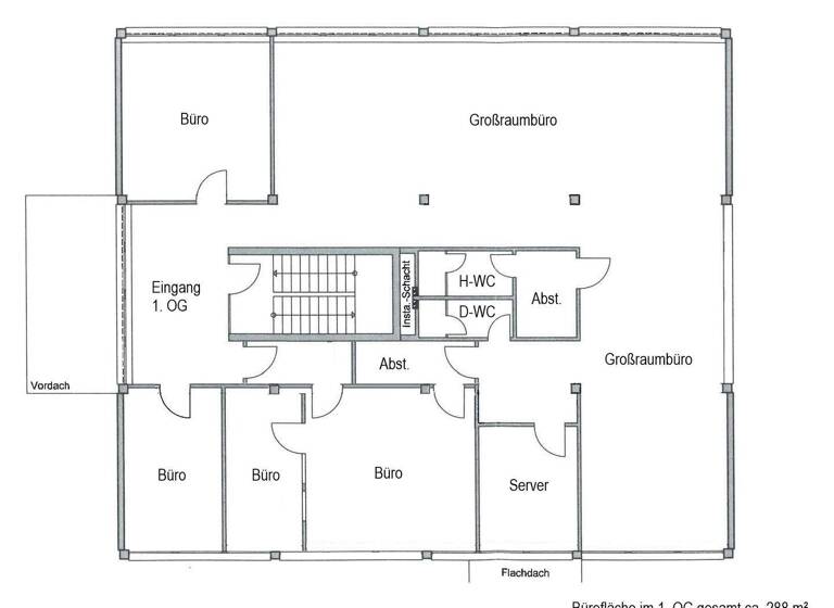
Die zur Vermietung stehende Bürofläche befindet sich im 1. und 2. Obergeschoss und umfasst insgesamt ca. 600 m² Nutzfläche. Davon entfallen jeweils ca. 288 m² auf das 1. Obergeschoss sowie ca. 312 m² das 2. Ober- bzw. Dachgeschoss.

Die Gesamtfläche ist derzeit in fünf abgeschlossene Büro-, Schulungs- oder Personalräume mit Größen zwischen ca. 17 m² und 26 m² unterteilt. Ergänzt wird das Angebot durch ein Großraumbüro mit ca. 148 m² im 1. Obergeschoss sowie zwei weitere, offene Räume im Dachgeschoss mit ca. 42 m² und ca. 188 m². Sämtliche Räume sind mit dunkelgrauem oder dunkelblauem Teppichboden ausgestattet. Die vorhandenen Plissees und Jalousien können vom aktuellen Mieter übernommen werden.

Auf beiden Etagen stehen separate Damen- und Herren-WCs zur Verfügung. Die Sanitäranlagen im 2. Obergeschoss wurden vor ein paar Jahren modernisiert und sind mit neutralen weißen Fliesen versehen. Im 1. Obergeschoss befinden sich Sanitärbereiche mit baujahrestypischer Ausstattung, deren Sanitärobjekte vor Mietbeginn durch den Vermieter noch erneuert werden.

Im Erdgeschoss befinden sich der gemeinsame Eingangsbereich sowie eine großzügige Teeküche, die mit dem Nutzer der Erdgeschossfläche geteilt werden.

Zwei Kopier- oder Archivräume und ein Serverraum im 1. Obergeschoss runden das Raumangebot ab.

Die Räumlichkeiten können nach Absprache entsprechend den Ansprüchen des neuen Mieters ausgestattet werden.

Die Höhe der Miete richtet sich nach der Größe und dem gewählten Ausstattungsstandard. Grundsätzlich beträgt die Mietvorstellung: 8,00 € netto/m² und liegt somit bei 4.800,00 € zzgl. MwSt. im Monat bei Anmietung der gesamten Gewerbefläche.

Die anfallenden Nebenkosten verstehen sich inklusive Gas- und Wasserkosten und betragen derzeit 2,00 €/m² und sind als Pauschale fällig. Die Heizungsanlage wurde 2016 erneuert und die Fenster überwiegend im Jahr 2006 ausgetauscht.

Ausreichend PKW-Stellplätze stehen direkt neben dem Gebäude zur Verfügung. Eine genaue Anzahl erfolgt in Absprache mit dem Vermieter.

Merkmale

  • frei ab sofort
  • 1. Geschoss
  • 8 Sitzplätze
Ausstattungsmerkmale sind u. a.:

- Baujahr 1973, Aufstockung des 2. OG im Jahr 1997
- vermietbare Gesamtfläche von ca. 600 m² verteilt auf das 1. und 2. Ober- bzw. Dachgeschoss
- insgesamt 5 abgeschlossene Räume für Büros oder Personal, 3 Großraumbüros oder Konferenzräume mit ca. 42 m², 148 m² und 188 m², 1 Teeküche im Erdgeschoss zur gemeinsamen Nutzung, 1 Serverraum im 1. OG, 2 Lager- bzw. Abstellräume und auf jeder Etage jeweils WC-Anlagen für Damen sowie Herren
- je Etage 5 feste PKW-Stellplätze auf dem Grundstück vorhanden (nach Absprache weitere möglich)
- derzeitige Nutzung des Gebäudes als Call-Center
- individuelle Gestaltungsmöglichkeiten
- hoher Lichteinfall durch zahlreiche Fenster
- Kunststofffenster mit Isolierverglasung (überwiegend von 2006)
- Gasheizung aus dem Jahr 2016
- hochwertiges Datennetz
...und vieles mehr!

Grundrisse

Grundrisse
1 / 2

Realisiere Dein Projekt

Bausubstanz und Energie

Der Anbieter hat keine Informationen zum Energieverbrauch bereit gestellt.
  • Baujahr1973
  • Zustand der ImmobilieGepflegt
  • HeizungsartZentralheizung
  • EnergieträgerGas
Immowelt logo

Mietkosten

Warmmiete
6.000 €
Nettomiete
4.800 €
Nebenkosten
1.200 €
Heizkosten
in Warmmiete enthalten
Provision für Mieter
provisionsfrei
Kaution
9.600,00 2 Monatskaltmieten

Lage

address-icon
NadorstOldenburg (26127)
Der Anbieter hat die genaue Adresse nicht freigegeben
Dieses Gewerbeobjekt befindet sich in attraktiver aber dennoch ruhiger Lage im nördlich gelegenen Stadtteil Nadorst. Das Umfeld ist durch eine Mischung aus Wohn- und Gewerbenutzungen geprägt und bietet eine gute Infrastruktur.

Die Autobahnanbindung der A28 sowie der A29 sind in nur 600 m Entfernung über die Nadorster Straße schnell erreichbar. Auch die Entfernung zum Stadtmittelpunkt beträgt nur ca. 3 km. Sämtliche Einkaufsmöglichkeiten, Ärzte, Apotheken, Banken und Schulen sind bequem mit dem Fahrrad oder Auto zu erreichen. Eine Bushaltestelle ist ebenfalls in wenigen Fußminuten erreichbar und wird von den Linien 304, 324 und 340 angefahren. Die Entfernung zum Bahnhof beträgt ca. 3,6 km.

Die Universitätsstadt Oldenburg ist das wirtschaftliche, administrative und kulturelle Zentrum der Weser-Ems-Region. Für diese Region von der Größe des Bundeslandes Schleswig-Holstein verfügt die Stadt Oldenburg mit ihren rund 178.000 Einwohnern über alle zentralen Dienstleistungen und eine hochwertige, zukunftsorientierte Infrastruktur.

Dieses spiegelt sich auch in der dynamischen Entwicklung der Einwohnerzahl in den vergangenen Jahren wider. Für Oldenburg wird auch weiterhin eine positive Entwicklung der Bevölkerungszahl prognostiziert. Kulturelle Einrichtungen wie zum Beispiel das Staatstheater, zahlreiche weitere Theater und Bühnen sowie verschiedene Museen aber auch die in Oldenburg beheimateten Sportvereine bieten ein vielfältiges Freizeitangebot.

Weitere Informationen

Sonstiges Diese Gewerbeflächen können ab dem 01. Dezember 2025 angemietet werden.

Die monatliche Kaltmiete für diese Flächen liegt bei netto 8,00 €/m² zuzüglich einer Nebenkostenpauschale in Höhe von netto 2,00 €/m². Daraus ergibt sich eine monatliche Gesamtmiete von insgesamt 10,00 €/m² zzgl. MwSt. Bei der Anmietung der Gesamtfläche von ca. 600 m² wird somit eine Gesamtmiete von 6.000,00 € zzgl. MwSt. fällig.

Die Nebenkosten verstehen sich zzgl. Strom-, Telefon- und Internetkosten.

Für den Mieter wird eine Kaution in Höhe von 2 Kaltmieten fällig.

Der Vermieter der Gewerbefläche hat uns mit der Vermittlung oder dem Nachweis eines Mieters beauftragt. Für den Mieter erfolgt die Vermittlung provisionsfrei.

Gewünschte Besichtigungstermine vereinbaren wir aus organisatorischen Gründen nur telefonisch.

Weitere Unterlagen und Pläne können gerne nach Angaben aller Kontaktdaten übermittelt werden.

Die Angaben des Angebotes werden uns von Eigentümern oder Dritten geliefert. Trotz der von uns aufgewandten Sorgfalt können wir für die Richtigkeit und Vollständigkeit des Angebotes keine Haftung übernehmen. Stichworte Gesamtfläche: 600,00 m², Distanz zum Kindergarten: 1.00, Distanz zur Grundschule: 0.90, Distanz zur nächsten Einkaufsmöglichkeit: 1.00, Distanz zur Autobahn: 0.60, Distanz vom Zentrum: 3.00

Weitere Services

Lust auf eine Besichtigung?
Eine Frage zur Immobilie?
Nachricht hinzufügen
Mit der Nutzung der oben angegebenen Telefonnummer oder durch Klicken auf „Kontaktieren“ akzeptierst Du die Allgemeinen Nutzungsbedingungen, denen Du jederzeit widersprechen kannst. Weitere Informationen zum Datenschutz

Über den Anbieter

Kreyenstraße 41, 26127 Oldenburg
partner badge
6 Jahre Partnerschaft
Frau Jessica ZeiterDein Kontakt
Online-ID: 2l7tg5w
Referenznummer: A3276
van Döllen Immobilien GmbH
van Döllen Immobilien GmbH
Nachricht hinzufügen
Mit der Nutzung der oben angegebenen Telefonnummer oder durch Klicken auf „Kontaktieren“ akzeptierst Du die Allgemeinen Nutzungsbedingungen, denen Du jederzeit widersprechen kannst. Weitere Informationen zum Datenschutz
Wie zufrieden bist du mit dieser Seite (nicht mit der Immobilie selbst)?