Version: 8.24.0Navigation ĂĽberspringen
525.000 €
199 m²  â€˘  520 m² GrundstĂĽck
Immowelt logo

Haus zum Kauf • provisionsfrei
525000 €
2.638 €/m²
199 m²  â€˘  520 m² GrundstĂĽck

Rendite & Wohnkomfort: Mehrfamilienhaus „Garda“

Objektbeschreibung BAU- UND LEISTUNGSBESCHREIBUNG

ERDARBEITEN UND BODENPLATTE

• Ausführung sämtlicher Erdarbeiten gemäß Baugrundgutachten

• Hochwertige, wärmegedämmte Bodenplatte für optimalen Schutz vor Feuchtigkeit und Wärmeverlusten

MASSIVES MAUERWERK

• Massivbauweise in Ziegel (Stein auf Stein)

• Mauerstärke bis zu 42 cm für hervorragenden Schall-, Wärme- und Brandschutz

• Energetisch und baubiologisch besonders wertvoll

DACHKONSTRUKTION

• Zimmermannsmäßiger Pfettendachstuhl

• Mit Einbretterung und langlebiger Dacheindeckung aus Dachsteinen

• Stabile, klassische Ausführung mit hoher Lebensdauer

FENSTER UND FENSTERBÄNKE

• Premium-Kunststofffenster mit 3-fach-Verglasung und „warmer Kante“ zur Minimierung von Wärmeverlusten

• Energiesparend und schallisolierend

• Innenfensterbänke aus hochwertigem Steinmaterial

ELEKTROINSTALLATION

• Komfortable Elektroausstattung im gesamten Haus inklusive

• Durchdachte Platzierung von Steckdosen, Lichtschaltern und Anschlüssen

HEIZUNG UND ENERGIEEFFIZIENZ

• Moderne Wärmepumpe für nachhaltige und kosteneffiziente Beheizung

• Hervorragende Wärmedämmung für niedrige Heizkosten

• Filigrandecken auch im Obergeschoss für verbesserten Wärme- und Schallschutz

INNEN- UND AUĂźENPUTZ

• Hochwertige Markenputze für Innen- und Außenflächen

• Langlebig, pflegeleicht und optisch ansprechend

SANITÄRINSTALLATION – KOMPLETT INKLUSIVE

• Komplette Sanitärrohinstallation im gesamten Gebäude

• Enthalten: Dusche, WC, Waschtisch und Badewanne

• Alle Anschlussleitungen für Kalt- und Warmwasser, Abwasser sowie Zu- und Abläufe inklusive

• Hochwertige Ausstattung mit Markenprodukten führender Hersteller

• Zeitgemäße Badgestaltung mit Fokus auf Funktionalität und Design

INNENAUSSTATTUNG

• Hochwertige CPL-Innentüren in verschiedenen Dekoren wählbar

• Zeitlose, robuste Türlösungen für langanhaltende Qualität

PLANUNG UND BAUKONTROLLE

• Inklusive individueller Architekten- und Planungsleistungen

• Architektenhäuser realisierbar – Ihre Wünsche und Ideen stehen im Mittelpunkt

• Regelmäßige Baukontrollen durch unabhängigen TÜV-Baugutachter

SICHERHEIT UND GARANTIEN

• Bauzeitgarantie für maximale Planungssicherheit

• Inklusive Bauherrenhaftpflicht- und Bauleistungsversicherung

• Baugewährleistungsversicherung über 100.000 €

• 5 Jahre gesetzliche Gewährleistung gemäß BGB

FAZIT

Dieses Haus bietet Ihnen nicht nur ein Zuhause, sondern ein solides, zukunftssicheres und durchdachtes Baukonzept. Mit vollständiger Sanitärausstattung, energieeffizienter Haustechnik, massiver Bauweise und umfassendem Versicherungsschutz steht Ihrem sorgenfreien Start in die eigenen vier Wände nichts im Weg. Raumaufteilung Dreifamilienhaus mit drei Wohneinheiten

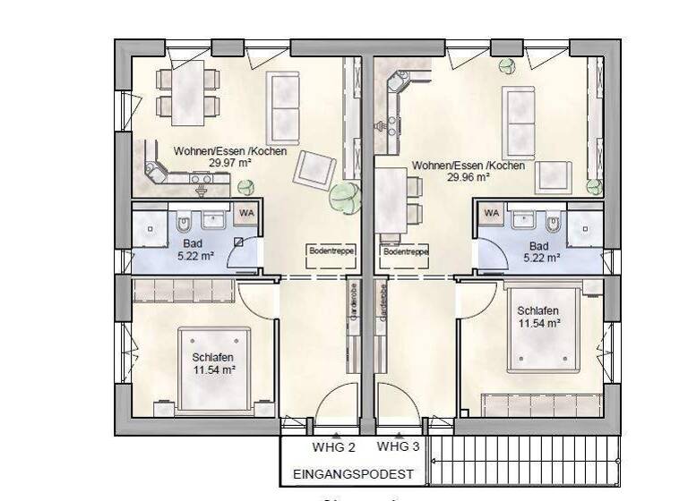
Dieses Dreifamilienhaus erstreckt sich über ca. 199 m² Wohnfläche und bietet drei eigenständige Wohneinheiten. Damit eignet es sich ideal als Mehrgenerationenhaus, als attraktive Kapitalanlage oder für Familien, die zusätzlichen Platz flexibel nutzen möchten.

Im Erdgeschoss befindet sich die großzügige Hauptwohnung. Herzstück ist der offene, helle Küchen- und Wohn-Essbereich, der durch seine freundliche Atmosphäre zum Verweilen einlädt. Zwei weitere Zimmer sowie ein geräumiges Schlafzimmer bieten ausreichend Platz für Familie, Gäste oder individuelle Nutzungsmöglichkeiten. Das großzügige Badezimmer ist mit Badewanne und Dusche ausgestattet und schafft eine angenehme Wohlfühlatmosphäre für den Start in den Tag oder einen entspannten Ausklang.

Oberhalb des Erdgeschosses befinden sich zwei separate Wohneinheiten, die jeweils mit einer großzügigen Küche, einem Wohn- und Essbereich sowie einem eigenständigen Schlafzimmer ausgestattet sind. Jede Einheit verfügt über ein eigenes Badezimmer, wodurch flexible Nutzungsmöglichkeiten entstehen – sei es zur Vermietung, für erwachsene Kinder oder als Homeoffice.

Die durchdachte Aufteilung, kombiniert mit hellen, offenen Räumen, verbindet Privatsphäre und Gemeinschaft harmonisch. Das Haus überzeugt durch seine lichtdurchflutete Architektur, vielseitige Nutzungsmöglichkeiten und ein attraktives Gesamtbild. Ob Selbstnutzung mit Vermietungsteil oder stilvolle Mehrgenerationenlösung – diese Immobilie bietet langfristig Qualität, Funktionalität und Komfort.

Merkmale

  • 520 m² GrundstĂĽck
  • 2 Stellplätze: AuĂźen-Stellplatz
  • Gäste-WC
  • Badezimmer: Badewanne, Bad mit Dusche, Bad mit Fenster
  • Bodenbelag: Fliesen, Parkett

Grundrisse

Grundrisse
1 / 2

Realisiere Dein Projekt

Bausubstanz und Energie

Der Anbieter hat keine Informationen zum Energieverbrauch bereit gestellt.
  • Zustand der ImmobilieNeubau, Massivhaus, Projektiert
  • HaustypKfW 55
  • HeizungsartFuĂźbodenheizung
  • EnergieträgerElektro, Luft-/Wasser-Wärmepumpe
Immowelt logo

Preisdetails

Kaufpreis
525000 €
2.638,19 €/m²
Provision für Käufer
provisionsfrei
Geschätzte Gesamtkosten
553.875 €1
Kaufpreis
525.000 €
Notarkosten (1,5%)
7.875 €
Grunderwerbsteuer (3,5%)
18.375 €
Grundbucheintrag (0,5%)
2.625 €
1Der angezeigte Wert ist eine automatisch berechnete Schätzung von immowelt.
2Bei den Angaben handelt es sich um ortsübliche Werte. Individuelle Kosten können abweichen.

Lage

address-icon
Auerbach (94530)
Der Anbieter hat die genaue Adresse nicht freigegeben
In diesem Angebot ist kein GrundstĂĽck enthalten.

Wir erstellen das Haus gerne auf Ihrem eigenen Bauland oder unterstĂĽtzen Sie kompetent bei der Suche nach einem passenden GrundstĂĽck fĂĽr Ihr Bauvorhaben.

Weitere Informationen

Besichtigungstermine Ihr Zuhause – so individuell wie Sie.

In unserem Repertoire finden Sie eine beeindruckende Vielfalt an Grundrissen, Stilrichtungen, Größen und Ausbaustufen.
Ob klassisch, modern oder extravagant – jedes Haus wird flexibel geplant und individuell auf Ihre Wünsche abgestimmt.

Sie möchten durch Eigenleistung sparen?
Oder lieber schlĂĽsselfertig einziehen, ohne sich um irgendetwas kĂĽmmern zu mĂĽssen?
Wir bauen, wie Sie leben.
Gerne senden wir Ihnen auf Wunsch detaillierte Informationen und individuelle Grundrissbeispiele zu.

Weitere Services

Lust auf eine Besichtigung?
Eine Frage zur Immobilie?
Nachricht hinzufĂĽgen
Mit der Nutzung der oben angegebenen Telefonnummer oder durch Klicken auf „Kontaktieren“ akzeptierst Du die Allgemeinen Nutzungsbedingungen, denen Du jederzeit widersprechen kannst. Weitere Informationen zum Datenschutz

Ăśber den Anbieter

Mariakirchener StraĂźe 16, 94424 Arnstorf
partner badge
Partnerschaft
Herr Mark Pieslinger
Herr Mark PieslingerDein Kontakt
Online-ID: 2m85f5w
P & P Massivhaus GmbH
title
P & P Massivhaus GmbH
Nachricht hinzufĂĽgen
Mit der Nutzung der oben angegebenen Telefonnummer oder durch Klicken auf „Kontaktieren“ akzeptierst Du die Allgemeinen Nutzungsbedingungen, denen Du jederzeit widersprechen kannst. Weitere Informationen zum Datenschutz
Wie zufrieden bist du mit dieser Seite (nicht mit der Immobilie selbst)?