Version: 8.22.4Navigation überspringen
15 €
3 Zimmer  •  104,8 m² Bürofläche
Immowelt logo

Büro zur Miete • provisionsfrei
15 Euro pro Quadratmeter
3 Zimmer  •  104,8 m² Bürofläche

Provisionsfrei! Altbaubüro mit ruhigem Balkon und attraktivem Altbaugebäude

Attraktives Altbaubüro in der Staudgasse I Balkon in den ruhigen Innenhof

Das in der Staudgasse um 1900 erbaute attraktive Altbaugebäude steht im südlichen Teil des 18. Bezirks in Wien Währing.
Das 3-Raumbüro bietet Ihnen den dafür typischen Charakter mit ihren 3,25 Meter hohen Räumen und ihrer großzügigen Aufteilung. Der klassische, im Altwienstil verlegte Fischgrätparkett und die Flügeltüren ergeben ein stimmiges Bild.
Das Büro mit ca. 105qm liegt im 1. Stock, ein hofseitiger Balkon ergänzt den Arbeitskomfort.

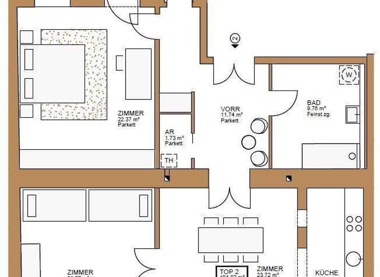
Die Raumaufteilung:
Großzügiges Vorzimmer
3 Zimmer
Badezimmer
2 Toiletten
Küche
Abstellraum
Balkon

Miete inkl. BK derzeit EUR 1.920,14 zzgl. 20 % USt. 

Besonders hervorzuheben ist die Generalsanierung des Hauses mit Dachbodenausbau, Errichtung eines Liftes, sowie die Erneuerung der Versorgungsleitungen.

Resümee
Das Preis- Leistungsverhältnis ist absolut stimmig und ist von fachlicher Seite sehr empfehlenswert!

Energieausweis: HWB 125

 

 

Wir weisen darauf hin, dass zwischen dem Vermittler und dem zu vermittelnden Dritten ein familiäres oder wirtschaftliches Naheverhältnis besteht.

Der Vermittler ist als Doppelmakler tätig.

Merkmale

  • frei ab 01.03.2026
  • 1. Geschoss
  • offene Küche
  • Gäste-WC
  • Balkon
  • Bodenbelag: Fliesen, Parkett

Grundrisse

Grundrisse
1 / 1

Realisiere Dein Projekt

Bausubstanz und Energie

Heizwärmebedarf (HWB)

D

Gesamtenergieeffizienz (fGEE)

D
  • Baujahr1900
  • Zustand der ImmobilieAltbau (bis 1945), Massivhaus, Gepflegt
  • HeizungsartEtagenheizung
  • EnergieträgerGas
Immowelt logo

Mietkosten

Nettokaltmiete
15 €/m²
1.572,30 €
Betriebskosten
308,87 €
Provision für Mieter
provisionsfrei; Provision bezahlt der Abgeber.
Kaution
3 Bruttomonatsmieten
Weitere Preisinformationen
Nettokaltmiete: 1.572,30 EUR

Lage

address-icon
Wien,Währing (1180)
Der Anbieter hat die genaue Adresse nicht freigegeben
Durch die gute Lage in der Staudgasse finden Sie Geschäfte, Schulen, Parkanlagen und öffentliche Verkehrsmittel in unmittelbarer Nähe.
Die U6 Michelbeuern-AKH, die Straßenbahn 9 und 42 und sämtliche Nahversoger des täglichen Bedarfs sind zu Fuß erreichbar.

Weitere Informationen

Stichworte Nord-West-Balkon/Terrasse, Fahrradraum, Nutzfläche: 108,42 m², Anzahl der Badezimmer: 1, Anzahl der separaten WCs: 2, Anzahl Balkone: 1, Balkon-Terrassen-Fläche: 3,60 m², Bundesland: Wien, Wohnungsnr.: 2

Weitere Services

Lust auf eine Besichtigung?
Eine Frage zur Immobilie?
Nachricht hinzufügen
Mit der Nutzung der oben angegebenen Telefonnummer oder durch Klicken auf „Kontaktieren“ akzeptierst Du die Allgemeinen Nutzungsbedingungen, denen Du jederzeit widersprechen kannst. Weitere Informationen zum Datenschutz

Über den Anbieter

Mariahilfer Straße 167/12, 1150 WIEN
Frau Irene LindenbergerDein Kontakt
Online-ID: 2n8fj56
Referenznummer: OBGC202601200807310860d67211460
LIND Immobilien GmbH
LIND Immobilien GmbH
Bewertung: 4,8 von 5 Sternen
Nachricht hinzufügen
Mit der Nutzung der oben angegebenen Telefonnummer oder durch Klicken auf „Kontaktieren“ akzeptierst Du die Allgemeinen Nutzungsbedingungen, denen Du jederzeit widersprechen kannst. Weitere Informationen zum Datenschutz
Wie zufrieden bist du mit dieser Seite (nicht mit der Immobilie selbst)?