Version: 8.24.0Navigation überspringen
269.000 €
5.433 m² Grundstück
Immowelt logo

Grundstück zum Kauf
269000 €
49,51 €/m²
5.433 m² Grundstück

Kreta, Agios Nikolaos: Grundstück mit Meerblick zu verkaufen

Grundstück von 5.433 m² in der Nähe des kosmopolitischen Touristenortes Agios Nikolaos, 170-180 Meter über dem Meeresspiegel, mit Fernblick auf die Stadt, das Meer des Mirabello-Golfs und die Berge.

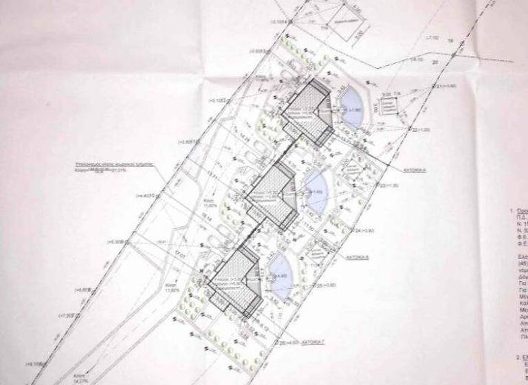
Der größte Teil des Grundstücks (4.043 m²) ist bebaubar und es liegen bereits Baupläne für den Bau einer Reihe von 3 Villen vor, jede mit einem Erdgeschoss von 66 m², einem Kellerbereich von 61 m², einem Swimmingpool von 33 m², Garten und Parkplätzen.

Das Grundstück wird über eine Zufahrtsstraße verfügen und Strom-, Wasser- und Telefonanschlüsse sowie Breitbandinternet befinden sich in unmittelbarer Nähe.

Das Zentrum der Stadt Agios Nikolaos sowie die nächstgelegenen Sandstrände sind nur etwa 5 Kilometer von diesem Grundstück entfernt.

Agios Nikolaos ist die Hauptstadt des Bezirks Lasithi und liegt an der Mirabello-Bucht im Nordosten Kretas.

Geografisch ist die Stadt gut vor starken Winden geschützt, sodass man fast das ganze Jahr über Wassersport treiben und schwimmen kann.

Obwohl Agios Nikolaos weniger als 20.000 Einwohner hat, verfügt es über mehrere Banken, Supermärkte, Geschäfte aller Art, Ärzte, ein modernes Krankenhaus mit hohem Standard, ein öffentliches Schwimmbad und Tennisplätze, einen Yachthafen, einen Hafen, ein Kino, ein Theater, Fitnessstudios, einen 9-Loch-Golfplatz, Schulen von Kindergärten bis hin zu sechsstufigen Gymnasien und generell alle Annehmlichkeiten, die man in einer modernen europäischen Stadt erwarten würde.

Das Mikroklima zählt zu den besten in Griechenland, und die Temperaturen steigen im Sommer selten über 30 °C und fallen im Winter selten unter 15 °C. Dieses wunderbare, trockene Klima und die natürliche Schönheit der Gegend haben die meisten der renommiertesten Hotels Griechenlands hierher gelockt.

Merkmale

  • 5.433 m² Grundstück
  • Meerblick

Grundrisse

Grundrisse
1 / 4

Realisiere Dein Projekt

Bausubstanz und Energie

Der Anbieter hat keine Informationen zu Energieverbrauch oder Zustand der Immobilie bereit gestellt.
Immowelt logo

Preisdetails

Kaufpreis
269000 €
49,51 €/m²
Provision für Käufer
2,48 % (inklusive MwSt.) vom Verkaufspreis

Lage

address-icon
KretaAgios Nikolaos (721 00)
?? Agios Nikolaos - Kosmopolitisches Flair am Mirabello-Golf (PLZ 721 00)
Agios Nikolaos ist eine der elegantesten und bekanntesten Städte Kretas. Berühmt für den "bodenlosen" Voulismeni-See im Stadtzentrum, der durch einen Kanal mit dem Meer verbunden ist, versprüht die Stadt einen unvergleichlichen mediterranen Charme. Sie vereint das lebhafte Flair einer modernen Hafenstadt mit der Entspannung eines erstklassigen Ferienortes und gilt als das touristische Aushängeschild Ostkretas.

?? Lage, Geografie & Erreichbarkeit
Die Stadt liegt malerisch am nordwestlichen Ufer des Golfs von Mirabello. Die Topografie ist durch sanfte Hügel geprägt, die der Stadt ihre charakteristischen Treppengassen und zahlreichen Aussichtspunkte verleihen. Die Erreichbarkeit ist exzellent: Als Endpunkt eines gut ausgebauten Teilstücks der Nationalstraße ist die Stadt schnell von Zentralkreta aus erreichbar und dient gleichzeitig als Tor zu den Luxusresorts von Elounda und dem wilden Osten der Insel.

?? Entfernungen & Verkehr
See Voulismeni (Zentrum): 0 km | Direktlage
Flughafen Kastelli (neu): 60 km | 1 Std.
Nächster Badestrand (Kitroplatia Beach): 0,2 km | 1 Min. (direkt im Zentrum)
Elounda (Luxus-Resort): 10 km | 15 Min.
Ierapetra (Südküste): 36 km | 40 Min.
?? Lifestyle, Gastronomie & Lebensqualität
Die Lebensqualität in Agios Nikolaos ist außergewöhnlich hoch. Die Stadt bietet eine perfekte Mischung aus urbaner Infrastruktur und Urlaubsfeeling. Rund um den See und den Hafen finden sich zahlreiche Cafés, erstklassige Restaurants und schicke Bars. Die Stadt verfügt über ausgezeichnete medizinische Einrichtungen (Krankenhaus), Schulen und ein breites kulturelles Angebot. Mehrere "Blue Flag" Strände sind direkt vom Stadtzentrum aus fußläufig erreichbar, was den Alltag hier besonders lebenswert macht.

?? Immobilienmarkt & Standortpotenzial
Agios Nikolaos ist ein Blue-Chip-Standort auf dem kretischen Immobilienmarkt.

Internationale Nachfrage: Die Stadt ist seit Jahrzehnten ein Magnet für Käufer aus ganz Europa, was für eine hohe Liquidität und Wertstabilität sorgt.

Luxus-Segment: Besonders begehrt sind Immobilien mit Blick auf den Golf von Mirabello oder Stadthäuser in Seenähe.

Ganzjahres-Potenzial: Da Agios Nikolaos eine lebendige Stadt ist, die auch im Winter nicht "schläft", sind Immobilien hier sowohl für die touristische Vermietung als auch als dauerhafter Wohnsitz ideal.

https://www.youtube.com/watch?v=vfJN72tNAnU&t=1s
Agios Nikolaos - Lasithi - Kreta - von oben - 4K Drohenvideo

Weitere Informationen

Sonstiges Wir sind deutsche Immobilienmakler und haben uns spezialisiert auf Immobilien aus Kreta. Neben der Suche nach geeigneten Immobilien auf Kreta für Sie, gehört auch das Organisieren von Besichtigungsterminen auf Kreta zu unserem Portfolio.
Zu jeder Phase Ihres Immobilienerwerbs auf Kreta stehen wir Ihnen zur Seite und begleiten Sie vom ersten Gespräch bis über den Notarvertrag hinaus.

Uns sind Ihre Vorstellungen wichtig, wie zum Beispiel die Lage auf Kreta in Verbindung mit Meerblick, Strandnähe, Sandstrand, Steinhaus oder Swimmingpool. Zusätzlich gibt es wichtige Punkte zu beachten wie die Maße der Zimmer einer Immobilie. In Griechenland und somit auch auf Kreta werden die Wände miteingerechnet, also Außenwand zur Außenwand. Im Gegensatz zu deutschen Immobilien, hier wird von Innenwand zur Innenwand gemessen.

Wir empfehlen Ihnen unbedingt bei der Besichtigung auf Kreta die angegebene Wohnfläche zu überprüfen, da diese stark von deutschen Angaben abweichen kann (Berechnungs-, Wohnflächenverordnung, DIN-Normen) und Nutzflächen eventuell miteingerechnet wurden (Keller, Technikraum, Balkon, Terrasse etc.).
Bitte beachten Sie auch bei Standortangaben zu Immobilienangeboten auf Kreta, dass dies ungefähre Werte sind.
Der griechische Energieausweis (falls erforderlich) liegt bei der Besichtigung vor.

Zum angegebenen Kaufpreis kommen noch Nebenkosten wie Provision, Grunderwerbsteuer, Notargebühren und Anwaltskosten hinzu. Genaueres finden Sie auf unserer Homepage bei INFOS.

Alle über unser Portal angebotenen Immobilien aus Kreta wurden sorgfältig geprüft und übersetzt. Dennoch können sich Fehler einschleichen, so dass wir keine Gewähr auf Richtigkeit der Angaben übernehmen.

Für alle Fragen rund um das Thema - Kauf einer Immobilie oder Grundstück auf Kreta - stehen wir Ihnen gerne zur Verfügung und können weitere Details im Gespräch klären.

Es gelten unsere AGB, die Sie auf unserer Homepage bei AGB und Widerrufsrecht finden. Stichworte Bundesland: Lasithi

Weitere Services

Lust auf eine Besichtigung?
Eine Frage zur Immobilie?
Nachricht hinzufügen
Mit der Nutzung der oben angegebenen Telefonnummer oder durch Klicken auf „Kontaktieren“ akzeptierst Du die Allgemeinen Nutzungsbedingungen, denen Du jederzeit widersprechen kannst. Weitere Informationen zum Datenschutz

Über den Anbieter

Kokkino Chorio 1, 730 08 Kokkino Chorio
partner badge
Partnerschaft
Herr Oskar Josef SchmidbauerDein Kontakt
Online-ID: 2n9545a
Referenznummer: S-PLAG45h
Schmidbauer Immobilien Kreta
Schmidbauer Immobilien Kreta
Bewertung: 4,9 von 5 Sternen
Nachricht hinzufügen
Mit der Nutzung der oben angegebenen Telefonnummer oder durch Klicken auf „Kontaktieren“ akzeptierst Du die Allgemeinen Nutzungsbedingungen, denen Du jederzeit widersprechen kannst. Weitere Informationen zum Datenschutz
Wie zufrieden bist du mit dieser Seite (nicht mit der Immobilie selbst)?