Version: 8.25.1Navigation überspringen
449.000 €
2,5 Zimmer  •  73,6 m²  •  EG
Immowelt logo

Wohnung zum Kauf
449000 €
5.655 €/m²
2,5 Zimmer  •  73,6 m²  •  EG

Gebraucht aber gut! 2,5-Zimmer im Altbau mit Balkon und ca. 30 m² Eigengarten. Schnell sein!

Traumprojekt in der Landstraße - Abheben von der Konkurrenz.....

Heimkommen! Abschalten! Wohlfühlen! Genießen!

Werfen Sie einen Blick auf dieses wunderschöne Gründerzeithaus und Sie werden Augen machen.

In zentraler Lage und unmittelbarer Nähe zur Landstraße Hauptstraße, wird im Zuge des Dachausbaus, demnächst einem Stilaltbau neues Leben eingehaucht. Hierbei wird auf den Erhalt der Altbauelemente viel Wert gelegt. Angefangen von eine neu sanierten Fassade, welche sich stilvoll in das Straßen Ensemble einfügt, über das frisch sanierten Stiegenhaus mit Personenlift, wird aus dieser Immobilie ein wahres Schmuckstücken. 

Lassen Sie sich bereits jetzt schon von diesem großartigen Projekt mit viel Liebe zum Detail überzeugen und vereinbaren Sie noch heute Ihren persönlichen Besichtigungstermin! 

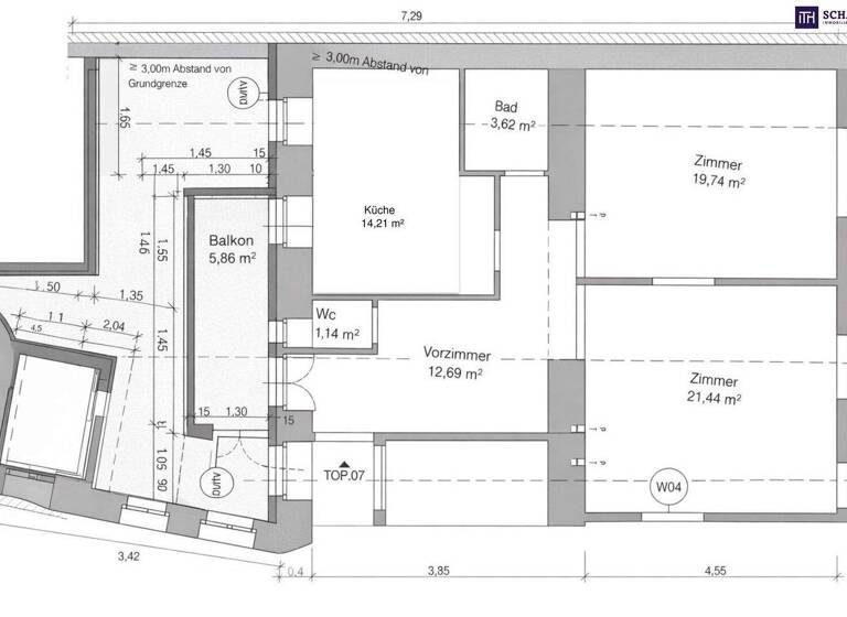
TOP 7 - Ost-Westseitig ausgerichtete 2,5-Zimmer-Wohnung mit Balkon und Eigengarten!

Diese Wohnung beeindruckt mit einem großzügigen Raumangebot. Viel Platz für gemütliche Abende mit Freunden finden Sie in dem über 22 Quadratmeter großen Wohn- Essbereich. Die Küche ist clever in Richtung Innenhof und Eigengarten ausgerichtet. Ein großes Schlafzimmer, ein Badezimmer mit Badewanne, eine separate Toilette und der zentrale Vorraum ergänzen das Raumangebot dieser hübschen Wohnung. Von der Küche aus gelangen Sie auf den, ca. 6 Quadratmeter großen Balkon mit Abgang zum 30 m² großen Eigengarten.

Der Garten inklusive der Einzäunung, sowie der Balkon werden im Zuges des Verkaufs noch vom Verkäufer errichtet.

Wohnfläche: ca. 72,84 m² + Balkon: ca. 5,86 m² + Garten: 29,3 m²  + Kellerabteil

Kaufpreis: EUR 449.000,-

Provision: 3% des KP zzgl. 20% Ust.

 

Bei konkretem Interesse senden wir Ihnen sehr gerne weiterführende Dokumente zu, wie:

o Grundbuchauszug

o Wohnungseigentumsvertrag

o Nutzwertgutachten

o Eigentümerversammlungsprotokoll (Falls vorhanden) etc...

 

Unser Service für Sie: Wenn Sie sich für diese Immobilie entschieden haben, begleiten wir Sie gerne vom Kaufanbot weg inkl. Klärung von Sonderwünschen und der Vertragsunterzeichnung über die Wohnungsübergabe bis hin zu diversen Ummeldungen wie Strom und Gas. Entsprechende Formulare oder auch Meldezettel stellen wir Ihnen sehr gerne zur Verfügung.

Gerne unterstützen wir Sie auch bei der Finanzierung Ihres Traumobjekts und finden mit unseren langjährigen Partnern die besten Konditionen für Sie.

Vereinbaren Sie noch heute einen Termin, wir beraten Sie gerne!

Sie wollen Ihre Immobilie verkaufen? Dann sind Sie bei uns goldrichtig! Gerne beraten wir Sie kostenlos bei der Bewertung Ihrer Immobilie und präsentieren Ihnen die dafür entscheidenden Informationen und Unterlagen unverbindlich. 

www.schantl-ith.at

Wir weisen darauf hin, dass zwischen dem Vermittler und dem zu vermittelnden Dritten ein familiäres oder wirtschaftliches Naheverhältnis besteht.

Der Vermittler ist als Doppelmakler tätig.

Infrastruktur / Entfernungen

Gesundheit
Arzt <500m
Apotheke <250m
Klinik <500m
Krankenhaus <250m

Kinder & Schulen
Schule <250m
Kindergarten <250m
Universität <750m
Höhere Schule <750m

Nahversorgung
Supermarkt <250m
Bäckerei <250m
Einkaufszentrum <750m

Sonstige
Geldautomat <250m
Bank <500m
Post <500m
Polizei <500m

Verkehr
Bus <250m
U-Bahn <500m
Straßenbahn <500m
Bahnhof <500m
Autobahnanschluss <1.250m

Angaben Entfernung Luftlinie / Quelle: OpenStreetMap

Merkmale

  • Bezug: ab sofort
  • Erdgeschoss
  • Einbauküche
  • Personenaufzug
  • Gäste-WC
  • Balkon

Grundrisse

Grundrisse
1 / 1

Realisiere Dein Projekt

Bausubstanz und Energie

Heizwärmebedarf (HWB)

D

Gesamtenergieeffizienz (fGEE)

F
  • Baujahr1900
  • Zustand der ImmobilieAltbau (bis 1945), Massivhaus, Gepflegt
  • HeizungsartEtagenheizung
  • EnergieträgerGas
Immowelt logo

Preisdetails

Kaufpreis
449000 €
5.654,91 €/m²
Provision für Käufer
3% des Kaufpreises zzgl. 20% USt.

Lage

address-icon
KlopsteinplatzWien,Landstraße (1030)
Die Wohnung befindet sich in einer äußerst gefragten Wohngegend im dritten Wiener Gemeindebezirk, nur wenige Gehminuten von der Landstraßer Hauptstraße entfernt. Die Umgebung bietet eine hervorragende Infrastruktur mit zahlreichen Einkaufsmöglichkeiten, Cafés, Restaurants und Nahversorgern in direkter Nähe. Auch Schulen, Kindergärten und medizinische Einrichtungen sind bequem erreichbar.
Die Anbindung an den öffentlichen Verkehr ist ausgezeichnet: Mehrere Straßenbahn- und Buslinien sowie die nahegelegene U-Bahn-Station garantieren eine schnelle Verbindung in die Wiener Innenstadt und darüber hinaus. Gleichzeitig lädt die grüne Umgebung zu erholsamen Spaziergängen oder sportlichen Aktivitäten ein - der nahe Stadtpark sowie das Arenbergpark-Areal bieten ideale Möglichkeiten zur Entspannung im Freien.
Die Kombination aus urbanem Komfort, guter Verkehrsanbindung und hoher Lebensqualität macht diesen Standort besonders attraktiv.

Weitere Informationen

Stichworte West-Balkon/Terrasse, Nutzfläche: 79,40 m², Anzahl der Badezimmer: 1, Anzahl der separaten WCs: 1, Anzahl Balkone: 1, Balkon-Terrassen-Fläche: 5,86 m², Gartenfläche: 28,82 m², Bundesland: Wien, 5 Etagen

Weitere Services

Lust auf eine Besichtigung?
Eine Frage zur Immobilie?
Nachricht hinzufügen
Mit der Nutzung der oben angegebenen Telefonnummer oder durch Klicken auf „Kontaktieren“ akzeptierst Du die Allgemeinen Nutzungsbedingungen, denen Du jederzeit widersprechen kannst. Weitere Informationen zum Datenschutz

Über den Anbieter

Messendorferstraße 71a, 8041 Graz
Herr Mark PrettenthalerDein Kontakt
Online-ID: 26FTZB2AN6MU
Referenznummer: OBGC20260321130329349ad5866d560
Schantl ITH Immobilientreuhand GmbH
Schantl ITH Immobilientreuhand GmbH
Bewertung: 5 von 5 Sternen
Nachricht hinzufügen
Mit der Nutzung der oben angegebenen Telefonnummer oder durch Klicken auf „Kontaktieren“ akzeptierst Du die Allgemeinen Nutzungsbedingungen, denen Du jederzeit widersprechen kannst. Weitere Informationen zum Datenschutz
Wie zufrieden bist du mit dieser Seite (nicht mit der Immobilie selbst)?