

Wohnung zum Kauf425459 €4 Zimmer • 1. Geschoss
425459 €
4 Zimmer • 1. Geschoss
Apartment Mandre, Kolan, 146,71m2
Merkmale
- 1. Geschoss
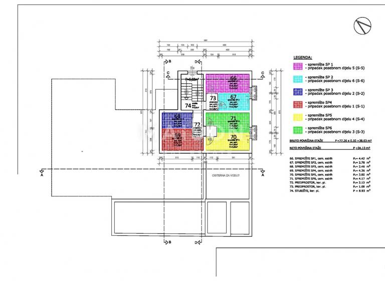
Grundrisse
Grundrisse
1 / 3
Realisiere Dein Projekt
Bausubstanz und Energie
Der Anbieter hat keine Informationen zum Energieverbrauch bereit gestellt.
- Baujahr2000
Preisdetails
Kaufpreis
425459 €
Provision für Käufer
Bitte beachte, das Angebot kann bei Vertragsabschluss die Zahlung einer Provision beinhalten. Weitere Informationen erhältst Du vom Anbieter.
Lage

Kolan (23250)
Der Anbieter hat die genaue Adresse nicht freigegeben
Weitere Informationen
Weitere Services
Lust auf eine Besichtigung?
Eine Frage zur Immobilie?
Ăśber den Anbieter
Online-ID: 2la2s5g
Referenznummer: 3095-908
LABIN d.o.o.
Wie zufrieden bist du mit dieser Seite (nicht mit der Immobilie selbst)?

