Bürofläche am Dom - Zentral, sichtbar, hervorragend angebunden
Die Büroimmobilie überzeugt durch ihre repräsentative Innenstadtlage in unmittelbarer Nähe zum Dom und Hauptbahnhof und bietet helle, flexibel nutzbare Büroflächen in einem lebendigen Umfeld mit Gastronomie, Einzelhandel und vielfältigen Serviceangeboten sowie einer hervorragenden Anbindung an den öffentlichen Nahverkehr und den Bahnverkehr; ein Energieausweis liegt vor. Aktuell steht im 2. Obergeschoss eine Bürofläche mit ca. 223 m² zur Verfügung, die wahlweise im bestehenden Ausbauzustand inklusive Türdurchbrüchen zu den beiden hinteren Räumen zu einem Mietzins von 3.250,00 EUR zzgl. Nebenkosten in Höhe von 950,00 EUR, jeweils zzgl. USt., oder renoviert nach Mieterwunsch im Rahmen des vorgesehenen Baubudgets zu einem Mietzins von 4.150,00 EUR bei gleichbleibenden Nebenkosten, jeweils zzgl. USt., angemietet werden kann; weitere Sonderausstattungen sind gegen Aufpreis möglich, und gegebenenfalls besteht zudem die Möglichkeit, einen Stellplatz anzumieten.
Merkmale
Bezug: ab 01.01.2026
Kochnische, Speisekammer
Personenaufzug
Bodenbelag: Kunststoff, Teppich
. Repräsentative Innenstadtlage nahe Dom & Hauptbahnhof . Sehr gute Erreichbarkeit mit ÖPNV und Bahn . Bürofläche im 2. Obergeschoss . Umgeben von Gastronomie, Einzelhandel und Services . Heller Grundriss, flexible Nutzungsmöglichkeiten . Energieausweis liegt vor
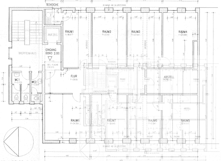
Grundrisse
Grundrisse
1 / 1
Realisiere Dein Projekt
Bausubstanz und Energie
Der Anbieter hat keine Informationen zum Energieverbrauch bereit gestellt.
Baujahr1960
Zustand der ImmobilieGepflegt
Mietkosten
Nettomiete zzgl. Nebenkosten
18,50 €/m²
18,50 €
Zusätzliche Kosten
Heizkosten
Provision für Mieter
3-4 Nettomonatsmieten Bei Verträgen bis zu fünf Jahren Laufzeit ist ein Honorar von 3 Nettomonatsmieten vom Mieter an RUHR REAL zahlbar; bei Laufzeiten bis zu zehn Jahren werden 4 Nettomonatsmieten fällig. Hinzu kommt die jeweils gültige Umsatzsteuer.
Kaution
keine Angabe
Weitere Preisinformationen
Nettokaltmiete: 18,50 EUR
Lage
Altstadt-Nord, Köln (50667)
Der Anbieter hat die genaue Adresse nicht freigegeben
Die Liegenschaft befindet sich in absolut zentraler Innenstadtlage von Köln, nur wenige Schritte vom Kölner Dom, dem Hauptbahnhof sowie der bekannten Einkaufsmeile Hohe Straße entfernt. Durch die hervorragende Anbindung an den öffentlichen Nah- und Fernverkehr ist der Standort sowohl für Mitarbeiter als auch Kunden optimal erreichbar. Das Umfeld zeichnet sich durch eine vielfältige Gastronomie, zahlreiche Einkaufsmöglichkeiten sowie ein breites Dienstleistungsangebot aus und zählt zu den etablierten Geschäftsadressen der Kölner City. Die zentrale Lage bietet eine hohe Frequenz, beste Infrastruktur und ein repräsentatives Umfeld für Unternehmen verschiedenster Branchen.
Weitere Informationen
Sonstiges
Es gelten ausschließlich unsere AGB (www.ruhr-real.de/agb). Wir möchten Sie darauf hinweisen, dass die Angaben ausschließlich auf den uns vom Eigentümer übermittelten Unterlagen und Informationen basieren. Für Richtigkeit und Vollständigkeit übernehmen wir keine Gewähr. Zwischenvermietung vorbehalten.
Stichworte
Sonstiges: EDV-Verkabelung