Version: 8.26.0Navigation überspringen
Immobilien Rienhardt GmbH
395.000 €
2 Zimmer  •  169 m² Verkaufsfläche

Laden zum Kauf
395000 €
2 Zimmer  •  169 m² Verkaufsfläche

Ladenräume/Ladenbüro in der Ludwigsburger Innenstadt

Inmitten der Ludwigsburger Innenstadt, nur wenige Schritte von der Fußgängerzone entfernt, präsentiert sich dieses gepflegte Ladengeschäft im Erdgeschoss eines denkmalgeschützten
Wohn- und Geschäftshauses. Mit seiner vielseitig nutzbaren Fläche eignet sich das Objekt ideal als
Verkaufsfläche, Ladenbüro oder Showroom - ein attraktives Angebot sowohl für Kapitalanleger
als auch für Gewerbetreibende, die Wert auf Lage und Charakter legen.

Ausstattung und Besonderheiten
- Denkmalgeschütztes Wohn- und Geschäftshaus (Baujahr ca. 1770)
- Erdgeschoss mit großzügiger Verkaufsfläche
- Untergeschoss mit Lager- und Abstellbereich
- Gaszentralheizung mit Warmwasserversorgung

Merkmale

  • Bezug: Zur Zeit vermietet
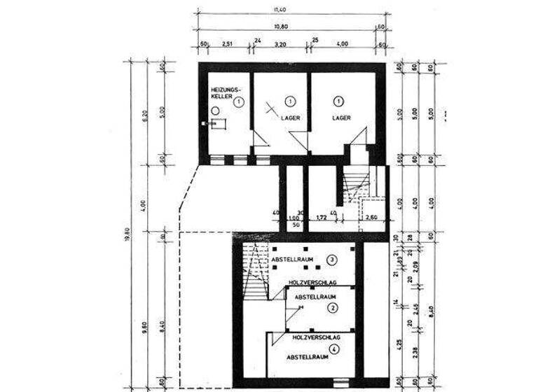
Das um ca. 1770 errichtete Gebäude vereint historischen Charme mit funktionaler Raumaufteilung. Die Gesamtfläche von rund 169 m2 verteilt sich auf ca. 132 m2 im Erdgeschoss und ca. 37 m2 im Untergeschoss.
Im Erdgeschoss erwartet Sie ein großzügiger Verkaufsraum mit Schaufensterfront- ideal für eine ansprechende Warenpräsentation oder als repräsentativer Bürostandort mit Kundenfrequenz...

Neugierig geworden? Weitere, detaillierte Informationen und tolle XXL Bilder finden Sie JETZT auf unserer Homepage!

Grundrisse

Grundrisse
1 / 2

Bausubstanz und Energie

Energieausweis

Ein Energieausweis ist für diesen Gebäudetyp nicht notwendig.
  • Baujahr1770
MediumRectangleTop

Preisdetails

Kaufpreis
395000 €
Provision für Käufer
3,57 % inkl. MwSt.
Geschätzte Gesamtkosten
409.102 €1
Kaufpreis
395.000 €
Provision für Käufer (3,57%)
14.102 €
1Der angezeigte Wert ist eine automatisch berechnete Schätzung von immowelt.
2Bei den Angaben handelt es sich um ortsübliche Werte. Individuelle Kosten können abweichen.

Lage

address-icon
MitteLudwigsburg (71634)
Der Anbieter hat die genaue Adresse nicht freigegeben
Die Innenstadtlage unweit der Fußgängerzone gewährleistet hohe Sichtbarkeit und beste Erreichbarkeit - sowohl für Laufkundschaft als auch für Stammkunden. Zahlreiche Geschäfte, Cafés und Dienstleister in der direkten Umgebung schaffen ein lebendiges Umfeld mit konstantem Publikumsverkehr.

Weitere Informationen

Sonstiges Diese Angaben sollen Ihnen zur Erstinformation dienen. Sehr gerne stellen wir Ihnen ein ausführliches Exposé mit Detailangaben, Bildern, Grundrissen und Adresse per Post, Fax oder E-Mail zur Verfügung. Wir bitten um Ihr Verständnis, dass wir hierzu Ihre vollständige Adresse sowie Ihre Telefonnummer benötigen. Wir werden Ihre Daten selbstverständlich vertraulich behandeln und nicht zu sonstigen Werbezwecken nutzen.

Tobias Dziewior steht Ihnen gerne für einen Besichtigungstermin zur Verfügung. Wir freuen uns auf Ihre Nachricht. Stichworte Nutzfläche: 169,00 m²

Weitere Services

Lust auf eine Besichtigung?
Eine Frage zur Immobilie?
Nachricht hinzufügen
Mit der Nutzung der oben angegebenen Telefonnummer oder durch Klicken auf „Kontaktieren“ akzeptierst Du die Allgemeinen Nutzungsbedingungen, denen Du jederzeit widersprechen kannst. Weitere Informationen zum Datenschutz

Über den Anbieter

Körnerstraße 15, 71634 Ludwigsburg
Herr Tobias DziewiorDein Kontakt
Online-ID: 25LUQ4PWX4NC
Referenznummer: 125031-1
MediumRectangleTop
Wie zufrieden bist du mit dieser Seite (nicht mit der Immobilie selbst)?