
P!NK IMMOBILIEN
Herr Thomas Hillebrecht
+49 ···
Nr. anzeigenPreise & Kosten
Kaution
3200
Provision für Mieter
Bei Vermittlung eines Mietvertrages wir dem Mieter 1 Kalt-Monatsmiete zzgl. 19 % MwSt. berechnet, d. h. gesamt 1.904,00 €
Warum sehe ich diese Anzeige? – Du siehst diese Anzeige basierend auf Ihrer Navigation auf unserer Website und den Suchkriterien, die du verwendet hast.
Lage
Das Wohn- und Bürohaus befindet sich in gesuchter und gefragter Lage im Gebiet "Gänsheide", mit teilweiser schöner Aussicht auf die City von Stuttgart. Eine Stadtbahnhaltestelle befindet sich in Sichtweite und auch eiin Bäcker ist fussläufig schnell ereichbar.
Büro-/Praxisfläche
Kategorie
Bürofläche
Bezug
sofort
Derzeitige Nutzung
frei
Geschoss
Erdgeschoss
Details
Objektbeschreibung
Wir bitten Sie bei Interesse an unseren Objekten von Anrufen bei uns abzusehen, sondern uns zunächst Ihre Anfrage per E-Mail zukommen zu lassen. Wir werden uns dann bei Ihnen melden.
Wir bieten hier eine Bürofläche im Auftrag des Hauptmieters zur Untermiete bis zum 31.03.2026 an.
Danach ist der Hauptmietvertrag...
Ausstattung
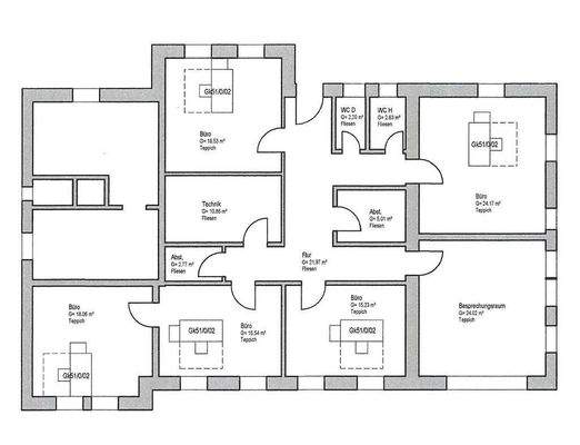
Die komplette Möbelierung und alle Technikgeräten werden bei Auszug entfernt, so dass der nächste Untermieter seine Möbel und Technik nach seinen Bedürfnissen hier aufstellen kann. Die Sanitärräume und die Diele sind hell gefliest und in den 5 Büroräumen und im Besprechungszimmer liegt Teppich.
Alle Büroräumen sind...
Weitere Informationen
Sonstiges
Wir bemühen uns, alle Objektmerkmale so korrekt wie möglich wiederzugeben. Da wir jedoch auf die Angaben unseres Auftraggebers angewiesen sind, können wir keine Haftung für die Richtigkeit und Vollständigkeit übernehmen. Wir haften nur bei grober Fahrlässigkeit und Vorsatz.
Unsere Angebote sind nur für die uns...
Anbieter der Immobilie
Online-ID: 2k2cm5m
Referenznummer: TH-2025-214 (1/929)
Finde Angebote wie dieses
Hier geht es zu unserem Impressum, den Allgemeinen Geschäftsbedingungen, den Hinweisen zum Datenschutz und nutzungsbasierter Online-Werbung.