Version: 8.24.0Navigation überspringen
Hechler & Twachtmann Immobilien GmbH
990 €
137 m² Verkaufsfläche

Laden zur Miete
990 €
137 m² Verkaufsfläche

Renovierung vor Bezug - gestalten Sie diese attraktive Fläche mit!

In zentraler Lage von Woltmershausen erwartet Sie dieses attraktive Ladenlokal im Erdgeschoss eines Wohn- und Geschäftshauses.
Vor Ihrem Einzug wird das Ladenlokal von den Vermietern umfassend renoviert. Geplant sind frisch gestrichene Wände in Weiß sowie ein moderner Vinylboden. Selbstverständlich können Ihre individuellen Wünsche berücksichtigt werden, und eine alternative Ausstattung ist in Absprache mit Anpassung der Mietkonditionen möglich.

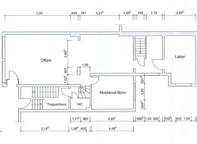
Die ebenerdige Ladenfläche ist bequem über eine automatische Falttür zugänglich. Der ca. 63 m² große Verkaufsraum profitiert von einer großzügigen Schaufensterfront, die den Raum mit natürlichem Licht durchflutet und Ihnen hervorragende Möglichkeiten zur Präsentation Ihrer Waren oder Dienstleistungen bietet.

Ein ansprechender Büroraum sowie ein WC, welches über wenige Treppenstufen erreichbar ist, schließen sich direkt an den Verkaufsraum an. Im hinteren Bereich befindet sich ein Lagerraum, der als Durchgang zum Aufenthaltsraum mit anschließendem Laborraum dient.

Der Keller ist sowohl über eine Treppe vom Lager-/Durchgangsraum als auch über einen Außenzugang erreichbar. Hier stehen Ihnen drei zusätzliche Lagerräume zur Verfügung.

Sie denken darüber danach, sich mit Ihrem Geschäft räumlich verändern zu wollen, suchen dazu eine gute Lauflage? Dann könnte dieses Ladenlokal für Sie passen!

Merkmale

  • Bezug: nach Absprache
  • Keller
  • Gäste-WC
  • Bodenbelag: Laminat
- ebenerdige Verkaufs-/Bürofläche
- große Schaufensterfront
- automatische Falttür
- ein Büroraum
- Aufenthaltsraum mit Küche
- Labor-/Lagerraum
- Mitarbeiter WC
- Lagerräume im Keller mit Außenzugang
- frisch gestrichene Wände
- neuer Vinylboden

Grundrisse

Grundrisse
1 / 2

Realisiere Dein Projekt

Bausubstanz und Energie

Energieausweis

Endenergiebedarf (Wärme)

  • Baujahr1957
  • Zustand der Immobilierenoviert / saniert
MediumRectangleTop

Mietkosten

Warmmiete
1.160 €
Nettomiete
990 €
Nebenkosten
170 €
Zusätzliche Kosten
Heizkosten
Provision für Mieter
Im Erfolgsfall ist vom Mieter ein Erfolgshonorar in Höhe von 3,57 Monatskaltmieten inkl. MwSt. zu zahlen! zzgl. MwSt.
Kaution
1980 €
Weitere Preisinformationen
Nettokaltmiete: 990,00 EUR

Lage

address-icon
WoltmershausenBremen (28197)
Der Anbieter hat die genaue Adresse nicht freigegeben
Der Stadtteil Woltmershausen, auch bekannt unter dem Namen Pusdorf, liegt im Südwesten Bremens und direkt am Weserufer. Die Hauptschlagader des Stadtteils ist die Woltmershauser Straße. Hier gibt es vielfältige Einkaufsmöglichkeiten, Gastronomie, Banken, Ärzte und sonstige Geschäfte des täglichen Bedarfs. Durch den ÖPNV mit den Buslinien 24 und N3 sind die Innenstadt und der Hauptbahnhof in wenigen Minuten erreicht.

Das Ladenlokal befindet sich direkt an der Woltmershauser Straße in zentraler Lage.

Weitere Informationen

Sonstiges Es liegt ein Energiebedarfsausweis vor.
Dieser ist gültig bis 22.10.2029.
Endenergiebedarf beträgt 239.00 kwh/(m²*a).
Wesentlicher Energieträger der Heizung ist Gas.
Das Baujahr des Objekts lt. Energieausweis ist 1957.
Die Energieeffizienzklasse ist G.

Zu den genannten Nebenkosten rechnen Sie bitte die Kosten für Gas, Strom und Wasser, welche Sie eigenständig mit dem Versorgungsunternehmen abrechnen.

Bitte beachten Sie, dass für die Anmietung dieser Immobilie auf Wunsch des Vermieters folgende Voraussetzungen gelten:

- Mindestvertragslaufzeit von 3 Jahren mit Verlängerungsoption
- Staffelmiete alle 2 Jahre € 50,00
- Nachweis über positive Bonität (durch Vorlage aktueller BWA)
- bei Neugründungen ggf. erhöhte Kaution nach Absprache
- keine negativen Schufa-Einträge

[SCHON GEWUSST...?]

Wir veröffentlichen unsere Immobilienangebote zuerst auf unserer Website. Die Vermarktung in den bekannten Immobilien-Portalen findet - sofern erforderlich - bis zu einer Woche später statt.
Alle Immobilien finden Sie auf www.hechler-twachtmann.de. Sie möchten zukünftig kein Angebot verpassen? Dann legen Sie einfach ein Suchprofil an - ebenfalls bequem online auf unserer Website.

Dieser Service ist natürlich kostenfrei und unverbindlich. Es gelten die AGB. Stichworte Gesamtfläche: 137,00 m², Bundesland: Bremen

Weitere Services

Lust auf eine Besichtigung?
Eine Frage zur Immobilie?
Nachricht hinzufügen
Mit der Nutzung der oben angegebenen Telefonnummer oder durch Klicken auf „Kontaktieren“ akzeptierst Du die Allgemeinen Nutzungsbedingungen, denen Du jederzeit widersprechen kannst. Weitere Informationen zum Datenschutz

Über den Anbieter

Blockener Straße 4, 28816 Stuhr
partner badge
Partnerschaft
Frau Anke DreyerDein Kontakt
Online-ID: 2jawv5t
Referenznummer: KO024M
Hechler & Twachtmann Immobilien GmbH
Hechler & Twachtmann Immobilien GmbH
Nachricht hinzufügen
Mit der Nutzung der oben angegebenen Telefonnummer oder durch Klicken auf „Kontaktieren“ akzeptierst Du die Allgemeinen Nutzungsbedingungen, denen Du jederzeit widersprechen kannst. Weitere Informationen zum Datenschutz
MediumRectangleTop
MediumRectangleBottom
MediumRectangleTop
Wie zufrieden bist du mit dieser Seite (nicht mit der Immobilie selbst)?