Schönes Bauernhaus in 4 Wohnungen aufgeteilt, Infinity-Pool, Fitnessbereich, Jacuzzi und Garten
Dieses schöne Landhaus besteht aus zwei Ebenen: eine über und eine unter der Erde. Es besteht aus vier Wohnungen mit einer Gesamtfläche von 800 Quadratmetern und ist von einem herrlichen, vollständig eingezäunten und gestalteten Garten mit einem Swimmingpool und Bereichen, die als Fitnessbereich, Whirlpool und Entspannungsbereich genutzt werden, umgeben.
Dieses schöne Anwesen wurde Ende der 1980er Jahre aus einer verfallenen Immobilie wiederaufgebaut, wobei die baulichen Merkmale der typischen Landhäuser der Gegend übernommen wurden. Anschließend wurden Restaurierungen und Verbesserungen vorgenommen, zuletzt im Jahr 2022, wozu auch die Renovierung des Swimmingpools und des Gartens gehörte. Das Landhaus verfügt über 4 Wohnungen, jede mit eigenem Eingang.
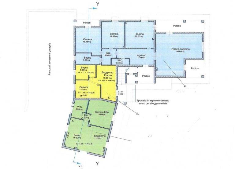
Die erste Wohnung im Erdgeschoss besteht aus einem Esszimmer, Küche, 2 Schlafzimmer und 1 Bad. Die zweite Wohnung mit Eingang ebenfalls im Erdgeschoss verfügt über 1 Schlafzimmer, 1 Kochnische mit Wohnzimmer und 1 Badezimmer. Die dritte Wohnung mit Eingang im Erdgeschoss besteht aus 1 Schlafzimmer, 1 Kochnische mit Wohnzimmer und 1 Badezimmer. Die vierte und letzte Wohnung erreicht man auf der zweiten Ebene über eine Treppe, die zu einer kleinen Terrasse führt, von der aus man das Wohnzimmer mit Kochnische betritt und dann weiter zu den 2 Schlafzimmern und 1 Bad gelangt. Auf Straßenebene gibt es zwei große Zimmer, Abstellraum/Keller.
Das Anwesen liegt in einem schönen und gepflegten Garten, in dem sich ein wunderschöner Infinity-Pool von 10 x 4 m befindet, der 2022 komplett neu gebaut wurde, ein Fitnessbereich, zwei Entspannungsbereiche und ein Bereich mit einem beheizten Jacuzzi sind ebenfalls vorhanden. Zwei Parkplätze runden das Angebot ab.
Die Fassaden bestehen aus Naturstein und Putz, die Zwischendecken sind aus Ziegeln, die Böden von zwei Wohnungen sind aus Holz und die beiden anderen aus Feinsteinzeug. Die Fenster sind doppelt verglast und die Fensterläden bestehen aus Holz.
Die Stromversorgung ist durch den Anschluss an das nationale Stromnetz gewährleistet. Es gibt zwei dreiphasige 110-kW- Schaltanlagen. In einer Wohnung gibt es eine Wärmepumpe, in den anderen Wohnungen sind Heizkörper vorhanden. Geheizt wird mit Flüssiggas, die Wasserversorgung erfolgt über den Anschluss an das städtische Wassernetz, das Abwassersystem mit privater Klärgrube wurde 2022 erneuert.
Derzeit wird eine Wohnung bewohnt, während die übrigen drei Wohnungen für die Vermietung an Touristen genutzt werden. Es besteht auch die Möglichkeit, alle Wohnungen zusammenzulegen und das Anwesen zu einem einzigen Wohnhaus zu machen.