




Reihenendhaus zum Kauf650000 €3.869 €/m²5 Zimmer • 168 m² • 427 m² Grundstück
650000 €
3.869 €/m²
5 Zimmer • 168 m² • 427 m² Grundstück
Familienfreundliches Reihenendhaus mit großem Garten in Köln-Zündorf!
Merkmale
- 427 m² Grundstück
- Keller
- Bidet, Gäste-WC
- Balkon
- Garten
- Badezimmer: Badewanne, Bad mit Dusche
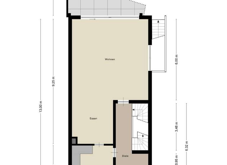
Grundrisse
Grundrisse
1 / 3
Virtueller Rundgang
3D tour

Realisiere Dein Projekt
Bausubstanz und Energie
Energieausweis
F
- Baujahr1978
- EnergieträgerÖl
Preisdetails
Kaufpreis
650000 €
3.869,05 €/m²
Provision für Käufer
3,57% incl. 19% MwSt vom not. Kaufpreis
Geschätzte Gesamtkosten
728.455 €1
Kaufpreis
650.000 €
Kaufnebenkosten
78.455 €
2Notarkosten (1,5%)
9.750 €
Grunderwerbsteuer (6,5%)
42.250 €
Provision für Käufer (3,57%)
23.205 €
Grundbucheintrag (0,5%)
3.250 €
1Der angezeigte Wert ist eine automatisch berechnete Schätzung von immowelt.
2Bei den Angaben handelt es sich um ortsübliche Werte. Individuelle Kosten können abweichen.
Lage

Zündorf, Köln (51143)
Der Anbieter hat die genaue Adresse nicht freigegeben
Weitere Informationen
Weitere Services
Lust auf eine Besichtigung?
Eine Frage zur Immobilie?
Über den Anbieter
FALC Immobilien Köln & PulheimMaklerbüro
Aachener Str. 541, 50933 Köln
Partnerschaft
Herr Günter ThalDein Kontakt
Weitere Unterlagen
Online-ID: 2mcme5b
Referenznummer: FALC-GT-77443
Wie zufrieden bist du mit dieser Seite (nicht mit der Immobilie selbst)?



