Version: 8.25.1Navigation überspringen
ohne-makler.net - Immobilien selbst vermarkten
Mietkosten auf Anfrage
1.007 m² Lagerfläche

Lagerhalle zur Miete • provisionsfrei
Mietkosten auf Anfrage
1.007 m² Lagerfläche

Vermietung einer Gewerbefläche (Produktion; Büro; Lager) 1.007 qm. Teilfläche ab 190 qm mietbar

In attraktiver Lage im Gewerbegebiet Ried von Lauchringen steht dieses hochwertige und flexibel nutzbare Gewerbeobjekt zur Miete.

Die Gesamt-Nutzfläche von rund 1007m², verteilt sich auf funktional gestaltete Bereiche und bietet ideale Voraussetzungen für unterschiedlichste Branchen und Nutzungskonzepte.

Eine Mietteilfläche ab ca.190 m² ist möglich. Der Keller kann auch gesonderte reine Lagerfläche gemietet werden.

Im Erdgeschoss steht Ihnen eine Fläche von ca. 707m² zur Verfügung, diese teilt sich in zwei flexibel nutzbare Bereiche von ca. 340m² und 200m². Sowie ca.58m² Bürobereiche und ein ca.41m² Empfangs-/ Besprechungsbereich- perfekt, um Kunden ansprechend zu empfangen und interne Arbeitsabläufe effizient zu gestalten.
Die angrenzenden Sozial- und Sanitärräume verfügen über zeitgemäß erneuerte Sanitäreinrichtungen. Ebenso ist eine Küche mit Elektrogeräten vorhanden.
Ein Freisitz befindet sich direkt am Gebäude.

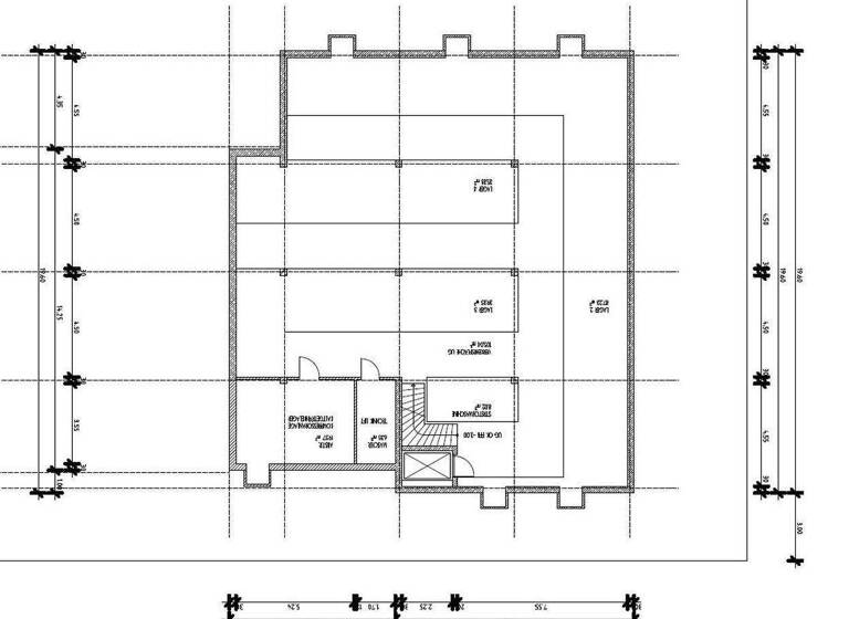
Im Untergeschoss befindet sich eine Fläche von ca. 300m², welche z.B. als Lagerfläche nutzbar ist.
Die Erschließung des Untergeschosses erfolgt über eine Treppe bzw. über einen Lastenaufzug.
Alle Bereiche sind beheizt.

Ergänzt wird das Raumangebot durch eine großzügige Garage.

Das massiv gebaute Gebäude wurde 1973 errichtet, kontinuierlich erweitert und zuletzt 2001 umfassend umgebaut. Der heutige Zustand ist dank laufender Modernisierungen äußerst gepflegt und wertig.

Ergänzend zur funktionalen Substanz und der ansprechenden Ausstattung punktet die Immobilie mit praktischen Extras:
ausreichend Stellplätze auf dem Grundstück und
öffentliche Verkehrsmittel Bahn sowie Bus sind innerhalb 5 Gehminuten zu erreichen

Flächenaufteilung:

Erdgeschoss - ca. 707?m²
.Zwei flexibel nutzbare Bereiche mit ca. 340?m² und ca. 200?m²
.Büroflächen ca. 58?m²
.Empfangs- / Besprechungsbereich ca. 41?m²
.Moderne Sozial- und Sanitärräume
.Küche mit Elektrogeräten
.Direkter Zugang zu einem Freisitz



Untergeschoss - ca. 300?m²
.Ideal als Lagerfläche
.Erschließung über Treppe und Lastenaufzug

Ausstattung & Extras:
.Bauweise: massiv, gepflegt, flexibel nutzbar
.Große Garage für ein Transporter
.Erschließung über ebenerdigen, barrierefreien Zugang - Personenzugang
.Rolltor - z.B. Materiallieferung
.Alle Bereiche beheizbar
.Parkett in Büroflächen
.Industriefußboden
.Starkstrom
.Druckluft
.Lastenaufzug
.Stellplätze auf dem Grundstück

Lage:
Das Gewerbegebiet Ried in Lauchringen bietet eine hervorragende Infrastruktur, gute Verkehrsanbindung und ein attraktives Umfeld für Unternehmen verschiedenster Branchen.

Miete & Konditionen:
Details zu Mietpreis, Nebenkosten und Vertragslaufzeit gerne auf Anfrage.

Kontakt:
Bei Interesse senden wir Ihnen gerne weitere Unterlagen zu oder vereinbaren einen Besichtigungstermin.

Merkmale

  • Bezug: nach Absprache
  • 1 Geschoss
Bemerkungen:
Die Halle wurde im Jahr 2002 innen kernsaniert

Grundrisse

Grundrisse
1 / 1

Realisiere Dein Projekt

Bausubstanz und Energie

Möchtest du Details zum Energieverbrauch?info_energy_calculation-icon
  • Baujahr1980
  • Zustand der ImmobilieGepflegt
  • HeizungsartZentralheizung
  • EnergieträgerÖl
MediumRectangleTop

Mietkosten

Nettomiete zzgl. Nebenkosten
nicht angegeben
Nebenkosten
500 €
Heizkosten
in Warmmiete enthalten
Provision für Mieter
provisionsfrei; keine Provision, courtagefrei
Kaution
keine Angabe

Lage

address-icon
Waldstr 3UnterlauchringenLauchringen (79787)
Waldstr. 3 in 79787 Lauchringen

Weitere Informationen

Sonstiges Heizungsart: Zentralheizung
Energieträger: Öl
Energieausweis nicht vorhanden

Zu dem Objekt gehören 10 Außenstellplätze sowie eine große Garage.

ohne-makler (OM) ist weder Anbieter noch Vermittler der Immobilie. OM betreibt eine Plattform für Immobilieneigentümer, die unter anderem die gleichzeitige Veröffentlichung einzelner Inserate auf mehreren Immobilienportalen ermöglicht. Die Inhalte dieser Inserate werden ausschließlich von Dritten verantwortet. Für die Richtigkeit, Vollständigkeit oder Rechtmäßigkeit der Angaben übernimmt OM keine Haftung. Hinweise auf mögliche Rechtsverstöße können jederzeit gemeldet werden und werden nach Prüfung umgehend bearbeitet. Stichworte Lagerfläche: 1.007,00 m², Gesamtfläche: 1.007,00 m², Freifläche: 300,00 m², Bundesland: Baden-Württemberg, 2 Etagen

Weitere Services

Lust auf eine Besichtigung?
Eine Frage zur Immobilie?
Mit einer persönlichen Nachricht hast du bessere Chancen auf eine Antwort.
Mit der Nutzung der oben angegebenen Telefonnummer oder durch Klicken auf „Kontaktieren“ akzeptierst Du die Allgemeinen Nutzungsbedingungen, denen Du jederzeit widersprechen kannst. Weitere Informationen zum Datenschutz

Über den Anbieter

Humboldtstr. 25 A, 21509 Glinde
partner badge
Partnerschaft
Angebot von Firma Güschi Hr. SchmidtDein Kontakt
Keine Telefonnummer hinterlegt
Keine Telefonnummer hinterlegt

Weitere Unterlagen

Online-ID: 251DU7KTZ4J4
Referenznummer: 412167
ohne-makler.net - Immobilien selbst vermarkten
ohne-makler.net - Immobilien selbst vermarkten
Mit einer persönlichen Nachricht hast du bessere Chancen auf eine Antwort.
Mit der Nutzung der oben angegebenen Telefonnummer oder durch Klicken auf „Kontaktieren“ akzeptierst Du die Allgemeinen Nutzungsbedingungen, denen Du jederzeit widersprechen kannst. Weitere Informationen zum Datenschutz
MediumRectangleTop
MediumRectangleBottom
MediumRectangleTop
Wie zufrieden bist du mit dieser Seite (nicht mit der Immobilie selbst)?