Modernes Reihenhaus mit Carport in ruhiger Lage...
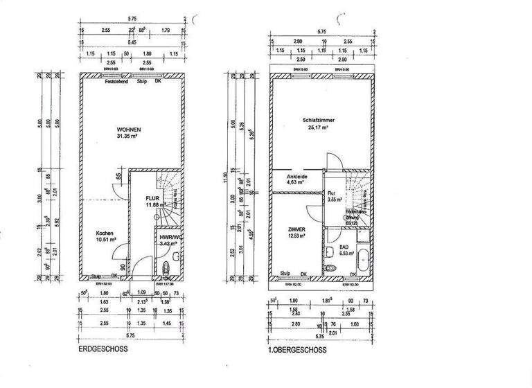
Dieses sehr gepflegte und moderne Reihenmittelhaus aus dem Jahr 2004 befindet sich in ruhiger Lage von Langenhagen und bietet Ihnen, verteilt auf Erdgeschoss, Ober und ausgebautem Dachgeschoss, ein perfektes Zuhause für Paare und Familien. Der lichtdurchflutende und offene Wohn- und Essbereich mit direktem Zugang zur Terrasse und Garten bildet das Highlight des Hauses ab. Vom Eingangsflur gelangen Sie zur Küche, dem Wohnzimmer und dem Gäste-WC. Der untere Wohnbereich ist komplett mit hochwertigen Fliesen verlegt worden. Im Obergeschoss erwartet Sie ein überaus großes Schlafzimmer mit angrenzendem Ankleideraum. Nebenan befindet sich ein Kinderzimmer mit ausreichend Platz für Ihre individuelle Einrichtung. Das hell geflieste Badezimmer ist mit einer Wanne und einer Dusche ausgestattet. Ein großes Fenster sorgt für immer gute Belüftung des Raumes. Das ausgebaute Dachgeschoss präsentiert sich als großer und heller Wohnraum mit separatem Hauswirtschaftraum für Waschmaschine und Trockner. Hier befindet sich auch der Warmwasserspeicher. Ein Carport mit Zugang vom Garten ist im Kaufpreis enthalten.
Merkmale
Bezug: ab 01.06.2026
170 m² Grundstück
Einbauküche
Carport
Kabelanschluss
- Sehr gepflegtes Reihenhaus - Ausgebautes Dachgeschoss - Überdachter Terrassenbereich - Carport - Offene Küche mit modernen Einbauten - Beheizt über Fernwärme - Gepflegter Garten mit Gartenhaus
Grundrisse
Grundrisse
1 / 2
Realisiere Dein Projekt
Bausubstanz und Energie
Energieausweis
A
Baujahr2004
Zustand der Immobilieneuwertig
EnergieträgerGas
Preisdetails
Kaufpreis
430000 €430.000 €
2.905,41 €/m²
Provision für Käufer
2,98 % incl. MwSt.
Weitere Preisinformationen
1 Carportplatz
Geschätzte Gesamtkosten
472.914 €1
Kaufpreis
430.000 €
Kaufnebenkosten
42.914 €
2
Notarkosten (1,5%)
6.450 €
Grunderwerbsteuer (5%)
21.500 €
Provision für Käufer (2,98%)
12.814 €
Grundbucheintrag (0,5%)
2.150 €
1Der angezeigte Wert ist eine automatisch berechnete Schätzung von immowelt.
2Bei den Angaben handelt es sich um ortsübliche Werte. Individuelle Kosten können abweichen.
Lage
Kaltenweide, Langenhagen (30855)
Der Anbieter hat die genaue Adresse nicht freigegeben
Dieses Reihenmittelhaus befindet sich in einem familienfreundlichen Wohngebiet im Ortsteil Kaltenweide mit überwiegend Reihen und Einfamilienhäusern. Sie finden Supermärkte, Ärzte, Apotheken, Schulen und Kindergärten gleich um die Ecke. Auch der öffentliche Nahverkehr ist fußläufig schnell erreichbar. Spielplätze sowie Sport- und Freizeitmöglichkeiten befinden sich in der näheren Umgebung.
Langenhagen verbindet urbane Nähe mit hoher Lebensqualität und einer ausgezeichneten Infrastruktur. Mit direkter Anbindung an Hannover, der Nähe zum Flughafen sowie einem vielseitigen Angebot an Einkaufsmöglichkeiten, Freizeit- und Bildungsangeboten bietet Langenhagen ideale Lebensqualität für Familien und Berufspendler.
Weitere Informationen
Sonstiges
Maklerprovision: Bei Abschluss eines Kaufvertrages beträgt die Provision für den Käufer 2,98 % vom Kaufpreis inkl. 19% MwSt. Mit dem Verkäufer wurde ebenfalls eine Provision in Höhe von 2,98 % incl. 19% MwSt. vertraglich vereinbart. Die Provisionen sind zahlbar an die Firma Südstadt Immobilien, Geibelstr. 45, 30173 Hannover. Alle Daten, z.B. Maße, Zustand des Objektes ect. beruhen auf den Angaben des Eigentümers. Eine Gewähr für die Richtigkeit kann nicht übernommen werden.
Stichworte
Carport vorhanden, Anzahl der Schlafzimmer: 3, Anzahl der Badezimmer: 1, Anzahl der separaten WCs: 1, 1 Etagen