
ALON Immobilien GmbH
Herr Ronny Abramov
+43 ···
Nr. anzeigenPreise & Kosten
Kaution
3 Bruttomonatsmieten
Provision für Mieter
3 Bruttomonatsmieten zzgl. 20% USt.
Warum sehe ich diese Anzeige? – Du siehst diese Anzeige basierend auf Ihrer Navigation auf unserer Website und den Suchkriterien, die du verwendet hast.
Lage
Die Taborstraße zählt zu den stärksten und durchgehend frequentierten Geschäftsstraßen im 2. Bezirk.
Die Ecklage am Lassingleithnerplatz sorgt für maximale Sichtbarkeit und starke Laufkundschaft aus mehreren Richtungen.
Starkes Umfeld durch:
Laufkundschaft (Wohngebiet + Durchzugsachse)
Ecklage mit hoher...
Die Ladenfläche
Bezug
sofort
Erdgeschoss
Energie & Heizung
Warum sehe ich diese Anzeige? – Du siehst diese Anzeige basierend auf Ihrer Navigation auf unserer Website und den Suchkriterien, die du verwendet hast.
Heizwärmebedarf (HWB)
186,30 kWh/(m²·a)
Gesamtenergieeffizienz (fGEE)
1,63
Details
Objektbeschreibung
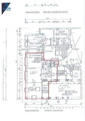
TOP + Attraktives Lokal in hochfrequenter Ecklage - große Glasfront, flexible Flächenstruktur & sofort beziehbar (keine Gastro)!
Zur Vermietung gelangt dieses großzügige Lokal mit ca. 178 m² Nutzfläche in markanter Ecklage auf der Taborstraße / Lassingleithnerplatz (1020 Wien).
Das Lokal verfügt über eine...
Preisinformation
Nettokaltmiete: 3.950,00 EUR
Weitere Informationen
Stichworte
Nutzfläche: 178,13 m², Anzahl der separaten WCs: 2, Bundesland: Wien
Anbieter der Immobilie
ALON Immobilien GmbH
Tuchlauben 8, 1010 WIEN
Online-ID: 2neeg5e
Referenznummer: OBGC202602051752038763082406b27
Finde Angebote wie dieses
Hier geht es zu unserem Impressum, den Allgemeinen Geschäftsbedingungen, den Hinweisen zum Datenschutz und nutzungsbasierter Online-Werbung.