Version: 8.25.1Navigation überspringen
Neuner Immobilien
495.000 €
4 Zimmer  •  92 m²  •  216 m² Grundstück

Reihenendhaus zum Kauf
495000 €
5.380 €/m²
4 Zimmer  •  92 m²  •  216 m² Grundstück

Neubau-Reiheneckhaus zur Fertigstellung

Das angebotene Reiheneckhaus wurde als Anbau an ein kleines Siedlungshaus konzipiert. Der Rohbau incl. Dach ist bereits fertiggestellt, der Ausbau kann nach eigenen Wünschen erfolgen. Geschäfte des täglichen Bedarfs befinden sich im Umkreis von ca. 700 m, zum Kindergarten sind es ca. 400 m, zur Schule ca. 1,3 km.

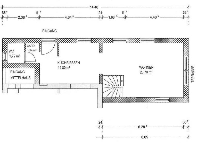
Das Haus verfügt im Erdgeschoß über einen großzügigen Eingangsbereich, der direkt in die offene Küche übergeht. Angrenzend befinden sich eine geräumige Garderobe sowie ein Gäste-WC. Das Wohnzimmer ist über zwei Fenster sowie zwei große Terrassentüren gut belichtet.

Über die offene Treppe gelangen Sie ins Obergeschoß. Hier besteht noch die Möglichkeit der freien Gestaltung mit zwei oder drei Zimmern sowie einem Bad.

Im Keller gibt es direkt unter dem Wohnzimmer einen großen Hobbyraum mit ca. 22 m² Nutzfläche. Neben einem Zwischenraum (z.B. Stellplatz für Waschmaschine und Trockner) gibt es einen großen Kellerraum.
An der Süd- und Ostseite wäre eine große Terrasse angedacht.

Im Keller des Reihenmittelhauses ist die Haustechnik für beide Häuser untergebracht. Hier befindet sich eine neu eingebaute Gasheizung (Flüssiggas mit Erdtank) inclusive Frischwasserspeicher, die durch eine Wärmepumpe ergänzt werden könnte sowie ein neuer Elektro-Zählerschrank. Die hier vorbereiteten Anschlüsse sind zur Nutzung für den Neubau vorgesehen. Der Zugang zum Raum erfolgt über eine Außentreppe.

Vor und neben dem Haus sind zwei KFZ-Stellplätze sowie Abstellflächen für Fahrräder vorgesehen.

Die künftige Grundstücksteilung erfolgt nach Wohnungseigentum, wobei darauf geachtet wird, daß nach Möglichkeit jeder Eigentümer frei in seinen Entscheidungen ist.

Achtung: Es besteht zusätzlich auch die Möglichkeit zum Erwerb des angrenzenden Reihenmittelhauses!

Merkmale

  • 216 m² Grundstück
  • 2 Stellplätze: 2 Außen-Stellplätze
  • Gäste-WC
  • Terrasse

Grundrisse

Grundrisse
1 / 3

Realisiere Dein Projekt

Bausubstanz und Energie

Energieausweis

C
  • Baujahr2026
  • HeizungsartZentralheizung
  • EnergieträgerGas
MediumRectangleTop

Preisdetails

Kaufpreis
495000 €
5.380,43 €/m²
Provision für Käufer
3,57 % incl. MwSt. aus notariellem Kaufpreis, zahlbar vom Käufer. Wir haben im Maklervertrag mit dem Verkäufer die Zahlung einer Provision in gleicher Höhe vereinbart.
Weitere Preisinformationen
2 Stellplätze
Geschätzte Gesamtkosten
539.896 €1
Kaufpreis
495.000 €
Notarkosten (1,5%)
7.425 €
Grunderwerbsteuer (3,5%)
17.325 €
Provision für Käufer (3,57%)
17.671 €
Grundbucheintrag (0,5%)
2.475 €
1Der angezeigte Wert ist eine automatisch berechnete Schätzung von immowelt.
2Bei den Angaben handelt es sich um ortsübliche Werte. Individuelle Kosten können abweichen.

Lage

address-icon
Bad Tölz (83646)
Der Anbieter hat die genaue Adresse nicht freigegeben
- Mehrere Einkaufsmöglichkeiten im Umkreis von ca. 700 m
- Kindergarten ca. 400 m
- Schule ca. 1,3 km
- Haltestelle Stadtbus ca. 150 m

Weitere Informationen

Sonstiges Energieausweis: Bedarfsausweis vom 10.03.2026
Endenergiebedarf: 99,9 kWh/(m²*a)
Energieeffizienzklasse: C
Baujahr Gebäude: ca. 2026; wesentlicher Energieträger: Flüssiggas

Weitere Services

Lust auf eine Besichtigung?
Eine Frage zur Immobilie?
Nachricht hinzufügen
Mit der Nutzung der oben angegebenen Telefonnummer oder durch Klicken auf „Kontaktieren“ akzeptierst Du die Allgemeinen Nutzungsbedingungen, denen Du jederzeit widersprechen kannst. Weitere Informationen zum Datenschutz

Über den Anbieter

Brauneckstr. 34, 83646 Bad Tölz
partner badge
Partnerschaft
Herr Andreas NeunerDein Kontakt
Online-ID: 26ZHULF3RM6W
Referenznummer: KH-260304-RE
Neuner Immobilien
Neuner Immobilien
Nachricht hinzufügen
Mit der Nutzung der oben angegebenen Telefonnummer oder durch Klicken auf „Kontaktieren“ akzeptierst Du die Allgemeinen Nutzungsbedingungen, denen Du jederzeit widersprechen kannst. Weitere Informationen zum Datenschutz
MediumRectangleTop
MediumRectangleBottom
MediumRectangleTop
Wie zufrieden bist du mit dieser Seite (nicht mit der Immobilie selbst)?