Version: 8.24.0Navigation überspringen
557 €
2 Zimmer  •  69,7 m²  •  2. Geschoss  •  frei ab sofort
Immowelt logo

Wohnung zur Miete
557 €
2 Zimmer  •  69,7 m²  •  2. Geschoss  •  frei ab sofort

Traumhafte 2-ZKB-Wohnung mit Blick auf den Yachthafen!

Objektbeschreibung Diese Wohnung befindet sich im 2. Stock eines gepflegten Mehrfamilienhauses in sehr zentraler Lage. Von hier aus genießen Sie einen herrlichen, unverbauten Ausblick auf den Yachthafen. Alle Einkaufsmöglichkeiten und die City sind bequem mit dem Rad oder zu Fuß erreichbar. Des Weiteren besteht eine sehr gute Anbindung an den öffentlichen Nahverkehr. Raumaufteilung Die gemütliche 2-ZKB-Wohnung wird gerade für Sie frisch saniert. Alle Wände werden tapeziert und weiß gestrichen und es werden hochwertige Vinylböden verlegt. Die Elektrik wird ebenfalls komplett erneuert. Die Räume sind gut geschnitten und bieten genügend Platz für Ihre Einrichtungswünsche.

Das Badezimmer wird mit nagelneuen Sanitärobjekten ausgestattet und der dazugehörige Abstellraum bietet zusätzlichen Stauraum.

Genießen Sie maritimes Flair direkt vor Ihrer Haustür.

Merkmale

  • Bezug: nach Vereinbarung
  • 2. Geschoss
  • Badezimmer: Bad mit Dusche, Bad mit Fenster
  • Bodenbelag: Fliesen, Kunststoff
  • Fenster: Kunststoff

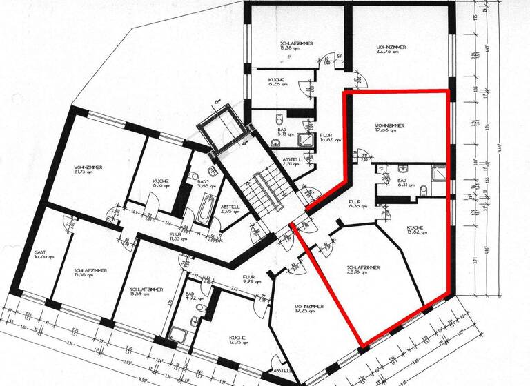
Grundrisse

Grundrisse
1 / 1

Realisiere Dein Projekt

Bausubstanz und Energie

Energieausweis

C
  • Baujahr1954
  • Zustand der Immobilierenoviert / saniert
  • HeizungsartEtagenheizung
  • EnergieträgerGas
Immowelt logo

Mietkosten

geschätzte Warmmiete
~768,64 €
Kaltmiete
8 €/m²
557,20 €
Nebenkosten
100 €
Zusätzliche Kosten
Heizkosten
Kaution
3 Monatskaltmieten = 1.671,60 Euro

Lage

address-icon
Kaistraße 7GeestemündeBremerhaven (27570)

Weitere Informationen

Kaution Die Kaution i. H. von 3 Nettokaltmieten kann als Überweisung oder Bankbürgschaft bzw. Kautionsversicherung hinterlegt werden.

Sonstiges Für die Gas- und Stromversorgung schließt der Mieter einen entsprechenden Vertrag direkt mit dem Versorger ab! Besichtigungen Haben wir Sie neugierig gemacht? Dann vereinbaren Sie schnell einen Besichtigungstermin mit unserem Hause.

Weitere Services

Lust auf eine Besichtigung?
Eine Frage zur Immobilie?
Nachricht hinzufügen
Mit der Nutzung der oben angegebenen Telefonnummer oder durch Klicken auf „Kontaktieren“ akzeptierst Du die Allgemeinen Nutzungsbedingungen, denen Du jederzeit widersprechen kannst. Weitere Informationen zum Datenschutz

Über den Anbieter

Daun + Cie. AGMaklerbüro
Bahnhofstraße 21, 26180 Rastede
partner badgepartner badge
Partnerschaft + Diamond Partner
Frau Nadine GellischDein Kontakt

Weitere Unterlagen

Online-ID: 2n8xv5k
Referenznummer: 004_2OGMR
Daun + Cie. AG
Bewertung: 4,3 von 5 Sternen
Nachricht hinzufügen
Mit der Nutzung der oben angegebenen Telefonnummer oder durch Klicken auf „Kontaktieren“ akzeptierst Du die Allgemeinen Nutzungsbedingungen, denen Du jederzeit widersprechen kannst. Weitere Informationen zum Datenschutz
Wie zufrieden bist du mit dieser Seite (nicht mit der Immobilie selbst)?