Version: 8.24.0Navigation überspringen
8,90 €
497 m² Bürofläche  •  teilbar ab 497 m²
Immowelt logo

Bürofläche zur Miete • provisionsfrei
8,90 €
/m²
497 m² Bürofläche  •  teilbar ab 497 m²

Ihr neues Büro in verkehrsgünstiger Lage | klimatisiert | viele Stellplätze | Lagerfläche

Die angebotene Immobilie wurde zuletzt im Jahr 2020 modernisiert und umfasst eine attraktive Kombination aus Büro- und Lagerflächen. Neben einer Fußbodenheizung verfügen die Flächen über eine Teilklimatisierung und können über einen Personenaufzug barrierefrei erschlossen werden. Ferner stehen umfangreiche Parkmöglichkeiten auf dem Grundstück zur Verfügung.

Derzeit stehen folgende Flächen zur Disposition:

EG: 497 m²
1. OG: 497 m²
Lager: 63 m²

Merkmale

  • Bezug: sofort
  • Personenaufzug
  • 53 Stellplätze: Außen-Stellplatz
  • Barrierefrei
  • Raumaufteilung flexibel
  • teilweise klimatisiert
  • Bodenbelag: Fliesen, Teppich
. Bodenbelag: Teppich-, Fliesenboden
. Fußbodenheizung
. teilw. klimatisiert
. Teeküche: vom Vormieter
. Beleuchtung: Deckenstrahler
. Sonnenschutz: elektrisch, außenliegend
. letzte Modernisierung: 2020
. Verkabelungsort: Kabelkanäle
. Personenaufzug
. barrierefrei

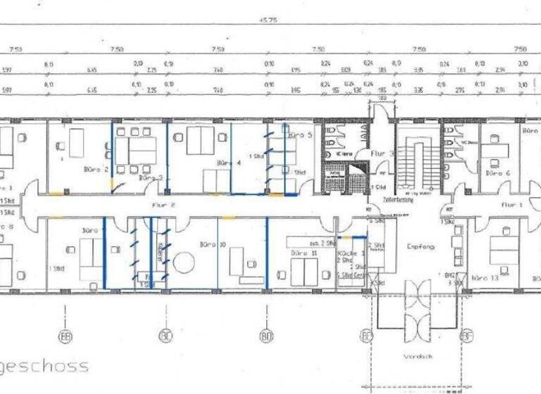
Grundrisse

Grundrisse
1 / 2

Realisiere Dein Projekt

Bausubstanz und Energie

Der Anbieter hat keine Informationen zum Energieverbrauch bereit gestellt.
  • Baujahr1995/2020
Immowelt logo

Mietkosten

Nettomiete zzgl. Nebenkosten
8,90 €/m²
8,90 €
Zusätzliche Kosten
Heizkosten
Provision für Mieter
provisionsfrei
Kaution
keine Angabe
Weitere Preisinformationen
Nettokaltmiete: 8,90 EUR

Lage

address-icon
NeumühlDuisburg (47167)
Der Anbieter hat die genaue Adresse nicht freigegeben
Die Immobilie ist im Duisburger Norden situiert und befindet sich in unmittelbarer Nähe zum Autobahnkreuz Oberhausen-West, wodurch die A 3 und A 42 innerhalb kürzester Zeit erreicht werden können und einen hervorragenden Anschluss an das Autobahnnetz herstellen. Haltestellen des ÖPNV können fußläufig erschlossen werden und der nächste Bahnhof liegt 5 Fahrminuten entfernt. Darüber hinaus ermöglichen Geschäfte des täglichen Bedarfs eine gute Nahversorgung in der von hoher Unternehmensdichte geprägten Büromarktzone.

Weitere Informationen

Sonstiges Es gelten ausschließlich unsere AGB (www.ruhr-real.de/agb). Wir möchten Sie darauf hinweisen, dass die Angaben ausschließlich auf den uns vom Eigentümer übermittelten Unterlagen und Informationen basieren. Für Richtigkeit und Vollständigkeit übernehmen wir keine Gewähr. Zwischenvermietung vorbehalten. Stichworte Sonstiges: EDV-Verkabelung, frei werdend

Weitere Services

Lust auf eine Besichtigung?
Eine Frage zur Immobilie?
Nachricht hinzufügen
Mit der Nutzung der oben angegebenen Telefonnummer oder durch Klicken auf „Kontaktieren“ akzeptierst Du die Allgemeinen Nutzungsbedingungen, denen Du jederzeit widersprechen kannst. Weitere Informationen zum Datenschutz

Über den Anbieter

RUHR REAL GmbH
RUHR REAL GmbHMaklerbüro
Holsterhauser Platz 2, 45147 Essen
partner badge
6 Jahre Partnerschaft
Herr Jonas BruckmannDein Kontakt
Online-ID: 2dqlc5h
Referenznummer: 3248/E2
RUHR REAL GmbH
RUHR REAL GmbH
Nachricht hinzufügen
Mit der Nutzung der oben angegebenen Telefonnummer oder durch Klicken auf „Kontaktieren“ akzeptierst Du die Allgemeinen Nutzungsbedingungen, denen Du jederzeit widersprechen kannst. Weitere Informationen zum Datenschutz
Wie zufrieden bist du mit dieser Seite (nicht mit der Immobilie selbst)?