Version: 8.22.5Navigation überspringen
14,71 €
3 Zimmer
Immowelt logo

Ladenfläche zur Miete
14,71 Euro pro Quadratmeter
3 Zimmer

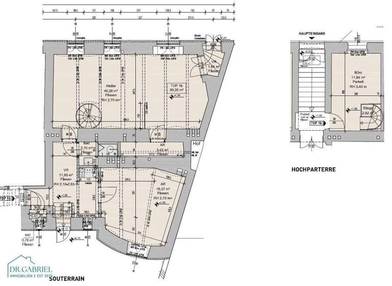
GESCHÄFTSLOKAL IM SOUTERRAIN

Zur befristeten Vermietung gelangt eine komplett renovierte Geschäftsfläche im Souterrain eines schönen Hauses auf der Hietzinger Hauptstraße. Der Zugang erfolgt direkt über die Straße, es gibt zwei weitere Zugänge über das Stiegenhaus. 

RAUMAUFTEILUNG: 

großer Raum (rd. 40 m²) , Raum mit Kitchenette, weiterer Raum mit rd. 20m², Duschbad, WC, Abstellraum - über eine hübsche Wendeltreppe gelangt man in ein Büro im Hochparterre (rd. 12 m²)

Insgesamt verfügt das Geschäftslokal über 4 Zugänge (Straße, Stiegenhaus, Innenhof).

weitere Objekte finden Sie auf unserer Homepage: www.gabriel.at

Wir weisen darauf hin, dass zwischen dem Vermittler und dem zu vermittelnden Dritten ein familiäres oder wirtschaftliches Naheverhältnis besteht.

Der Vermittler ist als Doppelmakler tätig.

Infrastruktur / Entfernungen

Gesundheit
Arzt <500m
Apotheke <500m
Klinik <1.500m
Krankenhaus <2.000m

Kinder & Schulen
Schule <500m
Kindergarten <500m
Universität <1.500m
Höhere Schule <3.500m

Nahversorgung
Supermarkt <500m
Bäckerei <500m
Einkaufszentrum <3.000m

Sonstige
Geldautomat <500m
Bank <500m
Post <500m
Polizei <1.000m

Verkehr
Bus <500m
U-Bahn <500m
Straßenbahn <500m
Bahnhof <500m
Autobahnanschluss <4.500m

Angaben Entfernung Luftlinie / Quelle: OpenStreetMap

Merkmale

  • frei ab sofort
  • Kochnische
  • Gäste-WC

Grundrisse

Grundrisse
1 / 1

Realisiere Dein Projekt

Bausubstanz und Energie

Heizwärmebedarf (HWB)

E

Gesamtenergieeffizienz (fGEE)

D
  • Zustand der ImmobilieAltbau (bis 1945)
Immowelt logo

Mietkosten

Nettokaltmiete
14,71 €/m²
1.364,27 €
Betriebskosten
260,73 €
Provision für Mieter
3 Bruttomonatsmieten zzgl. 20% USt.
Kaution
3 Bruttomonatsmieten
Weitere Preisinformationen
Nettokaltmiete: 1.364,27 EUR

Lage

address-icon
Wien,Hietzing (1130)

Weitere Informationen

Stichworte Nutzfläche: 92,76 m², Anzahl der Badezimmer: 1, Anzahl der separaten WCs: 1, Bundesland: Wien

Weitere Services

Lust auf eine Besichtigung?
Eine Frage zur Immobilie?
Nachricht hinzufügen
Mit der Nutzung der oben angegebenen Telefonnummer oder durch Klicken auf „Kontaktieren“ akzeptierst Du die Allgemeinen Nutzungsbedingungen, denen Du jederzeit widersprechen kannst. Weitere Informationen zum Datenschutz

Über den Anbieter

Am Graben 29 a, 1010 WIEN
partner badge
Partnerschaft
Frau Laetitia Gabriel-HermannDein Kontakt
Online-ID: 2lq5f5v
Referenznummer: OBGC20250611180459016acb5a5169f
Dr. Alexandra Gabriel Realitätenvermittlungs GmbH
Dr. Alexandra Gabriel Realitätenvermittlungs GmbH
Nachricht hinzufügen
Mit der Nutzung der oben angegebenen Telefonnummer oder durch Klicken auf „Kontaktieren“ akzeptierst Du die Allgemeinen Nutzungsbedingungen, denen Du jederzeit widersprechen kannst. Weitere Informationen zum Datenschutz
Wie zufrieden bist du mit dieser Seite (nicht mit der Immobilie selbst)?