Version: 8.24.1Navigation ĂĽberspringen
171.000 €
245,8 m²
Immowelt logo

Sonstiges zum Kauf • als Kapitalanlage geeignet
171000 €
696 €/m²
245,8 m²

Anlegerhit: Vermietetes Geschäftslokal in Obervellach zu verkaufen.

Das knapp 246 m² große Geschäftslokal befindet sich in der 1. Geschäftsebene eines Mehrparteienhauses in zentraler Lage direkt am Hauptplatz in Obervellach.

Ausreichend Parkmöglichkeiten befinden sich direkt vor dem Gebäude.

Die Stadt Spittal/Drau liegt 29 km entfernt, die Stadt Lienz erreichen Sie in 47 km.

 

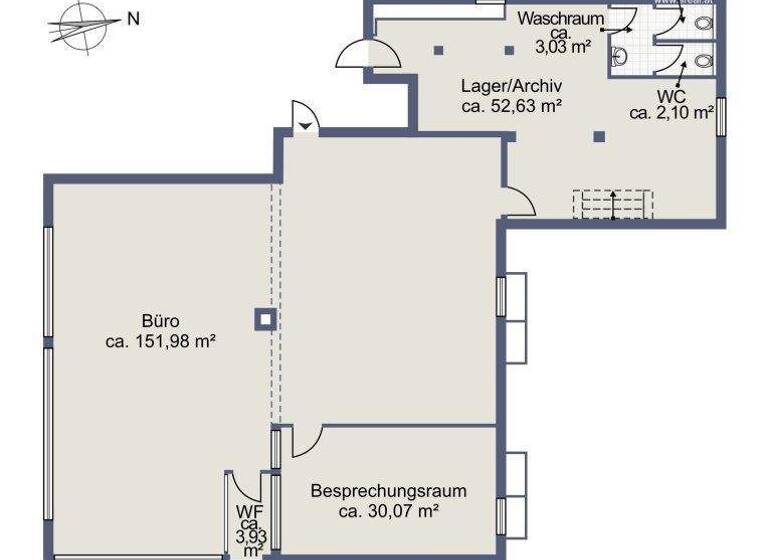
Das Geschäftslokal teilt sich wie folgt auf:

* Windfang: 3,93 m²
* Besprechungsraum: 30,07 m²
* Büro: 151,98 m²
* Lager/Archiv: 52,63 m²
* Waschraum: 3,03 m²
* WC1: 2,10 m² 
* WC2: 2,10 m²

Gesamtfläche: 245,84 m² 

Das Geschäftslokal ist derzeit vermietet.

 

Ein Energieausweis ist aktuell in Ausarbeitung und wird nachgereicht.

 

 

Haben wir Ihr Interesse geweckt?

Für ein detailliertes Exposé, Besichtigungstermine und weitere Informationen bin ich gerne für Sie da.

Ihr Ansprechpartner: Martin Podesser
Telefon: +43 664 6279299

 

Das s REAL ist Teil des Sparkassen/Erste Bank Sektors.
Gerne stellen wir zur Abwicklung der Wohnraumfinanzierung einen Kontakt zu unseren Finanzierungsspezialisten her.
Fragen Sie uns danach - wir helfen gerne weiter!

Wir weisen darauf hin, dass zwischen dem Vermittler und dem zu vermittelnden Dritten ein familiäres oder wirtschaftliches Naheverhältnis besteht.

Infrastruktur / Entfernungen

Gesundheit
Arzt <500m
Apotheke <500m

Kinder & Schulen
Schule <500m
Kindergarten <6.500m

Nahversorgung
Supermarkt <1.000m
Bäckerei <500m

Sonstige
Geldautomat <500m
Bank <500m
Post <500m
Polizei <500m

Verkehr
Bus <500m
Bahnhof <3.000m

Angaben Entfernung Luftlinie / Quelle: OpenStreetMap

Merkmale

  • Bezug: Derzeit vermietet
  • 1 Geschoss
  • Personenaufzug
  • voll erschlossen

Grundrisse

Grundrisse
1 / 1

Realisiere Dein Projekt

Bausubstanz und Energie

Der Anbieter hat keine Informationen zum Energieverbrauch bereit gestellt.
  • Baujahr1971
  • Zustand der ImmobilieMassivhaus
  • EnergieträgerFernwärme
Immowelt logo

Preisdetails

Kaufpreis
171000 €
695,57 €/m²
Provision für Käufer
3% des Kaufpreises zzgl. 20% USt.

Lage

address-icon
Obervellach (9821)
Das Gebäude befindet sich in zentraler Lage direkt am Hauptplatz von Obervellach.

Weitere Informationen

Stichworte Nutzfläche: 245,84 m², Anzahl der separaten WCs: 2, Bundesland: Kärnten

Weitere Services

Lust auf eine Besichtigung?
Eine Frage zur Immobilie?
Nachricht hinzufĂĽgen
Mit der Nutzung der oben angegebenen Telefonnummer oder durch Klicken auf „Kontaktieren“ akzeptierst Du die Allgemeinen Nutzungsbedingungen, denen Du jederzeit widersprechen kannst. Weitere Informationen zum Datenschutz

Ăśber den Anbieter

Neuer Platz 14, 9020 KLAGENFURT
Herr Martin PodesserDein Kontakt
Online-ID: 2ns2h5u
Referenznummer: OBGC2026012115502537630690b783e
Sparkassen-Real-Service für Kärnten und Realitätenvermittlungs-Gesellschaft m.b.H.
Nachricht hinzufĂĽgen
Mit der Nutzung der oben angegebenen Telefonnummer oder durch Klicken auf „Kontaktieren“ akzeptierst Du die Allgemeinen Nutzungsbedingungen, denen Du jederzeit widersprechen kannst. Weitere Informationen zum Datenschutz
Wie zufrieden bist du mit dieser Seite (nicht mit der Immobilie selbst)?