Version: 8.25.1Navigation überspringen
Winegg Makler GmbH
590.000 €
3 Zimmer  •  78,5 m²

Wohnung zum Kauf
590000 €
7.513 €/m²
3 Zimmer  •  78,5 m²

Möglichkeit zur Zusammenlegung im Altbau mit Eigengarten! Zwischen Rochusmarkt und Kardinal Nagl- Platz!

WOHNUNGSBESCHREIBUNG TOP 6+7

Zum Verkauf stehen zwei nebeneinanderliegende Gartenwohnungen mit einem durchdachten Grundriss und vielseitigen Nutzungsmöglichkeiten. Ob als großzügiges Eigenheim durch Zusammenlegung oder als separate Einheiten für Mehrgenerationenwohnen.

Beide Wohnungen befinden sich im Erdgeschoss, jede Einheit verfügt über einen direkten Ausgang ins Freie sowie über einen eigenen Gartenbereich, der zum Verweilen und Gestalten einlädt (Welche man auch Verbinden könnte).

Die Grundrisse beider Wohnungen sind optimal aufgeteilt und bieten genügend Raum zur individuellen Entfaltung. Durch ihre unmittelbare Lage zueinander eignet sich die Immobilie ideal zur baulichen Verbindung - sei es für ein großzügiges Wohnkonzept oder das Leben unter einem Dach mit mehreren Generationen.

Die Einheiten gliedern sich wie folgt auf:

TOP 6 im Hochparterre verfügt über ein Zimmer und eine Wohnfläche im Ausmaß von ca. 33 qm. Die charmante Gartenwohnung ist mit folgenden Räumlichkeiten ausgestattet:

*  der Vorraum 
*  die in den Garten blickende Wohnküche/Schlafraum mit voll ausgestatteter Einbauküche
* das Badezimmer mit Wanne und Waschmaschinenanschluss 
* Das separate WC
* Der begrünte Garten welcher zum Stunden langen verweilen einlädt 

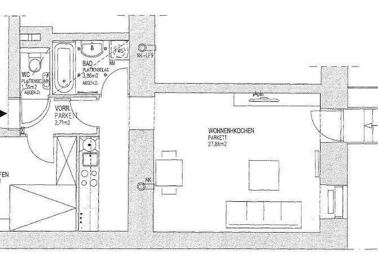
TOP 7 im Hochparterre verfügt über zwei Zimmer und eine Wohnfläche im Ausmaß von ca. 46 qm. Die ins Grün blickende Gartenwohnung ist mit folgenden Räumlichkeiten ausgestattet:

* der Vorraum (ca. 2,7 qm), über welchen alle Zimmer zentral zu begehen sind
* die in den Garten blickende Wohnküche (ca. 27,9 qm) mit voll ausgestatteter Einbauküche und Blick in den grünen Innenhof
* das ruhige, ebenfalls in einen Innenhof orientierte Schlafzimmer (ca. 10 qm)
* das Badezimmer mit Wanne, WC und Waschmaschinenanschluss (ca. 3,9 qm)
* das separate WC
* Der begrünte Garten welcher zum Stunden langen verweilen einlädt (ca. 29 qm)

Die Wohneinheit wird mit Fernwärme beheizt und ist mit Holzkastenfenstern und Parkettböden ausgestattet. Insgesamt befindet sich das Objekt einem guten, sofort bezugsfertigem Gesamtzustand!

Dieses Objekt wird Ihnen unverbindlich und freibleibend zum Kauf angeboten. Als Vermittlungshonorar gelten die allgemeinen Geschäftsbedingungen und die Verordnung für Immobilienmakler des BM für Handel, Gewerbe und Industrie, BGBL. 297/1996. Für den Fall, dass es diesbezüglich zu einem entsprechenden Rechtsgeschäft kommt, verrechnen wir Ihnen eine Vermittlungsprovision von 3 Prozent der Kaufsumme zuzüglich der gesetzlichen Mehrwertsteuer. Wir möchten noch darauf hinweisen, dass wir in einem wirtschaftlichen Naheverhältnis zur Verkäuferin stehen.

 

Wir weisen darauf hin, dass zwischen dem Vermittler und dem zu vermittelnden Dritten ein familiäres oder wirtschaftliches Naheverhältnis besteht.

Der Vermittler ist als Doppelmakler tätig.

Infrastruktur / Entfernungen

Gesundheit
Arzt <200m
Apotheke <200m
Klinik <75m
Krankenhaus <275m

Kinder & Schulen
Schule <175m
Kindergarten <150m
Universität <950m
Höhere Schule <425m

Nahversorgung
Supermarkt <75m
Bäckerei <75m
Einkaufszentrum <375m

Sonstige
Geldautomat <100m
Bank <100m
Post <100m
Polizei <350m

Verkehr
Bus <75m
U-Bahn <25m
Straßenbahn <600m
Bahnhof <50m
Autobahnanschluss <975m

Angaben Entfernung Luftlinie / Quelle: OpenStreetMap

Merkmale

  • Einbauküche
  • Personenaufzug
  • Badewanne
  • Waschraum
  • Bodenbelag: Fliesen, Parkett
  • voll erschlossen

Grundrisse

Grundrisse
1 / 2

Realisiere Dein Projekt

Bausubstanz und Energie

Heizwärmebedarf (HWB)

D

Gesamtenergieeffizienz (fGEE)

D
  • Baujahr1911
  • Zustand der ImmobilieAltbau (bis 1945), Massivhaus, Gepflegt
  • EnergieträgerFernwärme
MediumRectangleTop

Preisdetails

Kaufpreis
590000 €
7.513,05 €/m²
Provision für Käufer
3% des Kaufpreises zzgl. 20% USt.

Lage

address-icon
Hainburger Straße 47Wien (1030)
Die wunderschön begrünte Allee "Hainburger Straße", eingebettet zwischen Rochusmarkt und Kardinal Nagl-Platz, ist ausgesprochen beliebt: Hier erreichen Sie sowohl die Wiener Innenstadt, den Bahnhof Wien-Mitte mit dem schicken Einkaufszentrum "The Mall", als auch für alle Sportlichen die grüne Lunge Wiens, den Prater, in nur wenigen Gehminuten.

Mit den Fernverbindungen sind Flughafen und Autobahn schnell zu erreichen. Bequem bringt Sie der City Airport Train in 16 Min. vom Verkehrsknoten Wien-Mitte zum Flughafen Wien. Sie erreichen fußläufig die Geschäfte des täglichen Bedarfs in der Landstraßer Hauptstraße. Mit der U3 - nur 80m vom Haus entfernt - ist man in 5 Minuten am Stephansplatz oder mit dem PKW in 5 Minuten auf der Autobahn. Auch die gastronomische Kurve ist im Steigen begriffen, zahlreiche neue Lokale haben aufgesperrt und eines der besten Fischlokale Wiens befindet sich gleich um die Ecke!  

Der dritte Bezirk gilt generell als einer der ruhigeren und sicheren Bezirke in Wien. Der gesamte Bereich Hainburger Straße/Keinergasse ist eine verkehrsberuhigte Zone, es besteht daher kein Durchzugsverkehr - lediglich Anrainer-Parken. Man befindet sich für Großstadtverhältnisse nahezu in einer "Ruheoase".

Weitere Informationen

Stichworte Anzahl der Badezimmer: 2, Anzahl der separaten WCs: 2, Gartenfläche: 57,00 m², Bundesland: Wien, 6 Etagen, Wohnungsnr.: 6+7, modernisiert: 2023 Sonstiges/Wohnen: seniorengerechtes Wohnen

Weitere Services

Lust auf eine Besichtigung?
Eine Frage zur Immobilie?
Nachricht hinzufügen
Mit der Nutzung der oben angegebenen Telefonnummer oder durch Klicken auf „Kontaktieren“ akzeptierst Du die Allgemeinen Nutzungsbedingungen, denen Du jederzeit widersprechen kannst. Weitere Informationen zum Datenschutz

Über den Anbieter

Herrengasse 1-3 / 4. Stockwerk, 1010 WIEN
Herr Patrick Winkler
Herr Patrick WinklerDein Kontakt
Online-ID: 25T8LZ92EVRY
Referenznummer: OBGC202603041309319097e80c53a76
Winegg Makler GmbH
title
Winegg Makler GmbH
Nachricht hinzufügen
Mit der Nutzung der oben angegebenen Telefonnummer oder durch Klicken auf „Kontaktieren“ akzeptierst Du die Allgemeinen Nutzungsbedingungen, denen Du jederzeit widersprechen kannst. Weitere Informationen zum Datenschutz
MediumRectangleTop
MediumRectangleBottom
MediumRectangleTop
Wie zufrieden bist du mit dieser Seite (nicht mit der Immobilie selbst)?