Prachtvolle villaam Gardasee in Torri del benaco
Objektbeschreibung
Gesammt Wohn und Nutzflaeche ca: 538 m²
Freistehende Villa ,in Torri del Benaco / Ortsteil Albisano
Preis 1.470.000,oo € +Kauf Nebenkosten
5+ Zimmer
538 m²
3+ Badezimmer
Luxus
Kein Aufzug
Balkon
Anzeige aktualisiert am 07.05.2025
Beschreibung
Wunderschöne freistehende Villa mit großem Keller
Albisano, Torri del Benaco (VR)
In ruhiger, verkehrsberuhigter Lage bieten wir eine freistehende Villa mit hochwertiger Ausstattung und einem Keller von ca. 400 m² an.
Die Villa erstreckt sich über zwei Ebenen. Im Erdgeschoss befinden sich ein großer Wohnbereich, eine Wohnküche, ein Arbeitszimmer und ein Badezimmer. Im ersten Stock befinden sich ein Badezimmer mit Fenster und drei Doppelzimmer, eines davon mit eigenem Bad.
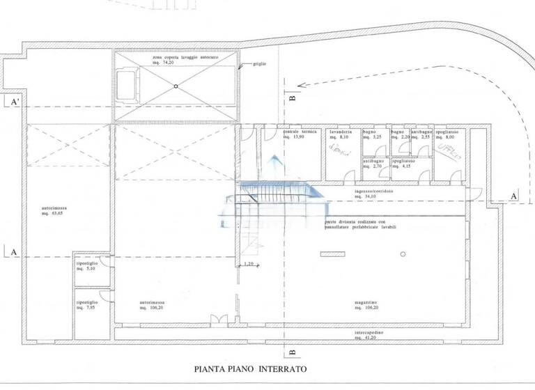
Der 4 m hohe Keller wird derzeit als Lebensmittellabor mit zwei Kühlräumen genutzt und kann auch als Lager genutzt werden.
Die Immobilie ist mit modernen und umfassenden Anlagen ausgestattet, darunter Solaranlagen, Wasserenthärter, Klimaanlage, Holzofen, Videoüberwachung und Alarmanlage.
Preis: 1.470.000 + Kauf Nebenkosten ( Kausteuer- Notar –Makler Courtage 3.5%)
ACHTUNG: Obwohl mit größter Sorgfalt auf die Richtigkeit und Genauigkeit der Inhalte dieser Präsentation zum Zeitpunkt der Veröffentlichung geachtet wurde, hat diese keinen vertraglichen Wert.
Raumaufteilung
Ausstattung
Typ
Freistehende Villa | Gesamtes Objekt | Mittlere Immobilienklasse
Vertrag
Verkauf
Etage
Untergeschoss (-1), Erdgeschoss, 1
Gebäudegeschosse
Aufzug
Nein
Grundfläche
538 m²
Zimmer
5+
Schlafzimmer
4
Küche
Kochnische
3Badezimmer
Teilmöbliert
Balkon
Ja
Terrasse
Ja
Garage, Stellplätze
2 in privater Garage/Garage, 10 in gemeinsamer Garage/Garage
Heizung
Fußbodenheizung, solarbetrieben
Klimaanlage
Unabhängig, kalt/warm
Weitere Ausstattungsmerkmale
Einbauschrank
Kamin
Doppelverglasung
Glasfaser
Alarmanlage
Doppelverglasung / Holzrahmen
Dachgeschoss
Sicherheitstür
Terrasse
Elektrisches Tor
TV-Anlage mit Satellitenschüssel
Video-Gegensprechanlage
Grundflächendetails
Etage
Erdgeschoss
Fläche
126,5 m²
Koeffizient
100 %
Flächentyp
Haupt
Gewerbefläche
126,0 m²
Wohnfläche
Erste Etage
1
Fläche
86,0 m²
Koeffizient
100 %
Flächentyp
Haupt
Gewerbefläche
86,0 m²
Terrasse
Etage
Erdgeschoss
Fläche
14,5 m²
Koeffizient
30 %
Flächentyp
Haupt
Gewerbefläche
4,0 m²
Terrasse
Erste Etage
Fläche
24,2 m²
Koeffizient
30 %
Flächentyp
Haupt
Gewerbefläche
7,0 m²
Garage
Etage
Untergeschoss
Keller (-1)
Fläche
400,0 m²
Koeffizient
50 %
Fläche Typ
Hauptgebäude
Gewerbefläche
210,0 m²
Erdgeschoss
Obergeschoss
Erdgeschoss
Grundfläche
1.035,0 m²
Koeffizient
10 %
Flächentyp
Hauptgebäude
Gewerbefläche
103,0 m²