Version: 8.22.6Navigation überspringen
VÖLK Hausverwaltung GmbH - Maklerservice
334.000 €
3 Zimmer  •  73,5 m²

Wohnung zum Kauf - Erstbezug • provisionsfrei
334000 €
4.547 €/m²
3 Zimmer  •  73,5 m²

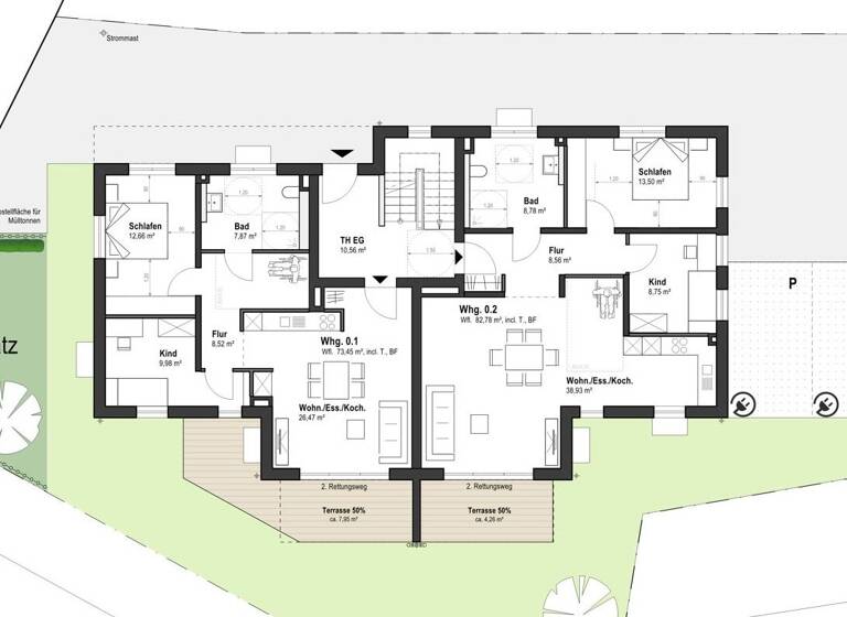
*Neubau* Moderne 3-Zimmer Erdgeschosswohnung mit Terrasse und Gartenparzelle - Whg. 0.1

Diese stilvolle 3-Zimmer-Neubauwohnung bietet auf großzügigen 73,45 m² modernen Wohnkomfort. Der offene Wohn- und Essbereich bildet das Herzstück der Wohnung und sorgt für ein helles, freundliches Ambiente. Große Fensterfronten eröffnen den Raum und ermöglichen einen direkten Zugang zur gemütlichen Terrasse - ideal für entspannte Stunden im Freien.

Das geräumige Badezimmer ist mit einer bodenebenen Dusche ausgestattet. Das Schlafzimmer bietet ausreichend Platz für ein großes Bett und einen Kleiderschrank, während das zusätzliche Zimmer flexibel als Kinderzimmer, Arbeitszimmer oder Homeoffice genutzt werden kann.

Ein Außenstellplatz für EUR 8.000,00 rundet das Angebot ab und sorgt für bequemen Zugang zum eigenen Fahrzeug. Die Wohnung überzeugt durch eine durchdachte Raumaufteilung in einem modernen Neubau.

Merkmale

  • Außen-Stellplatz
  • Garten
  • Terrasse
  • Badezimmer: Bad mit Dusche, Bad mit Fenster
  • Bodenbelag: Fliesen, Parkett
Individuelle Ausstattungsmerkmale:

- Fahrradraum
- Wasch- und Trockenraum

- Gartenparzelle mit Strom und Wasseranschluss
- Bodentiefe Fenster mit 2-fach-Verglasung
- Elektrische Rollladen und Jalousien
- Geflieste ebenerdige Dusche mit Ablaufrinne
- Fußbodenheizung mit Einzelraumsteuerung

Grundrisse

Grundrisse
1 / 1

Realisiere Dein Projekt

Bausubstanz und Energie

Energieausweis

Ein Energieausweis ist für diesen Gebäudetyp nicht notwendig.
  • Zustand der ImmobilieNeubau, Massivhaus, Erstbezug
  • HaustypKfW 55
  • HeizungsartFußbodenheizung
  • EnergieträgerLuft-/Wasser-Wärmepumpe
MediumRectangleTop

Preisdetails

Kaufpreis
334000 €
4.547,31 €/m²
Preis pro Stellplatz
8000 €
Provision für Käufer
provisionsfrei; prov.frei
Weitere Preisinformationen
1 Stellplatz, Kaufpreis: 8.000,00 EUR
Geschätzte Gesamtkosten
357.380 €1
Kaufpreis
334.000 €
Notarkosten (1,5%)
5.010 €
Grunderwerbsteuer (5%)
16.700 €
Grundbucheintrag (0,5%)
1.670 €
1Der angezeigte Wert ist eine automatisch berechnete Schätzung von immowelt.
2Bei den Angaben handelt es sich um ortsübliche Werte. Individuelle Kosten können abweichen.

Lage

address-icon
BühlBurgrieden (88483)
Der Anbieter hat die genaue Adresse nicht freigegeben
Die Dorfstraße 30/1 in Bühl befindet sich in einer idyllischen und ruhigen Lage in der Gemeinde Burgrieden. Diese ländlich geprägte Gemeinde bietet ein entspanntes Wohnumfeld mit guter Anbindung an umliegende Städte. Die Verkehrsanbindung ist vor allem durch die Nähe zur B30 sehr gut. Diese Bundesstraße bietet eine direkte Verbindung zu Laupheim und weiter in Richtung Ulm oder Biberach. Zudem gibt es regelmäßige Busverbindungen in die umliegenden Gemeinden. Im 5 Minuten entfernten Burgrieden gibt es kleinere Geschäfte des täglichen Bedarfs, wie einen Supermarkt und Bäckereien. Laupheim bietet als mittelgroße Stadt dagegen eine Vielzahl an Einkaufsmöglichkeiten. Bühl zeichnet sich durch eine ländliche Umgebung aus, die Ruhe und Naturverbundenheit bietet. Der Ort ist umgeben von Feldern, Wiesen und Wäldern, die ideale Bedingungen für Spaziergänge und Freizeitaktivitäten im Freien bieten. In Burgrieden gibt es eine Grundschule, die eine gute Grundlage für die Bildung der jüngeren Generation bietet. Im nur 10 Minuten entfernten Laupheim finden sich umfassende Bildungsangebote. Die Stadt bietet verschiedene Grundschulen sowie weiterführende Schulen. Auch Berufsschulen und Bildungseinrichtungen für Erwachsene sind in Laupheim vorhanden. Für die jüngeren Kinder gibt es zudem mehrere Kindergärten. Insgesamt bietet Bühl eine attraktive Mischung aus ruhigem, ländlichem Wohnen und gleichzeitig guter Anbindung an größere Städte wie Laupheim und Ulm. Die Umgebung ist naturnah, während die Verkehrsanbindungen, Einkaufsmöglichkeiten und Bildungseinrichtungen dennoch schnell erreichbar sind. Ideal für Familien und Berufspendler, die die Vorzüge einer ländlichen Umgebung mit der Nähe zu städtischen Annehmlichkeiten kombinieren möchten.

Weitere Informationen

Sonstiges Interessant für Pferdebesitzer: Im Ort besteht die Möglichkeit einen Offenstall für 3 Pferde mit Weidegang zu erwerben.
Informationen:

1. Nehmen Sie über das Kontaktformular mit uns Kontakt auf. Haben wir Ihre Kontaktdaten melden wir uns bei Ihnen, um einen Besichtigungstermin zu vereinbaren 2. Alle Angaben im Exposé sind nach bestem Wissen und Gewissen. Die VÖLK Hausverwaltung GmbH kann keine Gewährleistung für die Richtigkeit und Vollständigkeit der Angaben übernehmen 3. Maklerleistung ist der Nachweis der Gelegenheit zum Abschluss eines Vertrages bzw. Vermittlung eines Vertrages über eine Immobilie gegen die Courtagezahlungspflicht des Kunden 4. Es besteht ein Widerrufsrecht 5. Info: www.voelk-ulm.de

Verbraucherinformationen - https://www.voelk-ulm.de/verbraucherinformationen Stichworte Stellplatz vorhanden, Anzahl der Schlafzimmer: 2, Anzahl der Badezimmer: 1, Anzahl Terrassen: 1, Bundesland: Baden-Württemberg, 3 Etagen

Weitere Services

Lust auf eine Besichtigung?
Eine Frage zur Immobilie?
Nachricht hinzufügen
Mit der Nutzung der oben angegebenen Telefonnummer oder durch Klicken auf „Kontaktieren“ akzeptierst Du die Allgemeinen Nutzungsbedingungen, denen Du jederzeit widersprechen kannst. Weitere Informationen zum Datenschutz

Über den Anbieter

Grimmelfinger Weg 14, 89077 Ulm
partner badge
6 Jahre Partnerschaft
Frau Isabell Marx
Frau Isabell MarxDein Kontakt
Online-ID: 2hxbp5r
Referenznummer: 00128
VÖLK Hausverwaltung GmbH - Maklerservice
title
VÖLK Hausverwaltung GmbH - Maklerservice
Bewertung: 4,3 von 5 Sternen
Nachricht hinzufügen
Mit der Nutzung der oben angegebenen Telefonnummer oder durch Klicken auf „Kontaktieren“ akzeptierst Du die Allgemeinen Nutzungsbedingungen, denen Du jederzeit widersprechen kannst. Weitere Informationen zum Datenschutz
MediumRectangleTop
MediumRectangleBottom
MediumRectangleTop
Wie zufrieden bist du mit dieser Seite (nicht mit der Immobilie selbst)?