Version: 8.26.0Navigation überspringen
3,70 €
243 m² Lagerfläche
Immowelt logo

Lagerhalle zur Miete
3,70 €
/m²
243 m² Lagerfläche

STUDIO, LAGER ODER DOCH WAS ANDERES? ENTSCHEIDEN SIE!

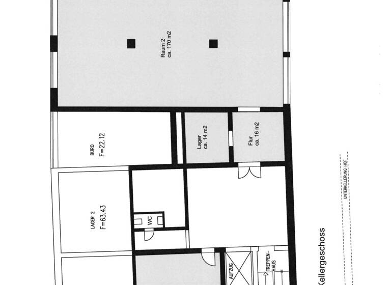
Auf ca. 243 m² Gesamtfläche erstreckt sich dieses Gewerbeangebot im Kellergeschoss der Alten Molkerei in Alsfeld. Hier steht Ihnen zwei Lagerräume und ein großes, ca 170 m² , Studio zur Ihrer freien Gestaltung zur Verfügung. Ein Gemeinschats-WC steht Ihnen hier ebenfalls zur Verfügung. Kontaktieren Sie uns einfach!

Merkmale

Die Räume werden mit einer Gaszentralheizung(2019) beheizt.

Grundrisse

Grundrisse
1 / 1

Bausubstanz und Energie

  • Baujahr1968
  • Zustand der ImmobilieGepflegt
  • HeizungsartZentralheizung
  • EnergieträgerGas
Immowelt logo

Mietkosten

Nettomiete
3,70 €/m²
900 €
Nebenkosten
200 €
Provision für Mieter
1,19MM inkl. MwSt.
Kaution
keine Angabe

Lage

address-icon
Alsfeld (36304)
Der Anbieter hat die genaue Adresse nicht freigegeben
Diese Räumlichkeiten befinden sich in guter, auffälliger Lage, direkt in Alsfeld. Der Stadtkern der schönen historischen Fachwerkstadt Alsfeld ist nur wenige Gehminuten entfernt. Einkaufsmöglichkeiten, Schulen und Kindergarten sind in unmittelbarer Nähe. Bahn- und Autobahn-Anschluss an die A 5 Frankfurt-Kassel, welcher zwei Fahrminuten entfernt ist, sind ebenso vorhanden. Weitere Informationen/Bilder erhalten Sie auf Anfrage oder unter www.msi-hessen.de

Weitere Informationen

Stichworte Nutzfläche: 243,00 m²

Weitere Services

Lust auf eine Besichtigung?
Eine Frage zur Immobilie?
Mit einer persönlichen Nachricht hast du bessere Chancen auf eine Antwort.
Mit der Nutzung der oben angegebenen Telefonnummer oder durch Klicken auf „Kontaktieren“ akzeptierst Du die Allgemeinen Nutzungsbedingungen, denen Du jederzeit widersprechen kannst. Weitere Informationen zum Datenschutz

Über den Anbieter

Schwabenröder Str. 7A, 36304 Alsfeld
partner badge
6 Jahre Partnerschaft
Herr Dominic RaschelDein Kontakt
Online-ID: 24L312E6LZ4G
Referenznummer: 3511
Wie zufrieden bist du mit dieser Seite (nicht mit der Immobilie selbst)?