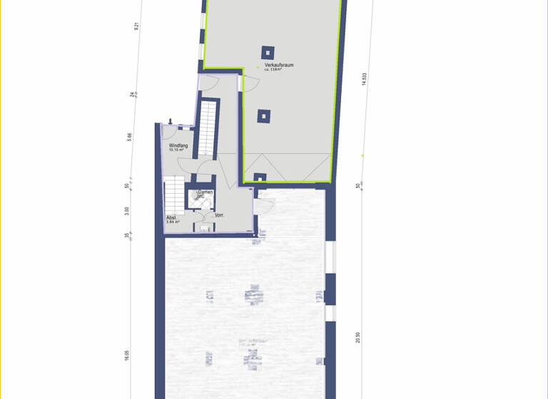
Laden zur Miete Büro- und Lagerfläche in Zentrumslage von Dorfen zu vermieten! Die Lager und Büroräume befinden sich im Erdgeschoss eines Wohn- und Geschäftshauses in der Dorfener Innenstadt. Vermietet wird der hintere Teil der Laden- und Lagerfläche im Erdgeschoss. Das gesamte Inventar kann nach Vereinbarung auch mit übernommen werden. Auf der Rückseite des Hauses befinden sich die Außenstellplätze. Es wird zur Mehrwertsteuer optiert! Zusammensetzung der Flächen: Lagerfläche: Lager EG = ca. 30,53 m² Ladenfläche: EG (ohne Lager) = ca. 118 m² Gesamtfläche: ca. 295,15 m² Gemeinschaftliche Fläche: Zugangsbereich ca. 8 m²
Sperr & Zellner Immobilien GmbH MaklerbĂĽro
Merkmale Bodenbelag: Fliesen, Teppich Erdgeschoss: - große Büro- und Lagerfläche im EG - Gemeinschaftlicher Elektroraum im EG - komplett gefliest - Fenster an der westlichen Seite - 1x Garage und 4 Außenstellplätze davor - Glasfaser - Betondecke - FBH im EG Energieausweis liegt zur Besichtigung vor.
Bausubstanz und Energie Der Anbieter hat keine Informationen zum Energieverbrauch bereit gestellt.
Zustand der Immobilie Gepflegt
Heizungsart Zentralheizung: FuĂźbodenheizung
Mietkosten
Miete auf Anfrage
Heizkosten
in Warmmiete enthalten
Provision fĂĽr Mieter
2 Monatskaltmieten Provision zzgl. 19Â % MwSt. fĂĽr den Mieter inkl. MwSt.
Kaution
2 Monatskaltmieten
Lage Dorfen (84405)
Der Anbieter hat die genaue Adresse nicht freigegeben
Die Stadt Dorfen bietet als zweitgrößte Stadt (derzeit gut 14.500 Einwohner) im Landkreis Erding eine lückenlose Versorgung. Ärztliche Praxen in allen Bereichen, sowie ein Alten- & Pflegeheim und ein Krankenhaus sind vorhanden. Dorfen liegt direkt an der Bahnlinie München - Mühldorf, wodurch eine rasche Anbindung an die Landeshauptstadt München gewährleistet (ca. 35 Min. Fahrzeit) ist. Die Autobahn A94 ermöglicht eine ebenso schnelle, wie bequeme Anreise mit dem Auto. Infos über die Stadt Dorfen finden Sie unter www.dorfen.de !
Weitere Informationen Sonstiges
Der angegebene Mietpreis versteht sich zzgl. 19 MwSt. Gerne übersenden wir Ihnen ein ausführliches Exposé mit zahlreichen Fotos und Außenansichten - bitte teilen Sie uns hierzu noch Ihren Namen, Ihre Anschrift und Ihre Festnetz-/Mobilnummer mit - vielen Dank! Sperr & Zellner Immobilien GmbH Büro Dorfen: Büro Neufinsing: Haager Str. 16 Münchner Str. 4 84405 Dorfen 85464 Neufinsing Tel. 0 80 81 / 9 55 88 0 Tel. 0 81 21 / 99 555 0 Fax 0 80 81 / 9 55 88 44 Fax 0 81 21 / 99 555 25 E-Mail: info@sperr-zellner.de www.sperr-zellner.de
Lust auf eine Besichtigung?
Eine Frage zur Immobilie?
Ăśber den Anbieter Haager Strasse 16, 84405 Dorfen 4/5 (5 Bewertungen) Bewertung: 4 von 5 Sternen aus 5 Bewertungen Frau Sophie Zobeley Dein Kontakt
Online-ID: 2h9w552
Referenznummer: M3620
Angebot melden
Wie zufrieden bist du mit dieser Seite (nicht mit der Immobilie selbst)?