Wohnung zum Kauf6450000 €67.895 €/m²3 Zimmer • 95 m² • 12. Geschoss
6450000 €
67.895 €/m²
3 Zimmer • 95 m² • 12. Geschoss
Château Périgord II - 3 pièces - Rénové
Merkmale
- 12. Geschoss
- Personenaufzug
- Terrasse
- Badezimmer: Badewanne, Bad mit Dusche
- voll klimatisiert
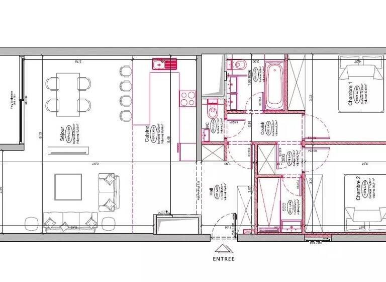
Grundrisse
Grundrisse
1 / 1
Bausubstanz und Energie
Möchtest du Details zum Energieverbrauch?

- Baujahr1972
Preisdetails
Kaufpreis
6450000 €
67.894,74 €/m²
Provision für Käufer
Bitte beachte, das Angebot beinhaltet bei Vertragsabschluss die Zahlung einer Provision. Weitere Informationen erhältst Du vom Anbieter.
Lage

Monaco (98000)
Der Anbieter hat die genaue Adresse nicht freigegeben
Weitere Informationen
Weitere Services
Lust auf eine Besichtigung?
Eine Frage zur Immobilie?
Über den Anbieter
Place des Moulins, 98000 MONACO
3 Jahre Partnerschaft
John Taylor Monaco John Taylor MonacoDein Kontakt
Online-ID: 23SXEJFQM2ZI
Referenznummer: V1295MC
Wie zufrieden bist du mit dieser Seite (nicht mit der Immobilie selbst)?